
No.13 Villa
ARCHITECTS
AsNow Design & Construct
LEAD ARCHITECT
Solmaz Tatari, Ehsan Tavassoli
TECHNICAL TEAM
Amir Hosein Najimi, Donya Alipour, Bahman Zare, Soheil Sabili
DESIGN TEAM
Nila Shahmohammadi,rana Ghamarsorat, Saba Sabouri, Masoomeh Samadi
PHOTOGRAPHS
Navid Atrvash
AREA
500 m²
YEAR
2025
LOCATION
Tehran, Iran
CATEGORY
Houses
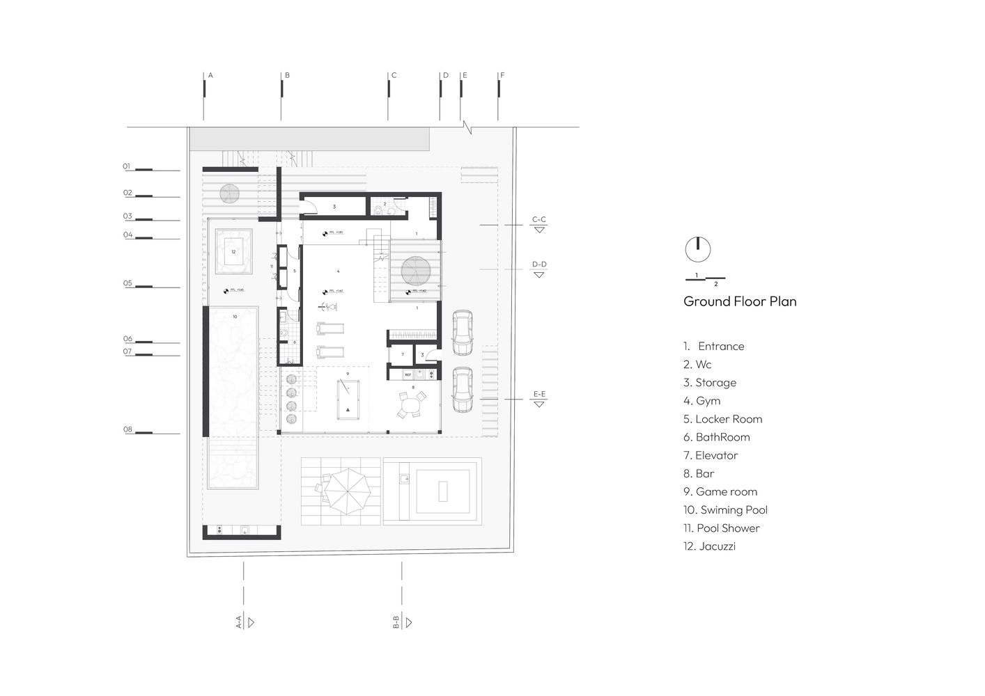
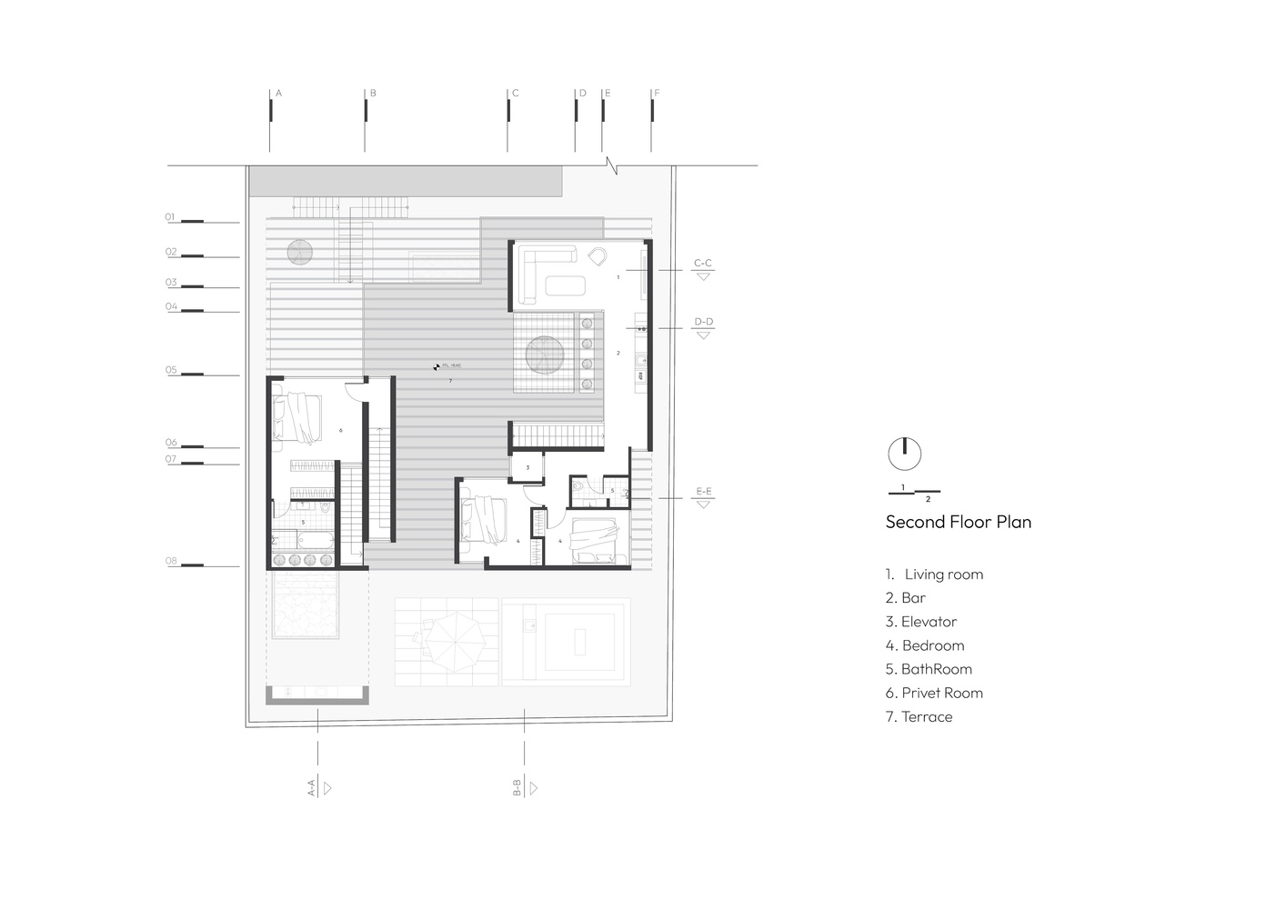
Villa No. 13 is conceived around the interplay of open, semi-open, and enclosed spaces—a spatial composition structured by three exterior courtyards and an interior patio that together create an intermediary microclimate between inside and outside.
Aligned along a north–south axis, the courtyards simultaneously draw southern light and northern views into the building while being positioned in direct response to the narrative and programmatic sequence of the interior.
The central patio, framed as a green void, introduces a transparent and dynamic sectional experience that gently differentiates public and semi-public realms.
Two strategies enrich the project's spatial and experiential qualities: "stitching the courtyards" through independent exterior paths that encourage open-air circulation and "shading" through a perforated skin that casts layered shadows, shapes the atmosphere, and provides a supportive structure for climbing plants.
Ultimately, the villa adopts a contemporary architectural approach rooted in the traditional Iranian concept of the Narenjestan, pursuing the long-term vision of embracing the building within a lush, living green envelope.








































