ARCHITECTS
Studio Saxe
LEAD ARCHITECT
Benjamin Saxe
AREA
655 m²
YEAR
2025
LOCATION
Cabo Velas District, Costa Rica
CATEGORY
Houses
English description provided by the architects.
Green terraces and an overhanging pool integrate indoor and outdoor spaces in a villa with ocean views.
OVERVIEW
Located on a hillside overlooking the Pacific Ocean, Villa Nuri is a home shaped by the landscape, light, and natural airflow.
We designed the house as a vertical experience that adapts to the slope while elevating everyday life. A solid base anchors the house to the land, while an upper level opens outward to frame ocean views, blurring the boundaries between inside and outside.
This is a place where landscaped terraces, an overhanging pool, and fluid spatial transitions come together in serene harmony.
CONCEPT
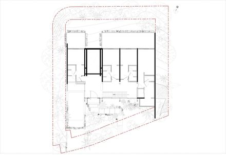
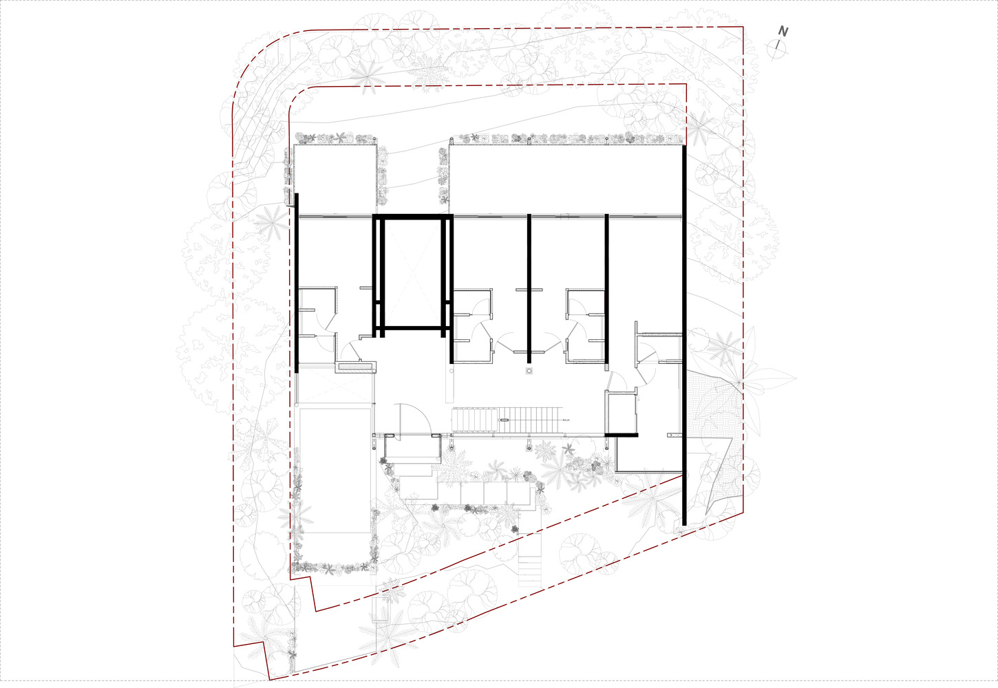
To frame the most striking ocean views, we placed all social areas, terraces, and the master bedroom on the second level.
This allowed the architecture to rise above the landscape and open fully to the horizon. Below this upper level, we positioned the secondary bedrooms on the intermediate level, which also enjoy sea views thanks to the natural slope of the land.
Further down, service areas and the garage are integrated into the base of the structure, anchoring the home to the terrain. Instead of fighting against the topography, we used it to create a layered composition where the architecture accompanies the relief and feels both elevated and connected to the ground.
DESIGN
The narrow shape of the lot and its variable topography challenged us to think in levels. We created a solid horizontal base that follows the slope and supports an upper level that opens in all directions.
This second level becomes a lightweight and transparent platform that houses social spaces, a landscaped terrace, and an overhanging pool that appears to float among the treetops. Cross ventilation, shaded openings, and open views create a sense of immersion in the landscape.
As the architecture ascends, the material palette transitions from heavier concrete and stone to lighter woods and open metal structures, reinforcing the experience of elevation.
INTERNAL ARCHITECTURE
Villa Nuri, named after an indigenous word, was conceived as a kind of nest in the jungle: open, personal, and alive.
Birds frequently pass through the house thanks to its openness, and natural ventilation was prioritized through high ceilings and long, breezy corridors. Strategically placed openings allow the house to breathe naturally, maintaining pleasant temperatures throughout the day.
We embraced bold gestures and contrasts. A green wall welcomes visitors at the entrance, reinforcing the transition between outside and inside. We placed black and white mosaics in the lobby, echoing patterns traditionally used in Costa Rican residential architecture and anchoring the home in local craftsmanship.
Throughout the house, we incorporated vibrant moments, such as cobalt blue armchairs that reflect the sea and sky, intentionally framing the surrounding landscape. Each space tells a story of nature, culture, and comfort, woven through careful material choices and curated experiences.
SUSTAINABILITY
From the beginning, the house was designed to function passively and reduce its environmental impact. Natural stone and wood help regulate heat, while the openings are oriented to allow cross ventilation and control solar exposure.
The surrounding vegetation naturally cools the house, creating a microclimate that decreases the need for mechanical systems.
Solar panels provide renewable energy on-site, reducing dependence on the electrical grid and promoting a more self-sufficient lifestyle. These strategies enable comfortable, low-impact living in close relationship with the environment.
CONSTRUCTION
By developing a hybrid construction system, we were able to respond to both the program and the topography. A concrete base houses the garage, laundry, and service rooms, providing stability and anchoring the home to the slope.
Above it, a prefabricated steel structure supports the lighter volumes, allowing for open facades that face the mountains on one side and the ocean on the other.
This system allowed for more efficient and precise construction, as well as facilitating the transition of materials throughout the home according to function, exposure, and atmosphere.
CLIENT PERSPECTIVE
"I saw an article about Casa Flotanta years ago and thought it was an incredible house.
So when I bought the land and started looking for an architect, I knew I had to find the person who designed it. I visited the website and was immediately drawn to other projects I found there.
When I finally met Benjamin, I realized he was not only a brilliant architect but also someone open-minded with whom I could truly collaborate on the house.
My favorite spot in the house is floating at the edge of the overhanging pool. I can look at the beautiful landscape while floating ten meters above the ground.
I feel almost like a bird! Then I can turn around and appreciate the beautiful architecture of the house.
The huge indoor-outdoor space on the upper level is amazing. It’s designed to be a pleasant place regardless of the weather.
Cross ventilation keeps a comfortable temperature. And since there is so much space, many people can be doing different things at the same time.
Nuri is a Chorotega word that means bird. I wanted a unique word that would honor the local culture, and Nuri was perfect because the house opens towards the treetops.
Birds fly through the house all the time, especially the parrots, which we see every day. That’s why we chose a parrot as the symbol for the house." — The Client

























