Museum Of The Amazon
ARCHITECTS
Guá Arquitetura, Be.bo. Arquitetos
LEAD ARCHITECT
Guá Arquitetura: Luis Guedes, Pablo do Vale | be.bo. arquitetos: Bel Lobo, Bob Neri
ENGINEERING & CONSULTING > OTHERS
Sophia Jares - Juma Acessibilidade, D3m Engenharia
ENGINEERING & CONSULTING > LIGHTING
L+a Iluminação, 360 Solução Imagem Luz E Som
ENGINEERING & CONSULTING > ENVIRONMENTAL SUSTAINABILITY
Isabela Lima - Bioma
ENGINEERING & CONSULTING > ACOUSTICS
Salt
MANUFACTURERS
Casa Brasileira Belém, Mãos Caruanas, Vedac
ENGINEERING & CONSULTING > STRUCTURAL
Rcm Construtora
PROJECT TEAM
Guá Arquitetura: Leonardo Arruda, Larissa Teixeira; Be.bo. Arquitetos: Fernanda Carvalho, Júlia Carreiro, Gabriela Rodrigues, André Nascimento, Gabriel Parreira
COORDINATION
Lola Belchi Serrano
PHOTOGRAPHS
Manuel Sá
AREA
3309 m²
YEAR
2025
LOCATION
Belém, Brazil
CATEGORY
Cultural Architecture, Museum
English description provided by the architects.
The Museum of the Amazons (MAZ), a cultural space dedicated to valuing science and technology in the region, opened to the public in Belém on October 4th.
The museum is part of Porto Futuro II, which comprises a set of works carried out by the Government of Pará, left as a legacy from COP 30 to the capital of Pará.
The Pará-based office Guá Arquitetura and the Rio de Janeiro firm be.bo. architects are responsible for the design of the 3,100 m² warehouse. In parallel, the duo developed the museum's permanent exhibition design, which will open in 2026.
CURATORSHIP.
The new museum from the State Secretariat of Culture of Pará, implemented by IDG in partnership with the Museu Paraense Emílio Goeldi, aims to showcase the various Amazons that exist in the nine Brazilian states and in eight other countries.
Curated by Francy Baniwa, Joice Ferreira, and Helena Lima, the space offers immersive and sensory experiences that reflect the lives of urban, indigenous, extractive, quilombola, and riverside communities that make up the Amazon.
ARCHITECTURE.
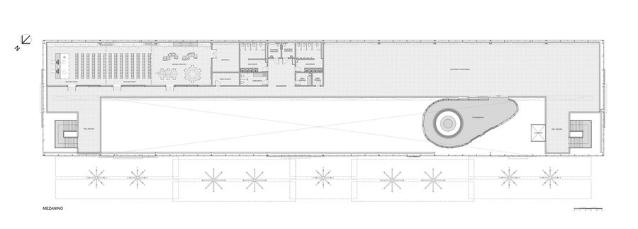
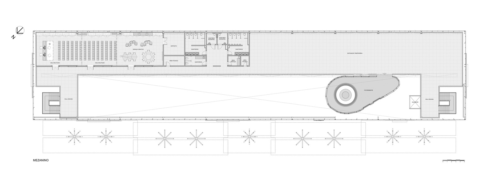
The architects transformed the 3,300 m² warehouse into a route organized over two levels. The ground floor, with 2,000 m², houses the exhibition space, foyer, and shop.
The mezzanine, with 1,100 m², accommodates the temporary exhibition room, a multipurpose room, and a creative space designed for various cultural activities.
The snake is a recurring element in different Amazonian worldviews. Enchanted beings like Boiúna, the Canoe Snake, and the Great Snake inspired the museum's identity and various elements of the design.
The exhibition begins in the foyer, an environment designed to ground and prepare visitors for the show. The space has low lighting and reddish walls, painted with the same pigment that the indigenous Marajoara used in their ceramics and body paintings.
All internal walls of the museum have been painted with this geotint made from clay, a research project by the offices in collaboration with the Mãos Caruanas studio, a ceramic jewelry company on Marajó Island (PA).
"This museum has many layers. The flooring has meaning, the texture of the walls has meaning, everything has meaning. Every piece of architecture says something," says Bel Lobo, a partner at be.bo. architects.
A large LED globe displays the work "Simbiosfera" by artist Roberta Carvalho, highlighting the centrality of the Amazon in the global imagination.
"The globe is positioned between the two levels of the museum. It is suspended from the ceiling to give the impression of floating from the visitors' perspective.
If someone is near the railing on the first floor, they will be able to see the entire globe," explains Pablo do Vale, a partner at Guá Arquitetura. From the first level, it is also possible to see the ground floor.
On the ground floor, there is also a 60 m² shop, where master carpenter Edson Rodrigues from Ilha do Murutucu (PA) created a custom display shelf, and artisan Ivan Leal from Abaetetuba (PA) crafted a large lamp made with roots collected from the beach, where 150 birds carved from miriti, a fiber from the miritizeiro tree, perch.
The mezzanine reserves 500 m² for temporary exhibitions and 77 m² for the creative space, envisioned as a free area for visitors or an extension of temporary exhibitions. The 150 m² multipurpose room was designed with a modular structure, allowing it to accommodate 130 seated people or to divide the space into three separate rooms.
PERMANENTE EXHIBITION DESIGN.
Scheduled for July 2026, the permanent exhibition will offer a chronological journey through the history of the Amazon, from geological formation to future perspectives.
Divided into six stages, the exhibition will address themes such as biocultural diversity, ancestral technologies, the relationship between abundance and forest, and current ecological crises.
One of the highlights will be an immersive spiral-shaped environment, covered by a curtain of bulrush. In the center, a cloud composed of 5,000 miriti animals will support projections.
Another space, Espaço Aturá, invites the public to enter a large indigenous baniwa basket, where they can understand the relationship between constellations and planting and harvesting cycles in indigenous worldview.
The exhibition continues through different environments until it concludes in the "solutions for good living" space, which inspires visitors to dream about the future of the region—whether through urban festivals that incorporate futuristic and disruptive elements or through encounters with social actors who fight for forest preservation.
The Museum of the Amazons is realized by many hands, under the principle of "ajurí," a concept that refers to a collective effort that mobilizes, organizes, and cares—a practice very much alive in Amazonian communities.
"All we want is for people to get involved, understand, and feel more integrated. I hope they leave the museum with new values and a desire to care, each for themselves.
We know that change begins from within," is the wish of architect Bel Lobo, co-founder of be.bo. architects.





























