Wat Bo House
ARCHITECTS
Uad Architects
LEAD ARCHITECT
Mengly khuth and Visal Nuon
MANUFACTURERS
Daikin, Hafele, L&E, TOA Paint (Thailand)
LEAD TEAM
Visal Nuon
PHOTOGRAPHS
Oudompheaktra Ang
AREA
590 m²
YEAR
2025
LOCATION
Krong Siem Reap, Cambodia
CATEGORY
Houses
English description provided by the architects.
Wat Bo House is named after Wat Bo Village in Siem Reap.
The house reflects the sensibilities of a young couple who chose to settle in this storied neighborhood, captivated by its architecture and the creative energy embedded in Wat Bo Village.
The project began with a profound idea that speaks to a broader dialogue between contemporary living and the cultural identity of the area.
Natural grey granite tiles, concrete, and wood were chosen for their authenticity and durability. The architects developed a design rooted in simplicity, timelessness, and functionality.
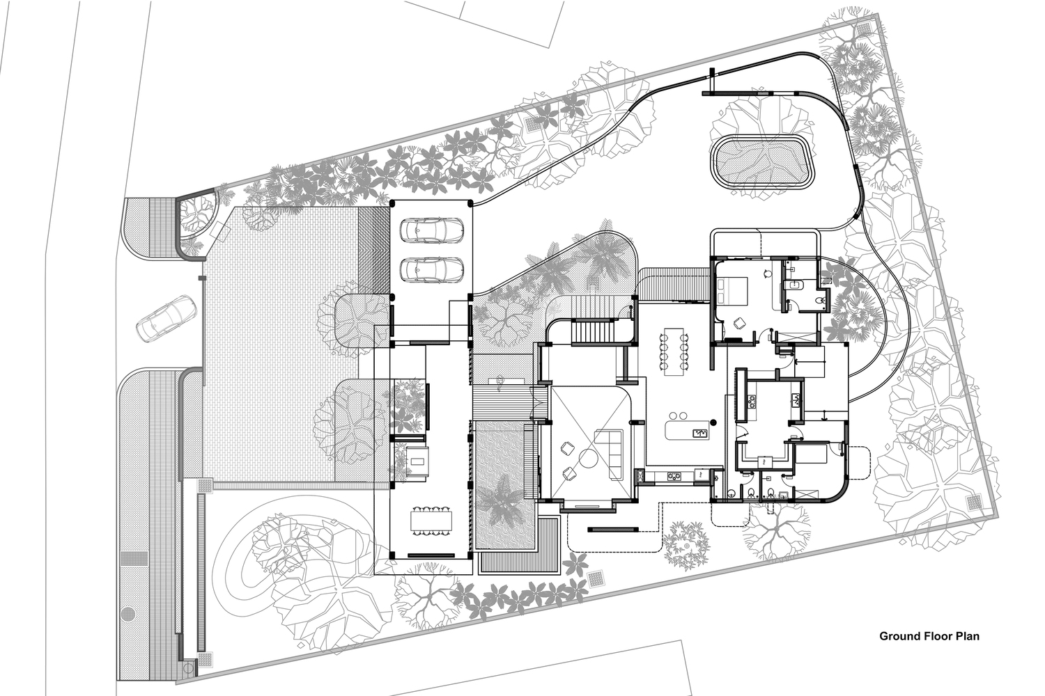
The house comprises two blocks connected by a covered walkway, set between a garden and a fishpond that blur the boundaries between indoors and outdoors.
The main building is set deep within the site, leaving courtyards and gardens that help reduce noise. The lower floor hosts social spaces, service areas, leisure zones, and a guest bedroom.
A single-story front building frames the entrance, while the open garage features a multi-use terrace perfect for relaxing and enjoying the views. A pathway guides visitors inward to the main family living space.
The upper two levels contain three bedrooms, a large front terrace on the first floor, and a rooftop gym surrounded by greenery.
The building's volumes are organized into enclosed, detached, and elevated forms, with strategic openings to balance solids and voids, while maintaining privacy from neighboring homes.
These spatial operations provide the building with a playful form, allowing for natural airflow and capturing views of various trees from different heights.
Hidden garden spaces, terraces, voids, and garden walls generate layered, constantly changing perspectives.
The façade surfaces gently reflect light, enhancing the surrounding greenery and casting dynamic shadows throughout the day.
A diverse selection of trees, including wild almond, ta meng, date palm, and fan palm, along with the tranquil fishpond, deepens the home's connection to its environment.
























