
Lisi Garden House
ARCHITECTS
Architects Of Invention
LEAD TEAM
Nikoloz Japaridze
URBAN PLANNING
Ieri, Gza
DESIGN TEAM
Eka Kankava, Datvot Tsanava, Elena Cruz Alcami, Vako Kelbakiani
ENGINEERING & CONSULTING > STRUCTURAL
Cubicon
ENGINEERING & CONSULTING > MEP
Nec
ENGINEERING & CONSULTING > OTHER
Sainjgeo
PROJECT MANAGEMENT
Lisi Development
TECHNICAL TEAM
Nino Margvelashvili, Simon Gatehouse, Tatu Batiashvili
GENERAL CONTRACTOR
Ncc
MANUFACTURERS
Reynaers Aluminium
PHOTOGRAPHS
Grogorii Sokolinskii
AREA
11500 m²
YEAR
2025
LOCATION
Tbilisi, Georgia
CATEGORY
Residential Architecture
English description provided by the architects.
ABSTRACT
The seven-storey building is conceived as a notionally modular structure, with all components—but not every full module—constructed offsite.
This represents a significant innovation within Georgian architecture, where offsite construction remains emergent.
Inspired by James Wines' collage *Highrise of Homes*, with its greenhouse-like dwelling spaces, and Brodsky & Utkin's *Columbarium Habitable*, the scheme imagines houses with gardens stacked to form a single residential block.
The modular living rooms alternate between oval and rectangular volumes, generating a vertical rhythm across the façade grid. As an evolution of Wines' vision, the Garden House incorporates generous verandas that encourage outdoor planting and extend living space into the landscape.
At its core, the project celebrates individuality within a collective framework—a vertical community where residents enjoy privacy, daylight, and greenery typically associated with suburban living, yet in a compact, urban configuration.
It challenges conventional apartment typologies by prioritising spatial generosity, natural light, and seamless connections to the outdoors.
GENERAL DESCRIPTION
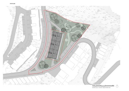
Situated northwest of Tbilisi in the Saburtalo district, the site occupies a sloped hillside near Lisi Lake, offering expansive views over the city.
Within a masterplan curated by several international practices—Architects of Invention, Ricardo Bofill, and UN Studio—the Garden House stands as one of several 5–7 storey residential blocks positioned alongside private houses.
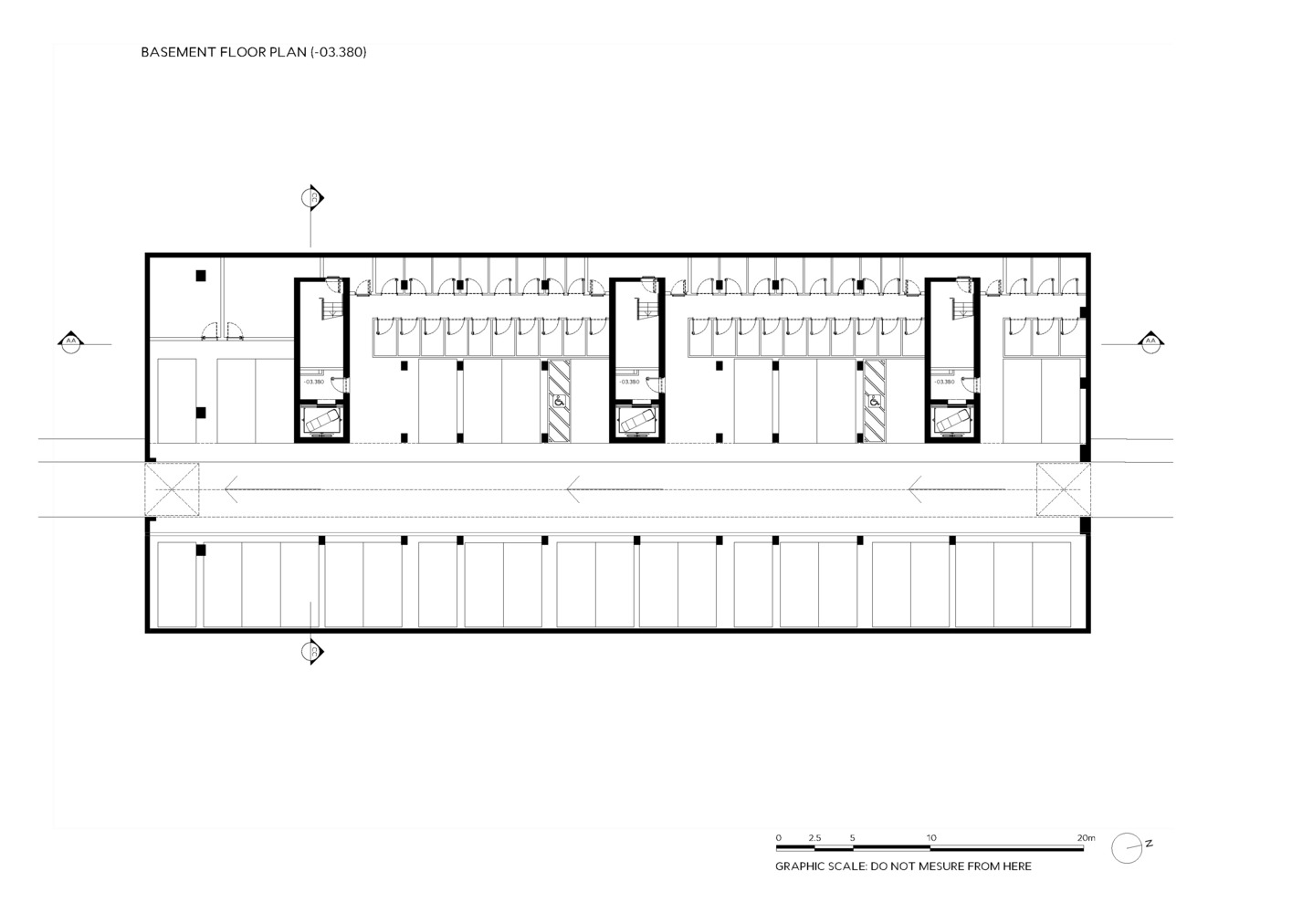
The building contains 42 units arranged across seven distinct residential floors, with commercial space at ground level and parking below grade. Vertically, the building is divided into three blocks, each containing a staircase and a lift core serving two units per landing.
Typical apartments offer dual-aspect views east and west, while the upper levels accommodate more expansive duplexes. The orientation maximises panoramic vistas toward Tbilisi and the western hills.
The façade alternates between flat and curved geometries, producing a sculptural, light-responsive expression that shifts throughout the day.
CONCEPT, CONTEXT & STRATEGY
Developed within a Development Regulation Plan (DRP), the project responds to strict parameters governing height, footprint, and massing.
Within these constraints, the design team pursued an approach that met regulatory demands while reimagining density through an elegant stacking of modular "garden houses," each optimised for daylight, ventilation, and outdoor space.
Fire-safety regulations—specifically the 500 sqm maximum area allowed per escape core—prompted the tripartite vertical division. This code-driven move also improved user experience by reducing shared circulation and fostering semi-private clusters of homes.
Dual-aspect layouts ensure each apartment benefits from natural cross-ventilation and contrasting city and hillside views.
Semi-enclosed "glass rooms" facing the city provide year-round access to outdoor space, while the large balconies—refined through negotiation with the developer—became a signature element of the project.
The sloping terrain enables discreet integration of parking and elevates residential floors to enhance views, resulting in a modular yet expressive form that balances environmental responsiveness, regulation, and quality of living.
CONSTRUCTION, MATERIALS & STRUCTURE
Lisi Garden House employs a hybrid concrete-and-steel structural system.
Three reinforced concrete cores stabilise the building, while triangulated concrete waffle slabs reduce material use, improve load performance, and increase thermal mass for passive energy regulation.
The façade combines double-glazed panels in slender aluminium frames with areas of exposed concrete and back-painted glass where necessary for visual continuity. White marble slabs finish the terraces, reinforcing a restrained, durable material palette.























