ARCHITECTS
Republic Construction Architecture Studio
LEAD ARCHITECT
Huang Yimin
DESIGN TEAM
Huang Yimin, Wang Yue, Yang Yaozhou, Qin Rong
ENGINEERING
Cangbei Cultural Tourism · Gongying Zaoo Architecture Studio
CLIENTS
The Li Siblings
PHOTOGRAPHS
Ce Wang
AREA
116 m²
YEAR
2025
LOCATION
Huizhou, China
CATEGORY
Houses
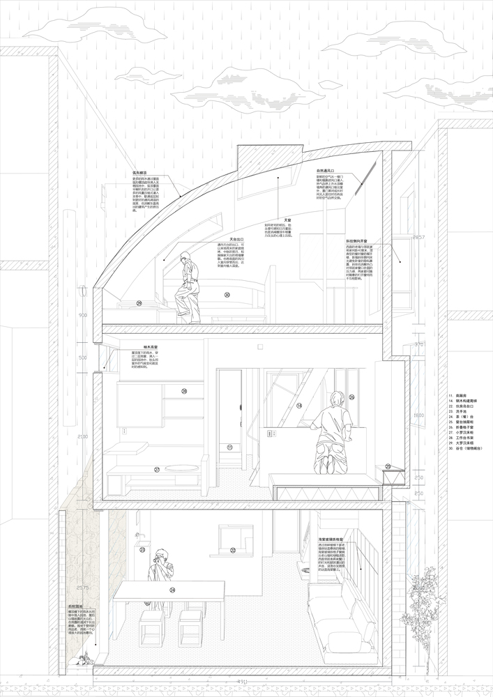
"Xuebei Home": The Native Homeland in an Urban Village,This project involves the reconstruction of a 44-square-meter collapsed ancestral home in the old city of Qiaodong, Huizhou.
As a practical case, it explores how architecture can respond to family memories, regional climate, and complex neighborhood relationships within the context of a high-density urban village.
Confronted with extreme spatial constraints, the design adopts methods such as "fragmented time," "framed micro-landscapes," "breathing structures," and "material honesty" to counter conventional closed and hasty construction models.
The architecture is anchored in the historical texture of the site, while spatial prototypes like "ladders," "central columns," "barns," and "garden pools" are reinterpreted in a contemporary manner.
The design preserves and reconstructs the old walls, employs a curved roof to alleviate a sense of oppression, and creates a miniature garden pool.
Within this compact space, a "cultural homeland" is built, connecting the past and the present, blending daily life with spiritual significance.
This practice offers a new attempt at micro-renewal in contemporary cities and communities, grounded in humanistic values and refined design.











































