
University Of Applied Sciences For Beverage Technology – Lecture Hall Building And Logistics Laboratory
UNIVERSITY OF APPLIED SCIENCES FOR BEVERAGE TECHNOLOGY – LECTURE HALL BUILDING AND LOGISTICS LABORATORY
Bez+Kock Architekten, Ernst2 Architekten
ARCHITECTS
Bez+Kock Architekten, Ernst2 Architekten
PROJECT MANAGEMENT
Stein Und Partner Projektmanagement, Munich
DESIGN TEAM
Hojoong Chang, Roman Ramminger, Christiane Hofmann
ENGINEERING & CONSULTING > ACOUSTIC
Isrw Dr.-ing. Klapdor
LEAD TEAM
Tilman Rösch, Volker Eisele, Jonas Lenz, Sabrina Dechant
ARCHITECTURE OFFICES
Ernst2 Architekten
ENGINEERING & CONSULTING > STRUCTURAL
Prof. Kind Und Partner, Krebs + Kiefer Ingenieure
ENGINEERING & CONSULTING > MEP
Günther Ingenieure, Pinovaplan Ingenieurgesellschaft
MANUFACTURERS
Artigo, Cinca, EVVA, Eco, Euval, Gerflor, Pagolux Interieur GmbH, Zehnder
PHOTOGRAPHS
Brigida González
AREA
9520 m²
YEAR
2025
LOCATION
Geisenheim, Germany
CATEGORY
Educational Architecture, University
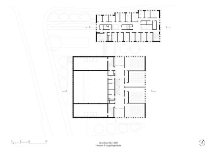
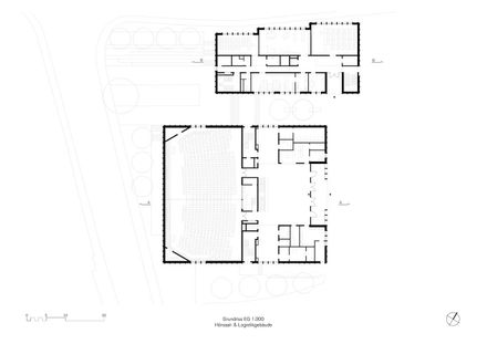
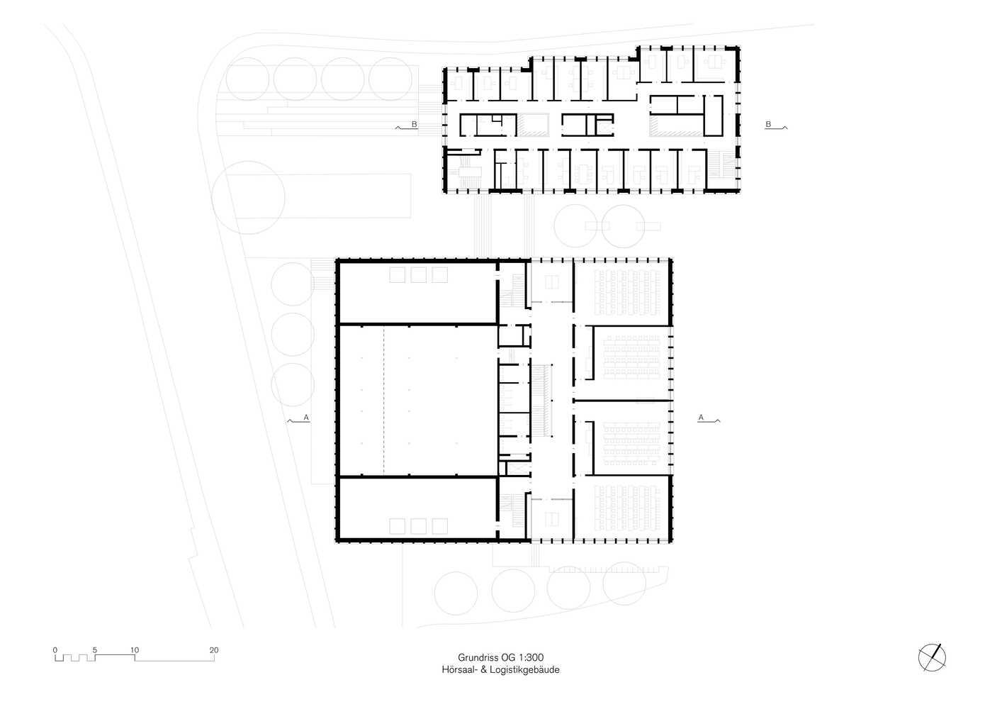
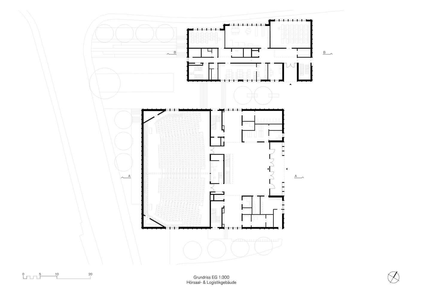
LECTURE HALL BUILDING AND LOGISTICS LABORATORY
The two neighboring buildings complete the historic nucleus of the Geisenheim University of Applied Sciences, which emerged from the former Royal Prussian Institute for Fruit and Wine Growing, founded in 1872.
Today, the next generation of winemakers is trained here in theory and practice. The lecture hall building and logistics laboratory together form the entrance to the eastern university campus, which is marked by a magnificent cedar tree on Von-Lade-Straße.
The covered entrance to the lecture hall building serves as a weather-protected extension of the foyer on the campus lawn.
The ascending seating of the lecture hall, with its approximately 700 seats, follows the existing topography of the steeply sloping terrain.
A zenithally lit open staircase leads up to four seminar rooms on the upper floor of the building.
The logistics building follows the curved line of the adjacent Falterstrasse with a staggered layout, which also creates ideal room depths for the different-sized classrooms inside the building.
The upper floor is designed as a triple bay with offices on both sides. The staggered core zone is interrupted by air spaces that connect the floors vertically.
Coarsely blasted precast concrete elements articulate the bases and floor slabs of the buildings.
In between, strictly spaced wooden pilasters with slightly sloping board formwork create a delicate play of light and shadow on the facades.
Visible wooden surfaces and board-formed in-situ concrete also dominate the interior, lending the buildings a handcrafted authenticity through their materiality and texture.
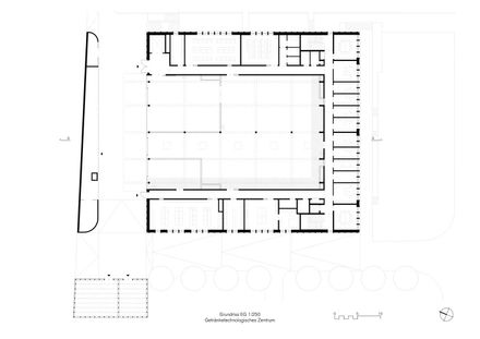
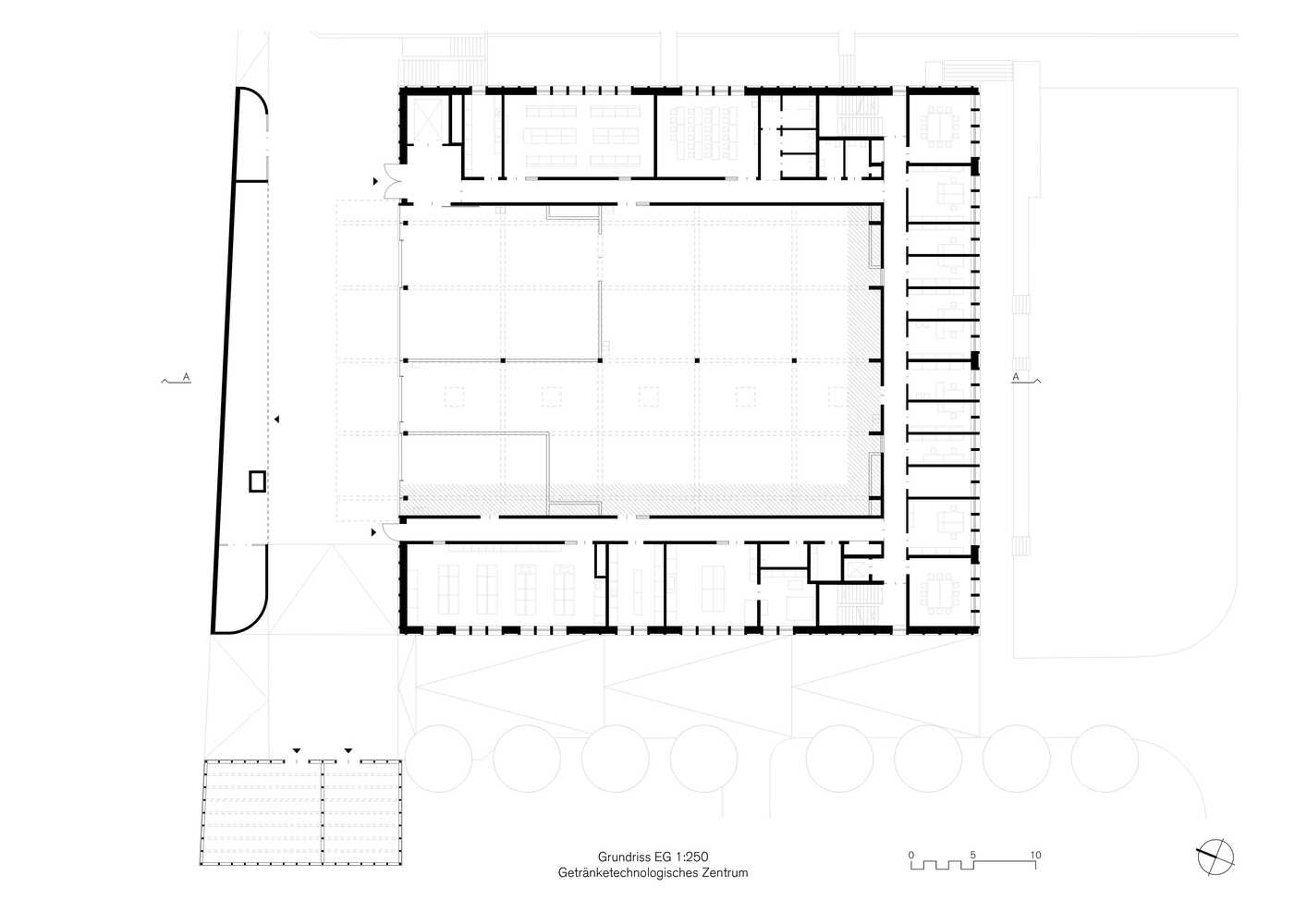
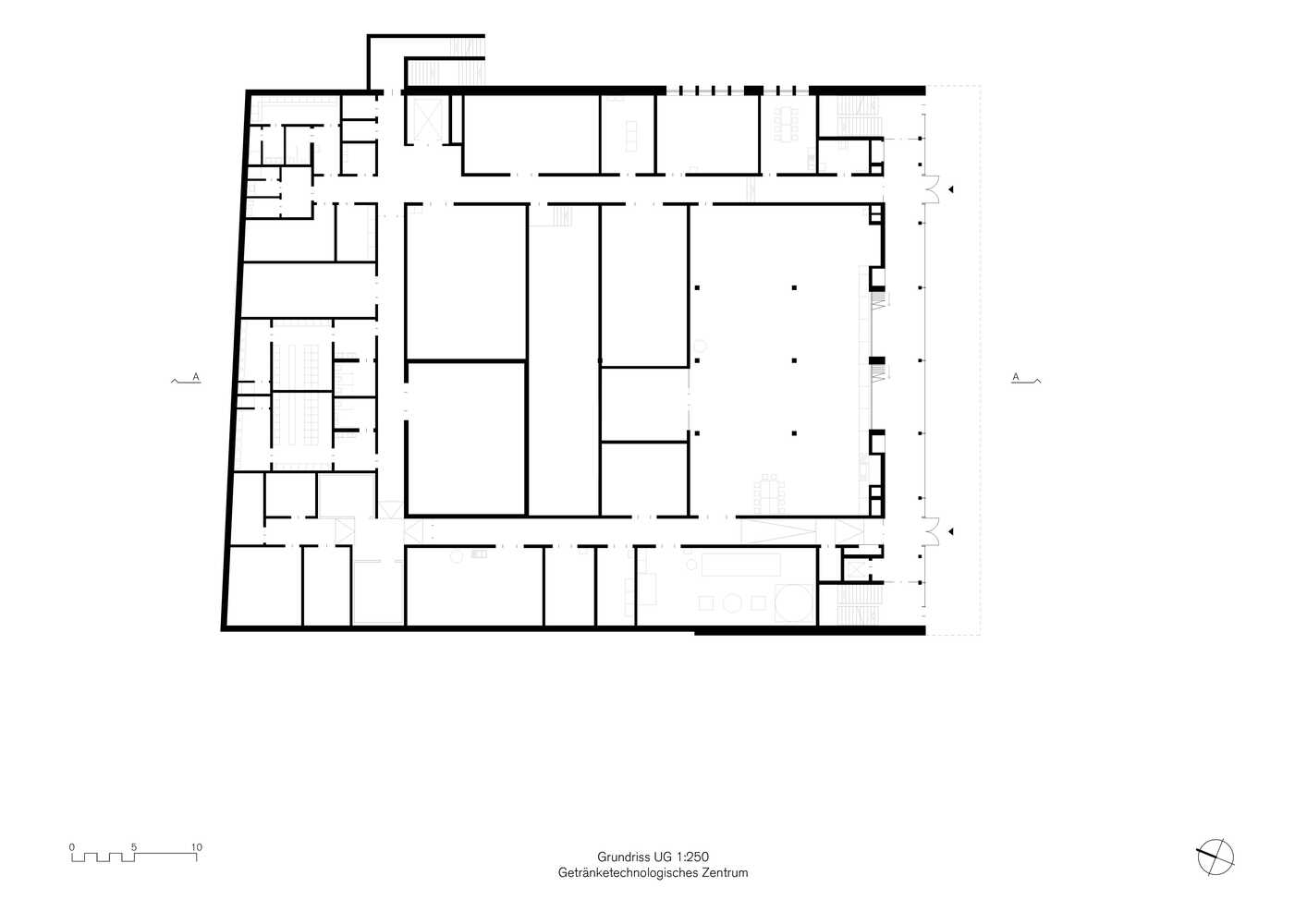
BTC BEVERAGE TECHNOLOGY CENTER
The Beverage Technology Center is the most important component for the practical training of future beverage technologists at the university in Geisenheim.
The Janus-faced building makes use of the existing, significantly sloping topography.
While the lower, south-facing base floor forms an inviting gesture towards the future campus square, the centrally located production hall is accessed from the higher north side.
Laboratories, workshops, and administrative offices surround the central hall on three sides.
In the central technical center, the entire highly automated beverage production process is taught in practice, from the delivery of fresh fruit to the extraction of juices, the distillation of schnapps, and the bottling and canning of beverages.
The wooden supporting structure is clad with polycarbonate panels on the outside, turning it into a lantern that allows filtered daylight to enter the hall.
The basement houses a show winery, which can be viewed from the tasting area in front.
A sensory laboratory, a coffee roasting facility, and several workshops complete the space allocation plan for this teaching building, which is unique in Germany.
The materials wood and concrete complement each other in terms of their strengths and weaknesses with regard to load-bearing capacity, robustness, and sustainability, lending the building a contemporary and identity-defining rusticity.


































