House For Two Djs
ARCHITECTS
Atelier Matteo Arnone
DESIGN TEAM
Atelier Matteo Arnone, Falcão Tuan
ENGINEERS
Core Concept
LEAD TEAM
Matteo Arnone
LOCAL COLLABORATING ARCHITECT
Falcão Tuan Arquitectos
MANUFACTURERS
Gaggenau, Secil, Viabizzuno, a catedral
LANDSCAPE DESIGN
Oficina Do Jardins
PHOTOGRAPHS
Federico Cairoli
AREA
500 m²
YEAR
2025
LOCATION
Alenquer, Portugal
CATEGORY
Residential Architecture, Houses
The project by Atelier Matteo Arnone for Quinta do Álamo represents a dialogue between past and present, between the memory of the winemaking tradition and the modernity of a house designed for two DJs.
Located in Carnota, in the municipality of Alenquer, just 40 minutes from Lisbon, the Quinta is surrounded by vineyards that tell a long history of wine production, offering a unique natural and cultural setting.
The architecture of the Quinta is brought to life through the renovation of a pre-existing ruin, an old winery originally used for storing large wine barrels.
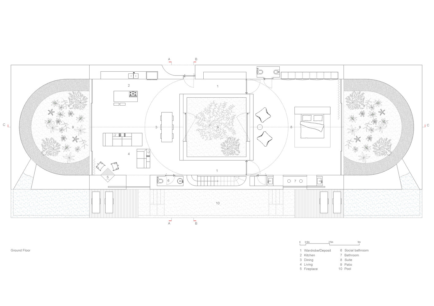
The project transforms this historical memory into a contemporary home, characterized by a perfectly symmetrical floor plan and a strong connection between interior and exterior spaces. On the lower floor, the main living spaces—a living room-kitchen area and a single bedroom—are arranged symmetrically, each opening onto a semi-circular patio that embraces the space.
These patios do not merely define the boundary between inside and outside; they turn this threshold into an aesthetic and harmonious element. Their curved shape eliminates sharp corners, fostering a fluid continuity that dissolves physical separation and creates private corners bathed in natural light.
A third patio, positioned between the bedroom and the living room-kitchen area, introduces an even more intimate dimension: it not only brings light to the recording studios on the upper floor but also establishes a delicate visual connection between the living spaces.
The architectural solution stands out for its use of thick perimeter walls, which incorporate essential functional elements of the house. These walls do more than serve a structural purpose; they integrate features such as the staircase leading to the upper-floor studios, as well as storage spaces and built-in furniture. This choice ensures a minimalist and orderly aesthetic, optimizing the overall organization of the construction.
The recording studios on the upper floor, with their circular shape, reflect the creative soul of the house, designed to meet the professional needs of its owners.































