La Bocatoma Housing Modules
ARCHITECTS
Cubbil Studio
LEAD ARCHITECT
Yajaira Ruiz Chiriboga, Alexis Torres Rodas
TECHNICAL TEAM
Alexis Torres Rodas
GENERAL CONSTRUCTION
Cubbil_studio
DESIGN TEAM
Yajaira Ruiz Chiriboga
PHOTOGRAPHS
Andrés Villota
AREA
110 m²
YEAR
2024
LOCATION
Quimiag, Ecuador
CATEGORY
Cabins & Lodges
We are at the foot of the majestic Volcán el Altar, at an altitude of 2,800 meters above sea level, in the Inguisay Sector (the Bocatoma of the Río Blanco). The Zoila Martínez Workers' Association promotes community tourism and environmental responsibility.
With new initiatives aimed at finding a balance between modernity and the traditional vernacular architecture of the area, it has created four mountain lodging shelters designed to offer panoramic views of the Andean moors.
The accommodation modules are situated on the communal land of the association, which features quite irregular topography.
The structures are strategically placed on the mountain to take advantage of the Andean landscape, the songs of the birds, and the sounds of the springs, thereby generating sensations unique to the moor.
The use of local materials is also highlighted, contributing to the enhancement of ancestral techniques and the preservation of the natural environment.
INNOVATION
The typical traditional wattle and daub cabin has been reinterpreted, infused with expressions of innovative construction.
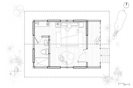
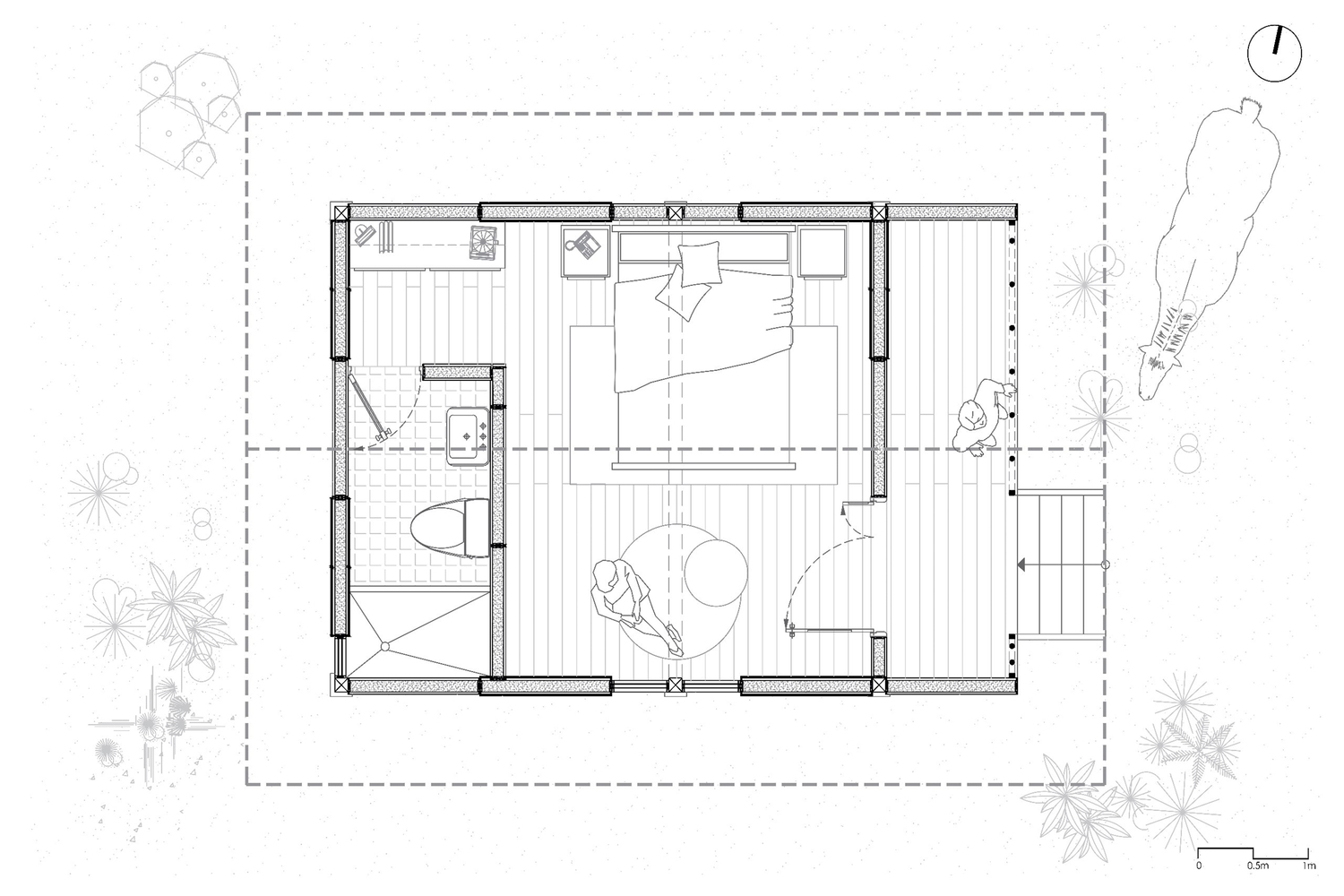
The design prioritizes the rest and leisure of the users (bedroom, wet area, and shelving), emphasizing the access porch, which serves not only as an important transitional element between the complexity of the natural exterior and the simplicity and warmth of the interior but also as a viewing point.
Prefabricated wattle and daub panels were developed, reducing execution time and wall thickness while maintaining thermal comfort.
Furthermore, the modules are built on isolated reinforced concrete plinths, with eucalyptus wood structures, earth infill (filling panels with earth), and a roof made of wood and moor grass.
The project's focus was on promoting community work and knowledge transfer to new generations in both academic and community settings.
This was made possible through the development of collective mingas, where men, women, and young volunteers were able to participate and learn from each other.
The generation of this bond among participants was essential to achieve a suitable outcome, always prioritizing good coexistence and the rescue of customs and traditions.
Architecture is configured as a powerful tool to promote inclusion, creativity, and the well-being of communities through participatory design and sustainable architecture.





















