
Chateau Cantemerle Winery
ARCHITECTS
Bpm Architectes
LANDSCAPE ARCHITECT
Neveux Rouyer
STRUCTURAL WORK
Escaich
PROJECT DIRECTOR
Arnaud Boulain
PROJECT MANAGERS
Charlotte Bousquet
INSPECTION OFFICE
Anco
DECORATOR
Mathilde Cardineau Decoration
PROJECT MANAGEMENT ASSISTANCE
Kapea
PROJECT MANAGEMENT
Time&co
HEALTH AND SAFETY COORDINATION
Gm Qualité
MANUFACTURERS
Atlas Concorde, MALERBA, Rational, Seigneurie, Spalek
PHOTOGRAPHS
11H45
AREA
10710 m²
YEAR
2025
LOCATION
Macau, France
CATEGORY
Winery, Refurbishment, Sustainability
Located in Macau, in the Haut-Médoc region, Château Cantemerle is one of the oldest wine estates in Bordeaux. The estate extends over twenty-eight hectares of wooded parkland.
Between 2023 and July 2025, BPM Architectes carried out a restructuring and extension of the estate for the SMABTP group, owner since 1981.
The intervention included the restoration of the historic château, the extension of the vat room and wine cellar, the enlargement of the bottle storage facility, the restructuring of the orangery into a seminar space, the creation of a shop, and the reorganization of the tasting room. A landscape project connects these interventions.
The project aims to make Château Cantemerle both a functional production site and a welcoming space. The spaces were redesigned according to principles of fluidity, ergonomics, and sustainability, while preserving the character of the site.
The architects worked to unify volumes and materials. The stone buildings, slate or tile roofs, and tree-lined pathways in the park form a composition where old and new coexist.
The château, for private use, was completely restructured. The stone façades were restored and the woodwork replaced identically.
The interior spaces accommodate nine bedrooms, living rooms, dining rooms, and reception areas. The orangery, redesigned and enlarged, becomes a modular seminar space for about fifty people.
Its extension adopts the architectural vocabulary of the site, in continuity with the adjacent vat room. The vat room and wine cellar form the technical core of the project.
The façade of the former vat room facing the main courtyard was preserved. The extension connects to it via an elevated terrace. A timber and steel frame supports a suspended roof.
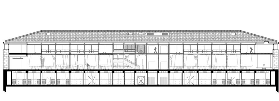
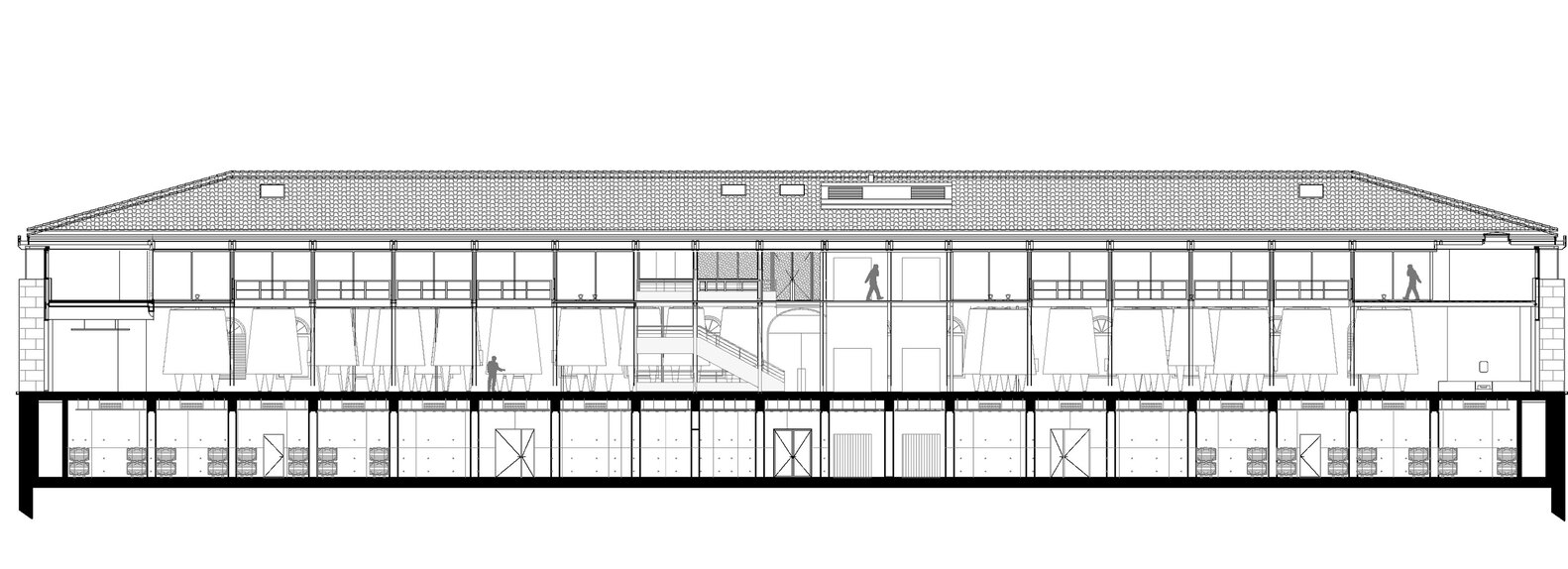
The building doubled in area. The barrel cellar is located in the basement, while the vat room, comprising one hundred fourteen vats, is organized around the harvest courtyard.
The management offices and tasting room are positioned above, with workspaces distributed over two levels. The bottle storage facility, enlarged by two additional naves, adopts the vocabulary of the existing building. It allows for the storage of two million additional bottles.
As the first phase of construction, it served as a temporary vat room during two harvests. The tasting room and shop were redesigned and open onto a terrace with views of the château.
A landscape project connects the various buildings of the estate through new pathways between the trees.
Three principles guided the project: optimizing winemaking processes, providing teams with a functional workspace, and integrating an eco-responsible approach.
Geothermal systems ensure thermal comfort, and photovoltaic panels produce renewable energy. After twenty-five months of work, Château Cantemerle was transformed while preserving its historical identity.




















