ARCHITECTS
N2b Arquitetura
LEAD ARCHITECT
Caio Yoshiaki Nagano, Rodolfo Biagi Becker e Natalie Fogagnoli
ENGINEERING & CONSULTING > STRUCTURAL
Ferriani
ENGINEERING & CONSULTING > ELECTRICAL
Corral Engenharia
ENGINEERING & CONSULTING > LIGHTING
Ferriani
ENGINEERING & CONSULTING > OTHERS
Automundi, Engefrosty
GENERAL CONSTRUCTION
Breci Construtora
LANDSCAPE ARCHITECTURE
Daniel Nunes
PROJECT YEAR
Ana Carolina Vicari, Leonardo Tomazeli, Larissa Fossalussa Lisse, Luiz Freire, Vitor Rodrigues
INTERIOR DESIGN
Breci Construtora
PHOTOGRAPHS
Carolina Mossin
AREA
1124 m²
YEAR
2023
LOCATION
Vila do Golfe, Brazil
CATEGORY
Residential Architecture, Houses
English description provided by the architects.
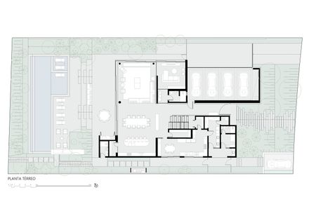
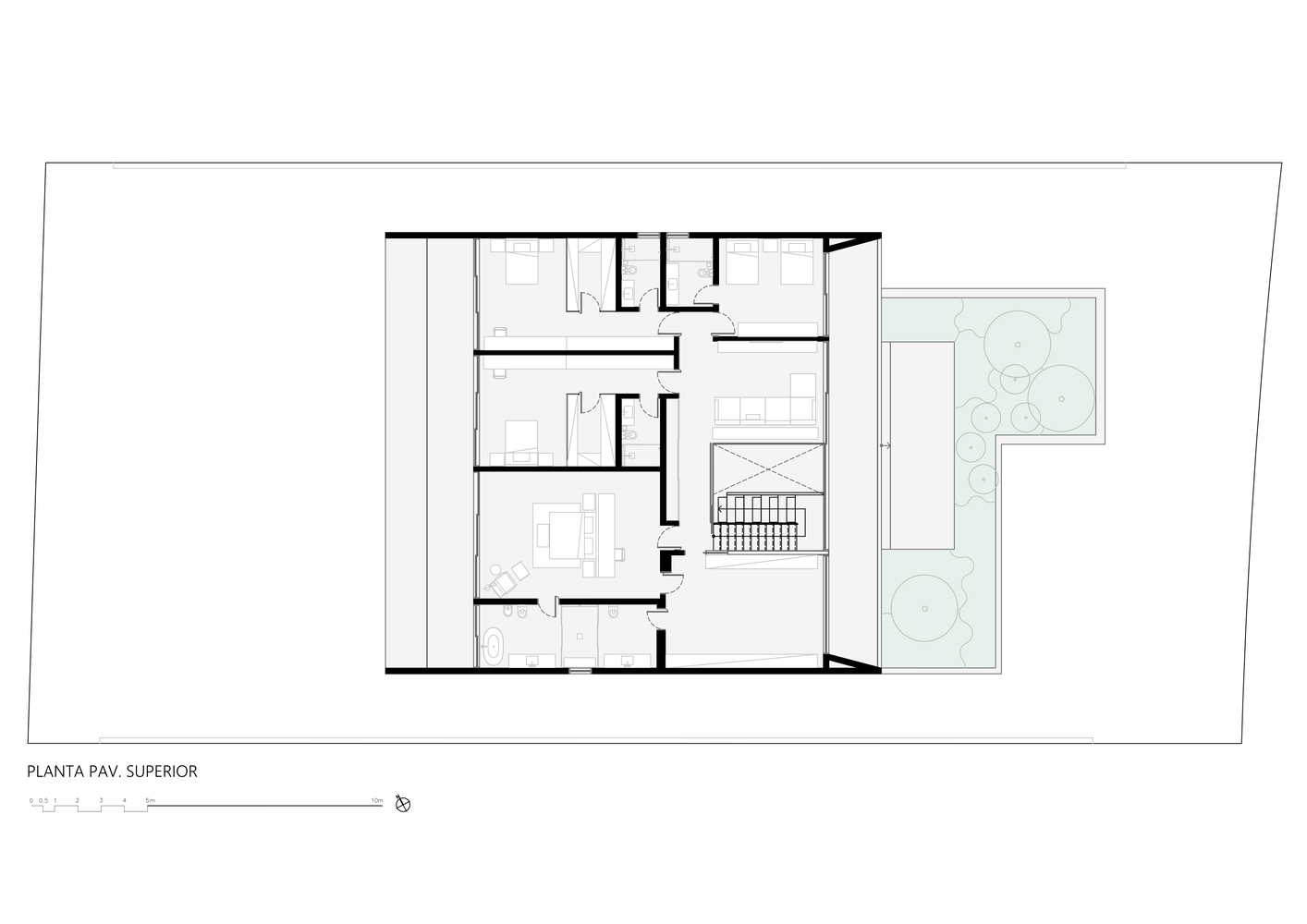
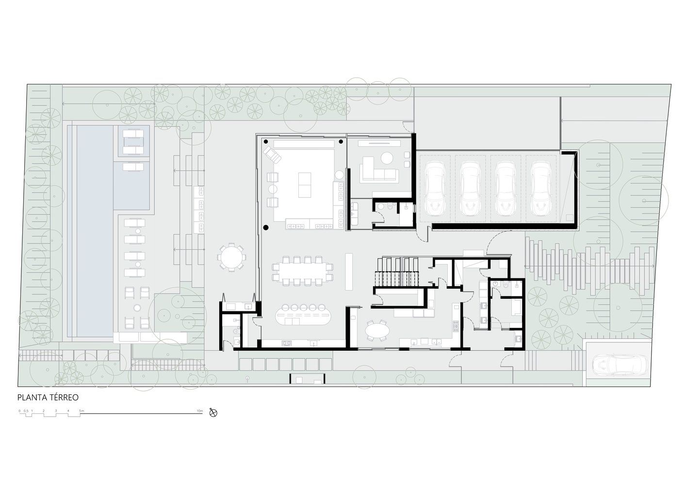
Located in the Vila do Golf area, House AL was designed to take advantage of the terrain's slope.
Divided into three levels, the residence offers privileged views of the landscape, both above and below the treetops, integrating its outdoor area, situated on the lower level, with the local scenery.
The main living spaces were oriented to make the most of this view, using large windows that allow abundant natural light to enter the bedrooms and living area.
The landscaping, as a standout element, was designed to incorporate the construction with the surrounding vegetation, creating a harmonious connection with the environment.
In addition, the carefully selected finishes reinforce the unity of the residence with the greenery, using slatted concrete and light-toned modular stone.






























