Narbo Via Museum
ARCHITECTS
Foster + Partners
MANUFACTURERS
Goppion
PHOTOGRAPHS
Nigel Young, Philippe Chancel
AREA
9689 m²
YEAR
2020
LOCATION
Narbonne, France
CATEGORY
Museum
Narbo Via – a new museum of Roman antiquities in Narbonne – has officially opened following an inauguration ceremony attended by the conseil de la Region Carole Delga.
The building, designed and engineered by Foster + Partners is set to become a new landmark at the entrance to the city, on a site adjacent to the Canal de la Robine.
Raised on top of a podium, the museum provides a sense of restrained civic and architectural monumentality at the entrance to the city.
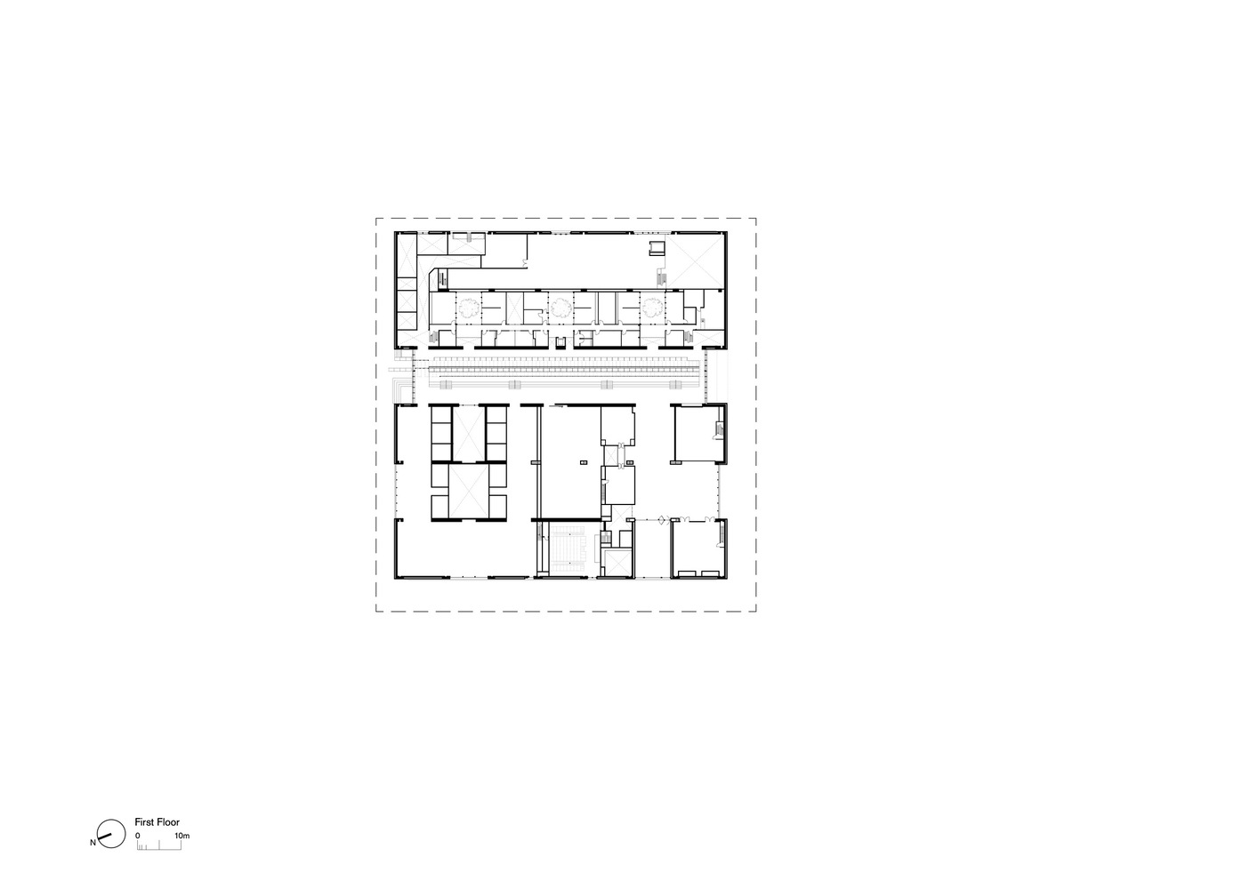
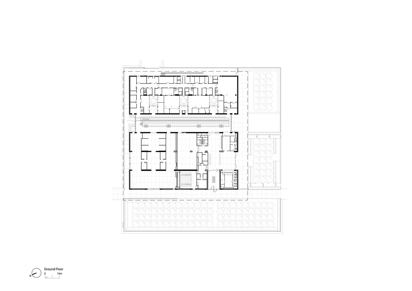
The building incorporates galleries for permanent and temporary exhibitions, a multimedia education centre, auditorium, restaurant and bookshop, as well as research, restoration and storage facilities.
The centrepiece of the museum is a ‘Lapidary Wall’, which forms a natural boundary at the heart of the museum, separating the public galleries from the more private restoration spaces.
Visitors can glimpse the work of the archaeologists and researchers through its mosaic of stone and light. The flexible display framework allows the reliefs to be easily reconfigured and used as an active tool for learning.
The museum spaces are unified beneath a concrete roof canopy, which provides thermal mass and contributes to a comprehensive environmental strategy.
The canopy is elevated above a clerestory, punctuated with light wells, and it extends to provide a canopy over the walkways around the museum.
As part of its sustainable environmental agenda, inspired by Roman technology, the majority of the services in the building are contained within a subterranean void.
The cool air is pushed out at a low level and at low velocity, allowing a smaller volume of air to be conditioned, while maintaining a comfortable environment.
The large spatial volumes formed by the high ceilings create a thermal flywheel effect that naturally pushes warm air upwards, from where it is exhausted.
The architecture is informed by an honest approach to materials which extends to the expression of the coloured concrete walls.
Layers of dry-mixed concrete were tamped into place on-site, the resultant stratification calls to mind not only the archaeological nature of the museum, but also the inherent appearance of Roman concrete.
The structural response also follows a similar approach that is underpinned by simplicity. The walls are solid, thermally insulated and load bearing.
They support the roof with reinforced concrete double-T-beams that span onto a grid of reinforced concrete beams. The glazing around the enclosure simply bolts directly into the concrete walls.
The landscaping reinforces the connection with the canal to create a tranquil natural setting. Inspired by formal French gardens and the Roman courtyard, the museum’s grounds feature an amphitheatre for open- air displays and events.
The design anticipates a welcoming, landscaped entrance via a new ramp that links the museum to the existing towpath along the Canal de la Robine.
This will create a serene pedestrian connection to the city centre, which will now be only a short walk from the museum.







































