Conjunto Cornes Espacio Residencial
ARCHITECTS
Carbajo Barrios Arquitectos
LEAD ARCHITECT
Manuel Carbajo Capeáns, Celso Barrios Ceide.
PROMOTION
Cornes Espacio Residencial Sl
LANDSCAPING
Orza Paisajismo (Carmela Moral Ardines)
CONSTRUCTION SITE SUPERVISION
Santiago García, Alberto Vieito, Mario Gerpe
INSTALLATION CALCULATIONS
Obradoiro Enxeñeiros (Carmelo Freire Beiro)
SIGNAGE DESIGN OUTDOOR FURNITURE AND COMMUNITY PREMISES
Cenlitrometrocadrado (Ricardo Tubío, Xabier Rilo)
COMMERCIALIZATION
Juan Alvarez, Fátima Amo, Laura Fernández, Inés González, Samuel Pérez
STRUCTURAL CALCULATIONS
Ameneiros Rey Arquitectos (Ismael Ameneiros, Santiago Rey)
TECHNICAL ARCHITECT
Enrique Martínez Carregal
COLLABORATORS
David Camiño Quintela, Laura Pardo, Beatriz Asorey, Alejandro Calviño Pérez
MANUFACTURERS
BANDALUX
CONSTRUCTION MANAGER
María Blanco Dosil
AREA
28500 m²
YEAR
2022
LOCATION
Santiago de Compostela, Spain
CATEGORY
Housing
THE PROGRAM
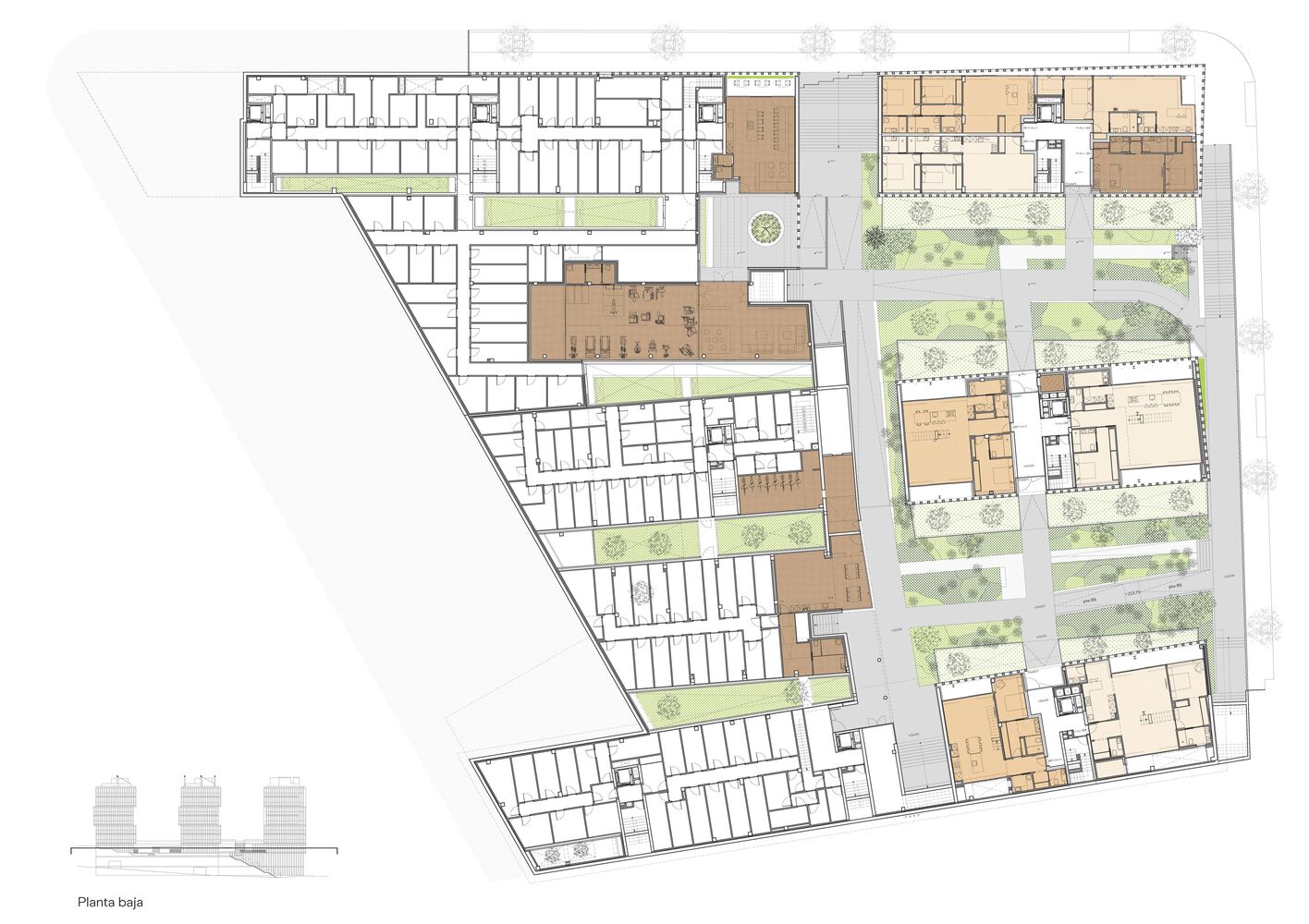
The buildings house a residential complex made up of 125 apartments, garages, and storage rooms, which during the project and commissioning process have allowed the development of 22 different types of apartments, both on a single floor and in duplex format.
The complex is exclusively dedicated to residential use. In addition to the apartments, there is a free space for public use and three covered community spaces: a children's playroom, a gym, and a dining room.
THE SITE
The buildings are located on a lot occupied since 1873 by the Cornes Railway Station, part of which was rehabilitated and which today houses the "Casa das Asociaciones".
This old station hosted the first railway line in Galicia between Santiago de Compostela and Carril. The building served passenger transport for two decades until the entry into service of the current Santiago de Compostela railway station (in another location) in April 1943.
From that moment it continued to function for a few more decades as an auxiliary of goods under the name of Santiago-Cornes until the dismantling of the line at the end of the 20th century.
THE OUTDOOR SPACE
The urban planning of the area provided a layout with three linear blocks and two private free spaces for public use as relational elements between parallel strips.
The formalization of the open spaces (exclusively for pedestrian use) is conditioned by their linear nature.
More streets than squares, they are raised in direct relation to the ground floors of the buildings where residential use takes place, being longitudinally fragmented into two levels as a result of the existing unevenness.
Consequently, a platform configured as a green corridor is created, drawing the transversal access routes to the apartments and the longitudinal ones "through" the space in visual and ecological connection with the surrounding parks.
A series of voids are incorporated into this space towards the floors below ground level, allowing the facades to be "distanced" from the apartments and enabling the incorporation of larger trees and natural ventilation and lighting of the spaces for garages and storage rooms.
The set is complemented by the provision of a transversal passage through the buildings that frees up the transversal views and decompresses the space between buildings.
THE BUILDINGS
The approach is based on the premise of incorporating a high degree of natural light into the apartments and taking advantage of the views that the lot has toward the surrounding parks and the city as a whole.
The constructions on the ground level consist of three buildings between sixty and one hundred meters in length and a 12-meter bay with an overhang around its entire perimeter.
The total perimeter of the built floor is accompanied by a fully glazed enclosure, foreseeing the use of the perimeter corridor as an exterior space for all the apartments, delimited by an exterior lattice as a brise soleil that filters the sunlight and the views between facing buildings.
The enclosure of this exterior corridor will become the skin that defines the built volume, opting for a solid element that, distributed regularly, configures a pattern of colored concrete made up of pieces of twenty by twenty centimeters in a pattern eighty centimeters apart.
This solution is generalized throughout the façade, taking it to the ground floor where a series of courtyards will be configured that allow the alignment enclosures to be distanced, forming a buffer space for the homes with the free space to which they open.
Given the resounding geometry inherited from the urban planning of the area, the floors were unified in sets of two slabs to minimize the scale of the facades.
In addition, they are endowed with movement, generating a series of small "turns" of some floors creating a movement in the volumetry that breaks the original prismatic envelope, reducing the strong impact of the implantation.
Finally, the tinting of the concrete envelope was chosen to prevent the buildings from being diluted in the surrounding monochrome background and giving them a ferruginous color that recalls the industrial character of the original building, now converted into a beacon approaching the southwest façade of the Compostela expansion.












































