
Jeddah Culture Square
ARCHITECTS
Urko Sanchez Architects
LEAD ARCHITECT
Marwan Zouein
SITE MANAGEMENT
Midrar
ACOUSTICS
Tma
LANDSCAPE DESIGN
Walk Architects (Juan Tur)
INTERIOR DESIGN
Nada Debs Studio
LIGHTING DESIGN
Elbaz + Gil De Montes
CONSTRUCTION
Freyssinet Saudi
DESIGN TEAM
Marwan Zouein, Estrella De Andrés, Alfredo Entrala, Eloy Fernanz, Carmen Gamboa, Malena Martus, Victor Mascato, Manuel Merino, Borja Pérez, Pilar Riesco, Fernando Rodriguez, Guillermo Palenzuela
PHOTOGRAPHS
Arch-Exist
AREA
28000 m²
YEAR
2025
LOCATION
Jeddah, Saudi Arabia
CATEGORY
Public Space, Cultural Architecture
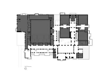
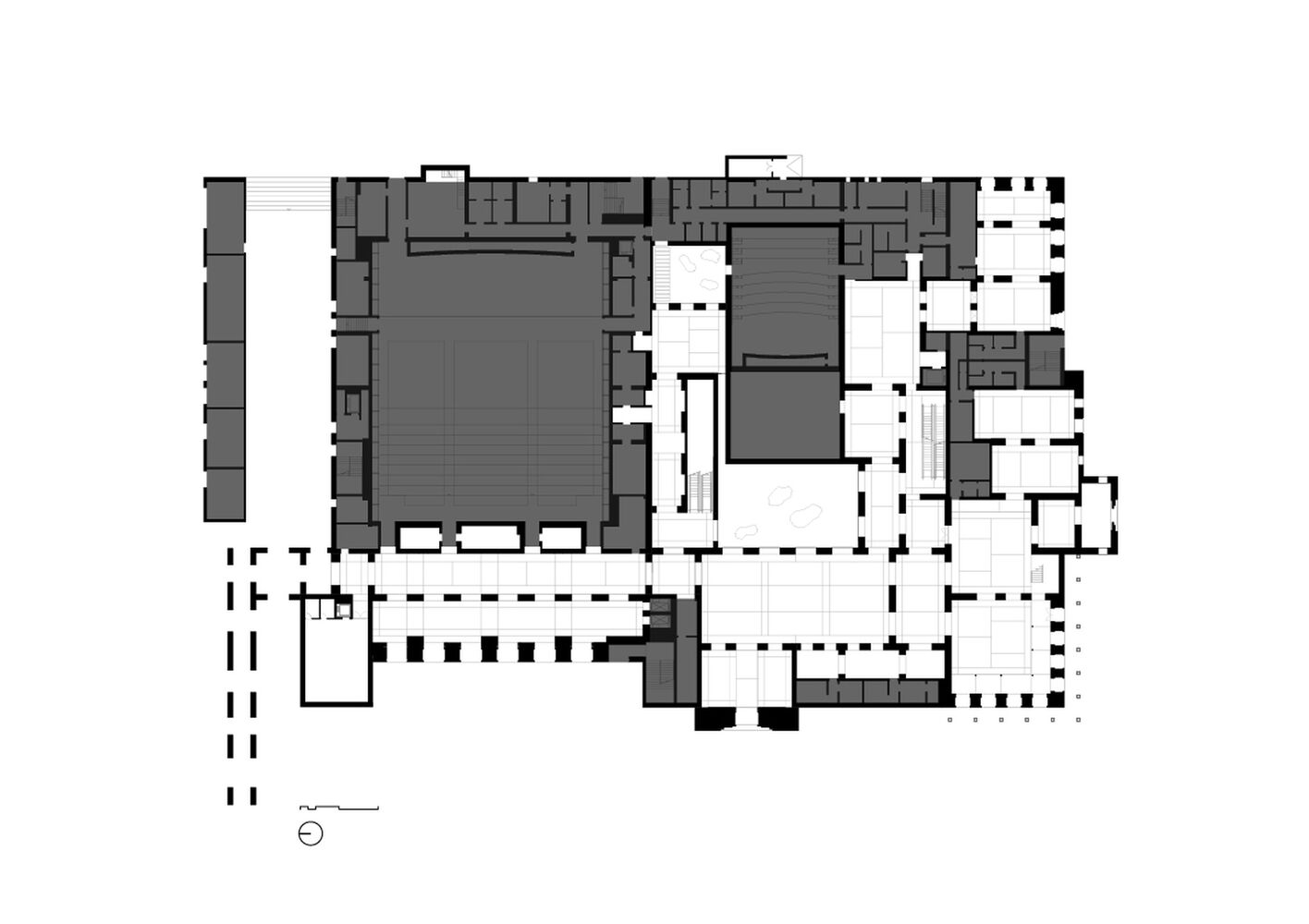
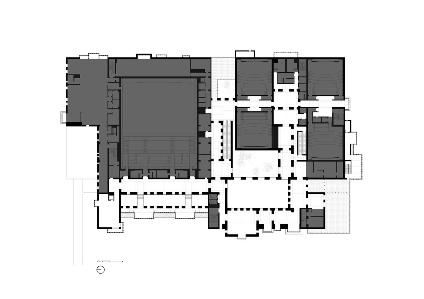
At the heart of the Historic Jeddah Waterfront Regeneration Initiative, the Culture Square stands as a bold statement of renewal, an intersection where memory, art, and urban transformation converge.
The project reimagines the northern edge of Al Arbaeen Lagoon, facing Al-Balad, Jeddah's storied historic district, and forms part of a larger vision to turn the lagoon's perimeter into a sustainable, mixed-use urban hub.
Anchoring the new public promenade, two sculptural buildings rise at the water's edge, one housing the Red Sea International Film Festival, the other the teamLab Borderless Jeddah Art Museum.
Together, they establish a contemporary dialogue with the old city architecture, framing a new cultural horizon for Jeddah.
More than simple venues, these structures act as catalysts for exchange, places where the city's deep artistic heritage meets global creative energy.
The square itself is conceived as a living civic space, a transition zone between land and lagoon, public realm and cultural institution.
The promenade flows through open plazas, shaded corridors, and reflective pools, inviting residents and visitors alike to inhabit the city's new cultural front.
The design takes deep cues from Jeddah's architectural DNA, reinterpreting the roshan, the city's traditional wooden lattice screen, in a radical new way.
Inside, the roshans unfold in copper, giving the interiors a warm, futuristic glow. The metal surfaces catch and diffuse the natural light, transforming the texture of the spaces throughout the day.
This bold material choice turns a centuries-old typology into something visionary, a shimmering network of pattern, light, and reflection that speaks of both legacy and progress.
Externally, the architecture bridges the tactile richness of Jeddah's vernacular façades with contemporary spatial logic.
Local, handcrafted wood meets advanced fabrication methods; the interplay of mass and transparency evokes the timeless rhythm of the old city, while projecting it into a distinctly modern context.
Every detail of the intervention, from the façades to the interiors of the cinema venue, reflects a deliberate balance: handcrafted materials sit alongside modern structural systems, while vernacular motifs are translated into contemporary geometries.
This interplay defines a new architectural grammar for the region, one that looks forward without letting go of its roots.
In Culture Square, the spirit of Al-Balad endures, refracted through glass, light, and time, inviting the world to experience the next chapter of Jeddah's cultural renaissance.







































