Cobbadah Beach House
ARCHITECTS
Hayman + Charlton Architects
LEAD ARCHITECT
Hannah Charlton, Craig Hayman
ENGINEERING & CONSULTING > STRUCTURAL
Ingineered
MANUFACTURERS
Fisher & Paykel, Abodo, Artedomus, Brickworks, Brodware, Chant, Dulux, Ecooutdoor, Glosswood, James Hardie, Laminex, Stuv, Velux
GENERAL CONTRACTOR
Kamber Constructions
PHOTOGRAPHS
Andy Macpherson
AREA
432 m²
YEAR
2024
LOCATION
Queensland, Australia
CATEGORY
Houses
Cobbadah Beach House is a multi-generational home located at Tugun, a laid-back surf beach on the Gold Coast in southern Queensland.
The house is situated on the ridge of a densely vegetated bluff above a beach, with panoramic views to South Stradbroke Island to the north and Coolangatta headland to the south.
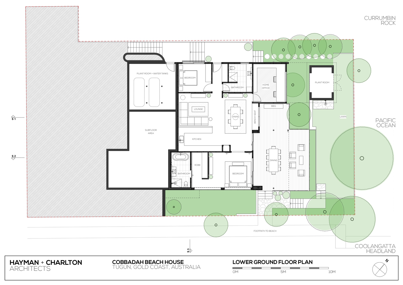
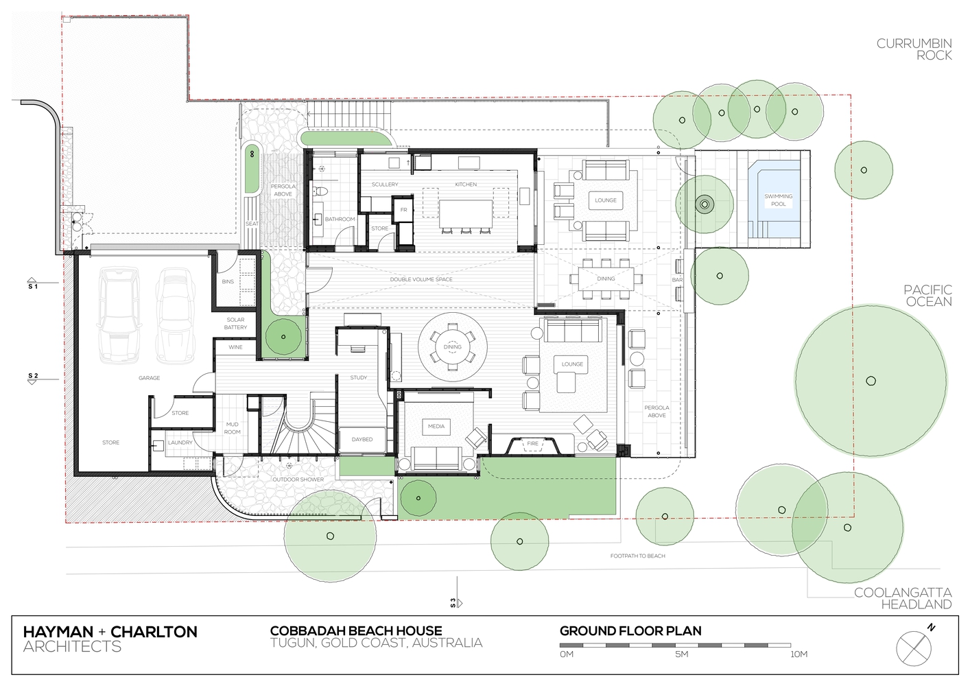
The schedule of accommodation includes two separate dwellings that are stacked vertically. The upper two levels constitute the main house, with three bedrooms and generous indoor and outdoor living spaces.
The lowest level of the house is an independent apartment with two bedrooms. This apartment was envisaged as a place for longer-term visitors to stay, including children and grandchildren, and in the future could be used as accommodation for a live-in carer.
Philosophically, the design approach was to create a series of curated views and linked spaces with gradations of intimacy.
The site has views in three directions, but also has neighbours close by on three sides, so the arrangement of spaces and windows was carefully crafted to guide the eye to focal points on the horizon, as well as looking inward to a double volume courtyard garden clad in green wall tiles.
The clients wanted their home to have depth, texture, tactility, and to age elegantly. The existing landscape was a key element in the design, and the dense jungle-like quality of the surrounding vegetation informed the deep greens, rich browns, brass, and granite textures that are threaded throughout the house.
The site experiences severe weather, with punishing storms, strong easterly light reflected off the ocean, and relentless salt air exposure.
The selection of materials and construction techniques for external surfaces focused on hard-wearing materials, primarily fibre cement, terracotta, stone, and aluminium.
Because the site is so steep, including a swimming pool with an ocean view proved to be challenging. The solution was a 'pool in the sky' that extends off the covered outdoor deck and appears to flow to the horizon.
An outdoor sitting area acts as a bridge between the pool structure and the house, and this is punctuated by a mature palm that rises through a steel mesh 'collar' in the stone deck floor.
In terms of sustainability, the design was approached with the philosophy that the house should last at least 100 years, hopefully longer. The house has a 7.56 kW photovoltaic system with a 14.2 kWh battery.
The building was designed to be naturally ventilated, so all living spaces are cross-ventilated, and the landscaped entry courtyard provides a significant source of fresh air, assisted by banks of mechanically operated louvres in the double volume space to flush hot air on warm days.
Rainwater is gathered from the roofs into two water tanks totalling 10,000 litres for use in the garden. High-performance glazing and insulation were specified throughout the home, and overhangs are sized to block summer sun.
Low VOC paints were specified throughout the house, and FSC timber was specified for external and internal cladding, internal flooring, and joinery.
































