ARCHITECTS
Fernanda Padula Arquitetura, Juliana Risso Arquitetura
LEAD ARCHITECT
Fernanda Padula, Juliana Risso
PROJECT TEAM
Marcelo Panico, Emily Geisa
ENGINEERING & CONSULTING > CIVIL
Lattaro Engenharia
MANUFACTURERS
Indusparquet, Domini Móveis, Firmato, Lucenera
LANDSCAPE ARCHITETURE
Alexandre Galhego
PHOTOGRAPHS
Carolina Mossin
AREA
640 m²
YEAR
2024
LOCATION
Valinhos, Brazil
CATEGORY
Residential Architecture, Houses
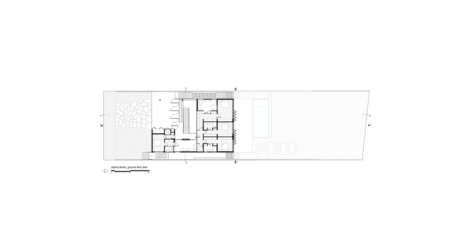
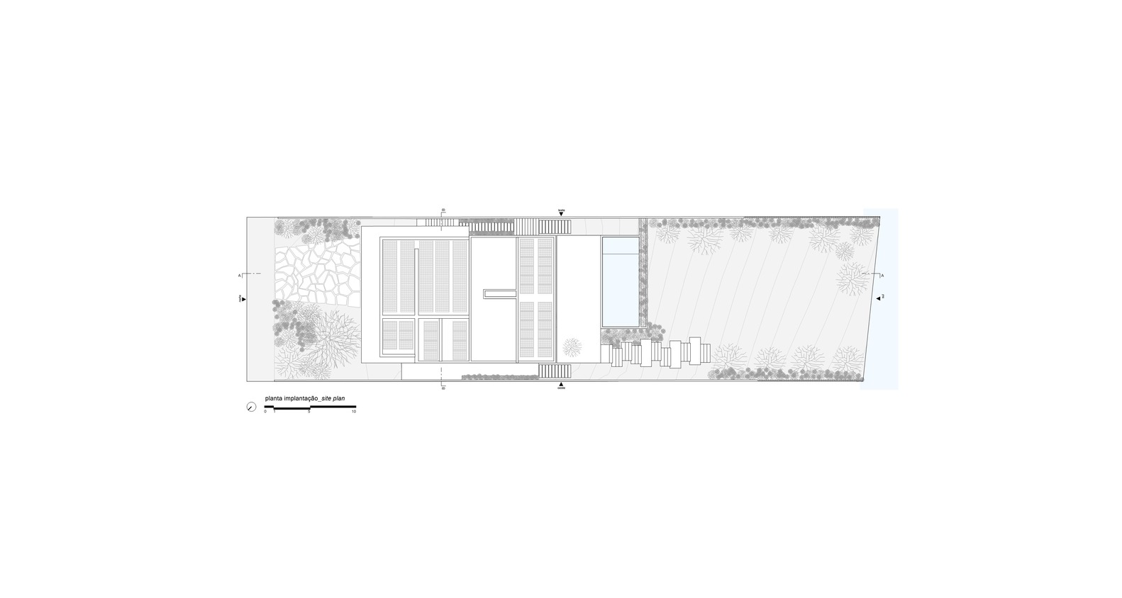
Set on a steep terrain with a privileged view of a lake, Cedar House embodies the desire to inhabit the landscape with lightness and depth.
The design is anchored in the natural relief, allowing the topography to guide the architecture.
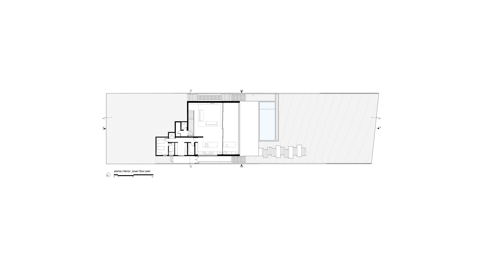
Descending the cantilevered staircase, the social and service area is revealed, marked by the integration of the living room, dining area, and kitchen, all oriented towards the horizon.
Massive concrete structures ensure presence and stability, forming a box that frames the landscape, while strategically placed openings ensure natural lighting and ventilation.
The pool, positioned near the treetops, appears to float over the valley, intensifying the atmosphere of suspension that permeates the entire complex.
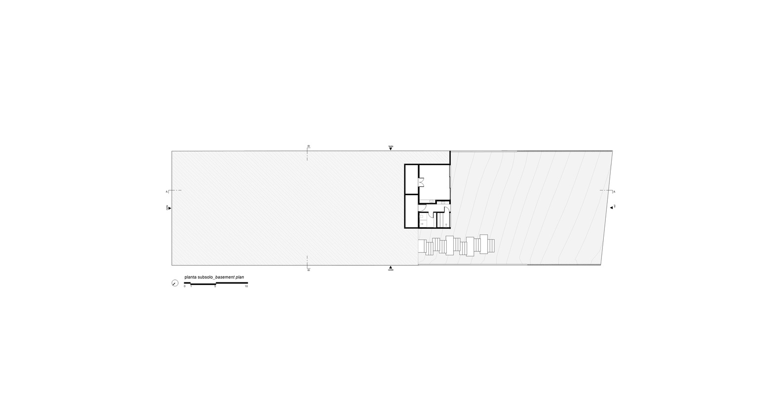
In the basement, facing a lawn that opens towards the landscape, are the sauna, changing room, and gym, expanding the possibilities for leisure and well-being without losing integration with the surroundings.
More than just a residence, Cedar House is an immersion in the scenery, a poetic dialogue between architecture, landscape, and material.


























