ARCHITECTS
Othmane Bengebara Studio
OFFICE LEAD ARCHITECTS
Othmane Bengebara
DESIGN TEAM
Othmane Bengebara Studio
INTERIOR DESIGN
Cap Ingenierie International
TECHNICAL TEAM
Yasmine Sebti
PHOTOGRAPHS
Iman Zaoin
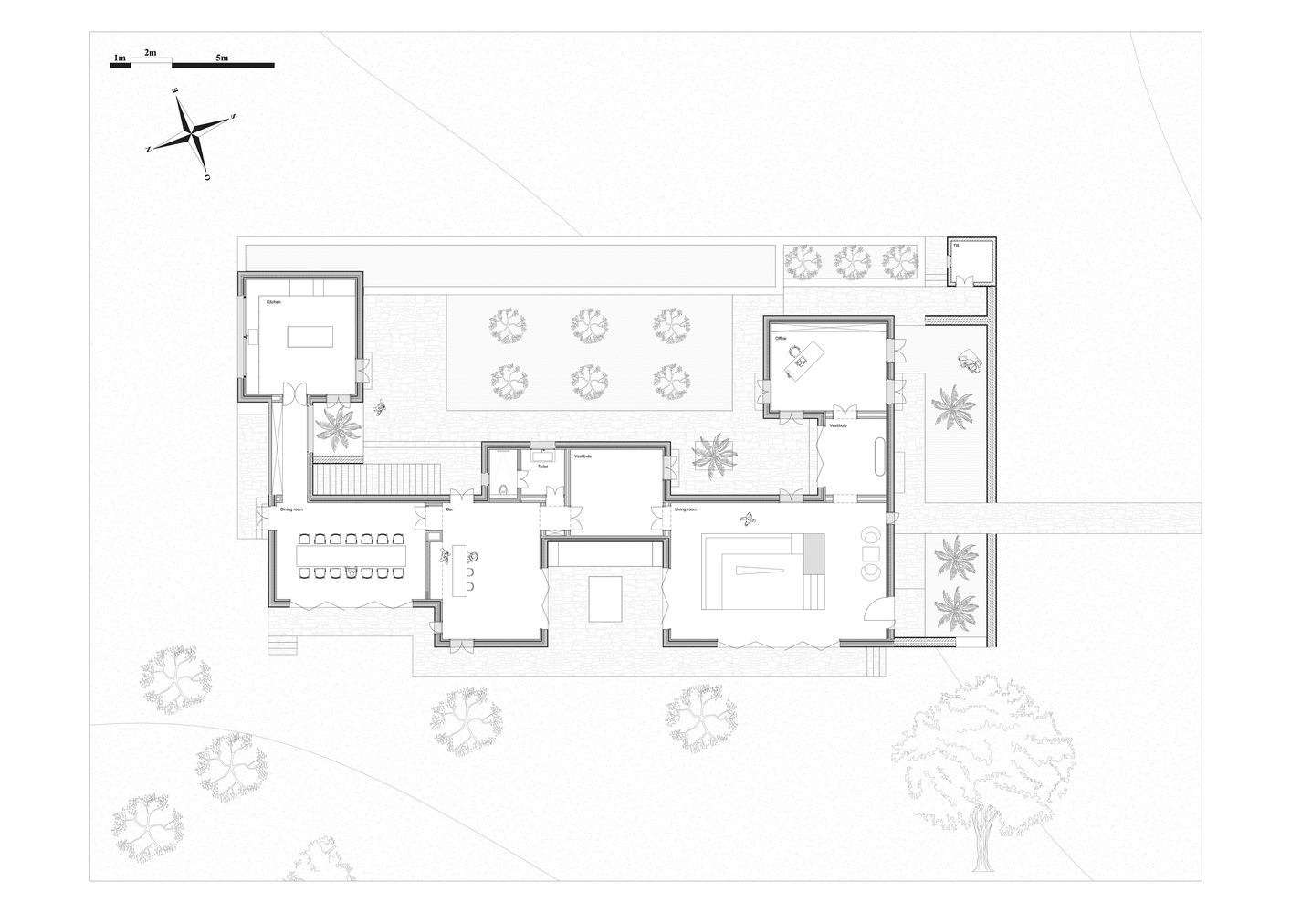
AREA
350 m²
YEAR
2025
LOCATION
Essaouira, Morocco
CATEGORY
Residential Architecture, Houses
English description provided by the architects.
Set in the hills near Essaouira, Morocco, DDAR is a modern rustic villa that embodies a dialogue between tradition and contemporaneity, craftsmanship and landscape.
Designed collaboratively by architect Othmane Bengebara and the owner, the house is conceived as a living structure rather than a fixed object — a place where architecture becomes a vessel for creation, exchange, and cultural transmission.
Built by hand using ancestral techniques, the villa draws from the vernacular forms of rural Morocco, merging local know-how with an environmentally conscious approach to design.
Its irregular rhythm, tactile surfaces, and sculptural volumes blend seamlessly into the surrounding terrain, giving the impression that the house has grown organically from the land itself.
The site, spread across ten hectares of wild hills, presented both an opportunity and a challenge: to create an autonomous home that would respect its natural context while offering comfort and openness. The project was envisioned as entirely off-grid, powered by solar energy and supported by an efficient water management system.
The design embraces the region's bioclimatic logic — high ceilings allow warm air to rise, while carefully oriented openings and shaded courtyards channel the coastal winds to cool the interior naturally. The architecture responds to the rhythms of light, wind, and temperature, creating a dwelling that breathes with its environment.
Every element of DDAR was crafted from locally sourced materials selected for their beauty, sustainability, and cultural significance.
The structure is composed of hand-formed earth and lime-based renders that provide natural insulation and a warm, tactile finish. Floors and walls feature traditional tadelakt and rammed earth techniques applied by skilled artisans from nearby villages.
Wood from regional species such as thuya and eucalyptus was carved by local carpenters working less than two kilometers from the site, while metalwork elements — doors, handles, and light fixtures — were hand-forged by blacksmiths from the Essaouira region.
Natural stone found on-site was used for the exterior landscaping and pathways, reinforcing a deep connection to the land and its resources.Inside, the architecture fosters a sense of intimacy and exchange. The living room, conceived as a large sunken hearth, captures the project's spirit — both protective and open, inward and outward.
Sitting at eye level with the surrounding landscape, visitors are invited to slow down, reconnect with nature, and engage with one another.
Beyond its architectural qualities, DDAR functions as a platform for artistic collaboration.
Before and during construction, the owner initiated a series of creative partnerships with Moroccan designers and craftspeople: sculptural furniture by Younes Duret, ceramics by Khalid Bouaalam, silver-plated copper cutlery by Sara Moukhles, and handcrafted wooden games by Ben Elliot, all made in collaboration with local artisans. Select materials and objects sourced from Mauritania, Tunisia, and France enrich this narrative of cultural exchange between North Africa and the world.
More than a house, DDAR stands as a cultural ecosystem rooted in memory and shaped by collective creation. It celebrates the beauty of imperfection, the intelligence of local building traditions, and the resilience of handicraft in the age of standardization.
By combining ecological performance with artistic intent, the project redefines what it means to build with authenticity and respect — a home that grows from the land, tells its story, and continues to inspire those who inhabit it.












