ARCHITECTS
Winteri Arquitectura
ARCHITECT IN CHARGE
Rocío Henríquez R.
GENERAL CONSTRUCTION
Zurich Constructora
MANUFACTURERS
Cubiertas Nacionales, Graphisoft Archicad, MK
DESIGN TEAM
Marcia Alves, Sofia Orellana, Constanza Aguirre, Rocío Henríquez, Fernanda Véliz
TEAM LEAD
Joaquín Soffia
PHOTOGRAPHS
Joaquín Soffia Vega
AREA
288 m²
YEAR
2025
LOCATION
Frutillar, Chile
CATEGORY
Houses
English description provided by the architects.
The GF House is a single-family home located in the commune of Frutillar, Los Lagos Region, Chile.
It is positioned at the highest point of the subdivision, offering a privileged view of Lake Llanquihue and the Osorno and Calbuco volcanoes. The project strategies are based on enhancing the views towards natural landmarks and taking advantage of sunlight to achieve greater energy efficiency.
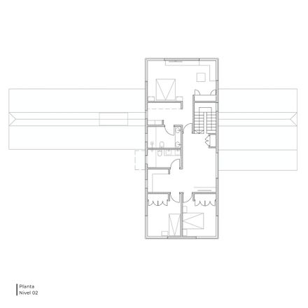
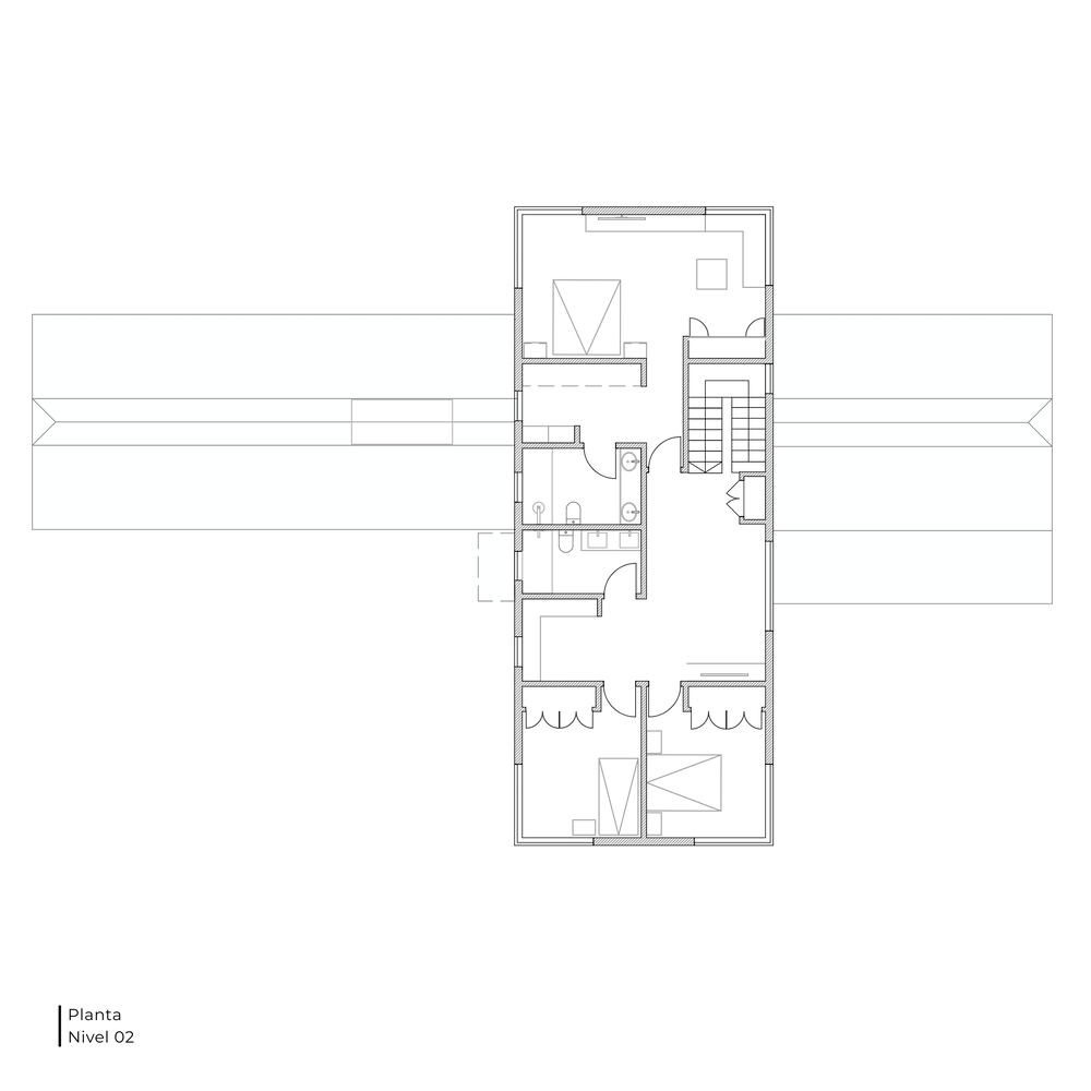
The program is developed over two floors totaling 288 m², with a cross-shaped plan composed of two staggered volumes, articulated by a large common space in its central vault. The displacement of these volumes resolves service areas such as access, parking, and machinery room.
The central vault serves as a continuous axis for the barbecue-living-dining-kitchen areas, fully oriented towards the landscape, accentuated by the double-glazed curtain wall that accompanies this area and allows for an unobstructed view, turning this space into a protected lookout.
Part of the strategies to maximize energy efficiency was to locate both the common areas and the bedrooms in relation to the solar path, strategically framing the landscape from within through openings to achieve proper natural lighting and enhance the relationship with the surroundings.
The choice of materials—recycled larch shingles for the entire envelope, reddish zinc roofs, native wood, and sliding gates at the entrances—is part of the design proposal that seeks to reinterpret the rural tradition of the architecture in the area, rescuing distinctive elements of barns, stables, and estates.
The symmetry of the volumes on all their facades seeks balance and visual control of the house in all its orientations. Its structure consists of a concrete slab elevated from the natural ground, upon which wooden framing with steel reinforcements is raised, particularly in the eaves.


















