ARCHITECTS
Studio Nirvana
PRINCIPAL DESIGNERS
Avinash Joshy, Steffy Thomas
MEP
Paitech Solutions
PROJECT ARCHITECTS
Liz Tomy, Fathima Thahseen, Greeshma Shaji, Arti Ghatge
SITE SUPERVISORS
Ragesh R, Abhijith Mohan, Vinu Nair
DOORS AND WINDOWS
Exelon Hi Fabs & Contractors (Schuco Partner)
AUTOMATION
Gadgeon Lifestyle
HVAC
Tranzcend Air Systems
FURNITURE CARPENTARY
Formave
CONCRETE FURNITURE
Ferrocon Concrete Factory
LIGHTING CONSULTANTS
Aasha Levin Lighting Systems Pvt Ltd (Spoon Lighting Partner)
MANUFACTURERS
FritsJurgens, &Tradition, 101 COPENHAGEN, M-Lime, Mario Tsai, Phantom Hands, Poj Studio , Sar Studio, Schuco International, Spoon Lighting, Stem Design
METAL WORKS
Studio Vinton
PHOTOGRAPHS
Ishita Sitwala
CONTRACTORS
Sravanti Design
YEAR
2025
LOCATION
Palakkad, India
CATEGORY
Houses
English description provided by the architects.
Zenhouse is a residential project designed as a vacation home in Palakkad, Kerala.
The project is not just a house; it's a space designed to function as a sanctuary. The concept is to create an idyllic, peaceful spaces that aim for a state of enlightenment through thoughtful design.
This is achieved through a minimalist design philosophy that eliminates visual clutter, reduces stress, and fosters a sense of mental clarity.
We were inspired by Zen concepts and wanted to create a space that would bring clarity and peace of mind to the occupants.
The design embraces the ideologies of Zen living - simplicity, harmony, and connection to nature.
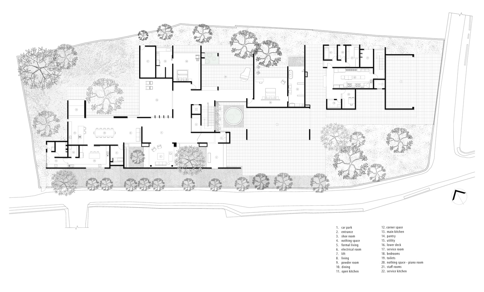
The main house is around 15000 sq. ft. The floor plan is an open, intuitive flow, with 5 bedrooms, living spaces, dining area with kitchen, indoor pool, and a meditation room.
The design is intentionally sparse, having many spaces with no functions.
Spaces are interconnected to encourage a sense of spaciousness and ease of movement. Natural light is treated as a design material.
To meet the project's requirements and vision, an outhouse was designed to accommodate a gym, spa area, and salon, which amounts to a total built-up of 20,000 sq. ft.
The site was over half an acre and had a number of fully grown mango and jackfruit trees, amongst others.
We tried not to cut any of the branches in order to fully preserve these trees.
The idea was to build around these trees, letting the built form take shape; hence, the layout had to organically evolve around these trees, creating a series of voids and shifting geometries.
The layout was carefully planned around the trees, with the form adapting to their locations.
The trees' canopy and leaves filter sunlight, creating a dynamic and ever-changing play of light and shadow throughout the day, and become an integral part of the interior atmosphere.
The material choices are honest, natural, and calming. The idea was to gradually create emptiness in the minds of the occupants and, in turn, create fresh thoughts, clarity in their minds.



































