ARCHITECTS
Studio Kyriakos Miltiadou
OFFICE LEAD ARCHITECTS
Kyriakos Miltiadou, Maria Tsoupani
DESIGN TEAM
Studio Kyriakos Miltiadou
ENGINEERING & CONSULTING > LIGHTING
Conem Consulting, Archtube
MANUFACTURERS
Rabel Aluminium Systems, El Greco Gallery, Il Bagno, Kyriakides Lighting, Mobhaus
PHOTOGRAPHS
Creative Photo Room
AREA
210 m²
YEAR
2025
LOCATION
Nicosia, Cyprus
CATEGORY
Hospitality Architecture, Residential Architecture
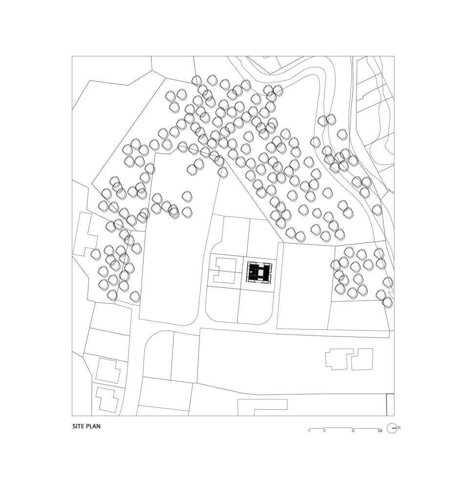
Situated near a sparse forest with intriguing vistas over the suburbs of Nicosia, this house stands in a deliberately ambiguous way: Rather than adopting a conventional residential typology that opens outward to offer uninterrupted views of the surrounding landscape, it rises as an austere, introverted box.
Is it a building, a sculpture, or a container? The proposal constitutes an elaboration of the primordial dwelling-box and its reinterpretation in relation to contemporary modes of domestic living.
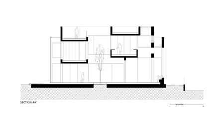
The design begins with a three-dimensional grid - a lattice of points forming the rudimentary outline of a box with a 14×17 meters plan.
Fragments of the landscape gradually infiltrate the box, triggering its progressive fragmentation. Through this systematic process of erosion, a complex prismatic composition of voids and solids emerges.
Four vertical walls, six meters high, wrap around the box, holding its split volumes within a coherent yet fluid whole.
Carved with vertical cuts, these walls act as mediators between the inside and outside world: filtering, protecting, framing, and revealing - fostering a dialectical relationship with the forest, the city, and the sky.
Acting as a 'collector', the box absorbs both tangible and intangible layers of its surroundings, reinterpreting them in relation to the family's domestic life.
What emerges morphologically is at first unfamiliar and deeply primal: a cube nested within a cube. An austere yet perforated shell is encased within another, standing as an archaic stone within its context.
A vertical slit on the east façade serves as the entrance, emphasizing the transition from the exterior to the inner world of the building. The first encounter is with an open yet sheltered garden: a central space that becomes a key compositional element around which the family's daily life unfolds.
This focal point is part of a continuous network of outdoor spaces, passages, and courts that surround the built mass vertically and horizontally.
Planted with local vegetation and filled with natural light from above, they form a unique inner 'garden' nestled within the broader landscape.
Internally, the house is organized across four distinct levels. On the ground floor lie the public areas, the kitchen, dining room, and living space. On the upper level, the private rooms unfold across two different planes.
Intermediate spaces are used to provide a fluid arrangement between the functional units of the house, blurring the boundaries between the public and private spheres of domestic life.
A hidden external staircase leads to a small rooftop terrace above. Here, the roof dissolves into the intense Mediterranean blue of the sky, while much of its surface is planted with vegetation, fostering conditions for the creation of a microclimate. A horizontal aperture at the far end frames a captivating view of the forest.
The structural and architectural design operates as a unified entity. The building is monolithic, constructed entirely from exposed concrete.
The sculpted surfaces envelop human activity, transforming it into a dwelling space. Vegetation climbs and gradually softens the monolithic presence of the structure.
The interplay between human activity, architecture, and nature becomes continuous and inseparable.














































