
LuxeIsland Restaurant
ARCHITECTS
DL Atelier
LEAD ARCHITECT
Liu Yang
LANDSCAPE
Wtd Group
CONSTRUCTION DOCUMENTS LEAD
Udg
TENANT INTERIOR DESIGN
Wuhan Shi Er Ping Fang Design Consulting Co., Ltd.
CLIENTS
Chengdu Luhu Cultural Tourism Development Co., Ltd.& Wuhan Luhua Real Estate Co., Ltd.
DESIGN TEAM
Liu Yang, Xu Dan, Hu Yiwei
PHOTOGRAPHS
Yumeng Zhu
AREA
200 m²
YEAR
2025
LOCATION
Wuhan, China
CATEGORY
Restaurant
English description provided by the architects.
In early 2023, LUXELAKES planned to launch a new project in Wuhan.
Having collaborated on multiple previous projects—such as Dotsss Children's Museum, Edenland Architectural, and CPI Planning in Chengdu, as well as The CAPE Commercial District and Qilou Historic Street Planning in Hainan—we were already familiar with each other and worked together seamlessly.
As a result, we collaborated again to design a restaurant within a children's playground. During the preliminary planning phase, the restaurant was named "The Brave Cabin," as it was surrounded by challenging recreational climbing equipment.
We hoped the building would inspire children's courage to overcome difficulties. With an indoor area of less than 200 square meters, the building has a relatively small footprint.
Our goal was to create ample semi-outdoor spaces where visitors could relax in the shade. Additionally, thanks to its prominent location at the island's gateway, the building is visible from a distance to arriving visitors.
At that time, I often read the poems of the Southern Song Dynasty poet Jiang Jie, and was particularly drawn to his straightforward yet vivid expressions. There's an indescribable lightness and peculiar charm to them.
While working on this design, I was more or less influenced by this direct way of expression. Without overthinking, I simply wanted to create a mountain—a small, dancing mountain.
How can a mountain be made to dance? I recalled two paintings: Henri Matisse's "Dance," created when he was 40, and Wang Ximeng's "A Thousand Li of Rivers and Mountains," painted when he was just 18.
I sought to capture the vitality and youthful spirit embodied in these works—whether through formal imitation or an intuitive grasp of their essence—and ultimately translate it into architectural space.
We then integrated considerations of site layout, functional requirements, scale, construction methods, and materials into this design.
More importantly, we adjusted the relationship between visual symbols and physical perception, ultimately leading to the realization of the architectural design—even two designs.
The first design planned to use oxidized copper panels, while the second used solid wood strips. However, the first design involved extensive double-curved surfaces, which made it very expensive.
Therefore, the second design, which used entirely flat surfaces, was ultimately selected. As one of the first standalone buildings to open on LuxeIsland, this building serves as a showcase for the LuxeIsland.
Accordingly, the layout gently curves and extends along the island's shoreline, while the building's height was designed with so much mass that it remains visible from across the river through the gaps in the foliage.
As visitors walk across the open lawn and weave through the woodland, gradually approaching the building, the "little mountain" stands out prominently, inviting them to explore further.
As visitors walk across a grassy slope, the structure suddenly unfolds before them—massive solid wood volumes floating above the ground, with triangular pyramids connecting hands, swaying and dancing.
Children will be thrilled by the sight of this colossal form, dashing toward the cantilevered roof that spans over ten meters.
The building, reminiscent of a spacecraft poised for takeoff, once again elevates both mood and sensation of visitors to a climax.
The parents who follow their children enjoy some leisure time, chatting beneath the eaves, which stretch out like a giant tree.
With their children running and playing in front of them, the parents occasionally call them over to rest and get a drink. Behind the fully transparent glass, the restaurant and water bar are also bustling with activity.
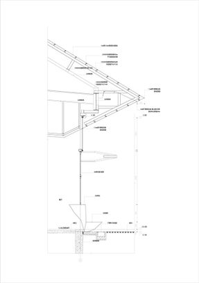
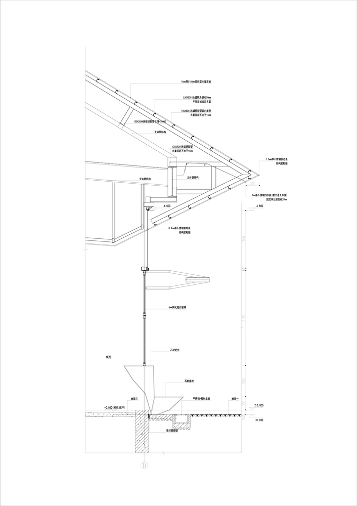
To make the layered, mountain-like roof appear as though it is leaping up from the ground, the main structure of the building is supported by four clusters of composite steel columns.
These columns are clad in black stone panels, with parts of the cladding extended to form functional features such as outdoor seating, takeout counters, and wash stations.
The roof adopts a steel space frame structure to achieve long spans and cantilevers. Its entire exterior is clad in solid wood strips, which are interspersed with triangular openings that also house indoor lighting and air conditioning vents.
Large equipment, such as kitchen and HVAC systems, is entirely concealed within the roof structure.
During the design phase, we initially envisioned the roof structure as a rooftop terrace to increase dining seating capacity and enrich spatial experiences.
However, this concept was later abandoned due to operational considerations. Nevertheless, the roof's form was preserved, as functionality is not solely defined by physical accessibility.
Visual experience and the overall spatial hierarchy of the park are equally integral to a space's functional value.
We humans are inherently incomplete, reliant on third-party tools to supplement our capabilities. For instance, we need shoes to run, chopsticks to eat, cars to travel faster, and computers to enhance our thinking—these seemingly functional extensions help us become "human."
Similarly, our minds are not self-sufficient; we require nobility, humility, dignity, and courage, which also depend on external support—such as music and art. In the same way, architecture serves this very purpose: to help us become more whole as individuals.
For me, the focus of this design leans more toward the latter and is driven by people's "somatic intuition."
First, when we initially perceive the "little mountain" form, inherent memories and emotions are instinctively evoked by this symbol, drawing us into a context of nature and childlike innocence.
Then, as we approach the building, its substantial volume, dynamic posture, and unusual shape engage our physical senses, immersing us in a state of excitement and activity.
In such a state, the inner voids within the human psyche are magnified—children may become braver, dashing toward climbing structures to explore and challenge themselves through play. This, perhaps, is the true meaning of the Brave Cabin.






































