
Hélène Carrère D'encausse School
ARCHITECTS
Archi5, Bureau Faceb
DESIGN TEAM
Archi5, Bureau Face B
LANDSCAPE ARCHITECTURE
Zb Paysages
ENGINEERING & CONSULTING > OTHER
Alma Consulting
PHOTOGRAPHS
Louis Duboys Fresney
AREA
3164 m²
YEAR
2025
LOCATION
Marly, France
CATEGORY
Educational Architecture, Schools
English description provided by the architects.
A School in the Trees - Located at one of the entrances to the town, the school heralds the renewal of Marly.
The merger of the Nelson Mandela and Louise Michel schools is a powerful political act, embodied by a unifying and emblematic school facility.
The green landscape is the foundation of the project. A school focused on nature, surrounded by trees.
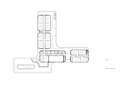
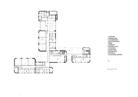
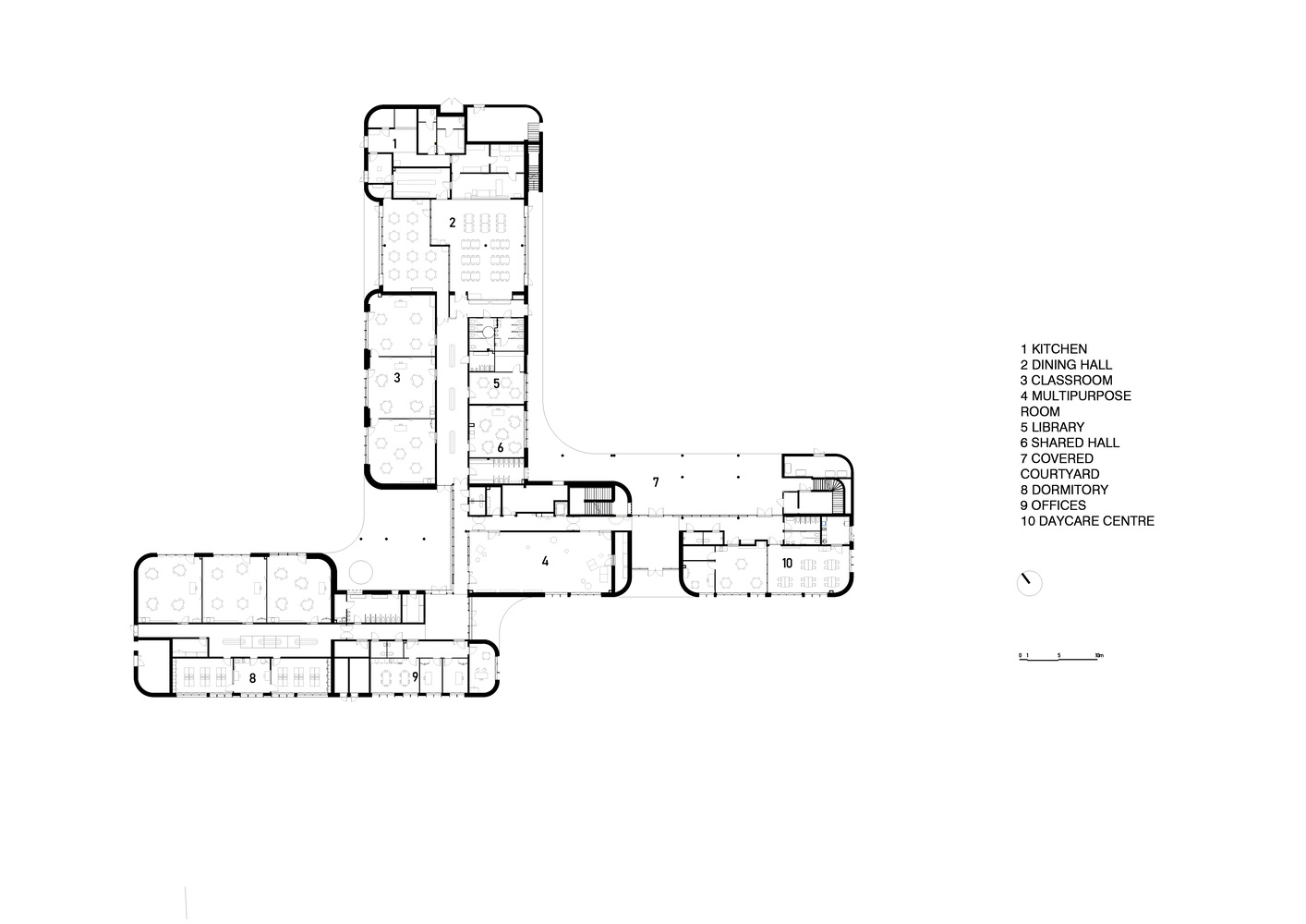
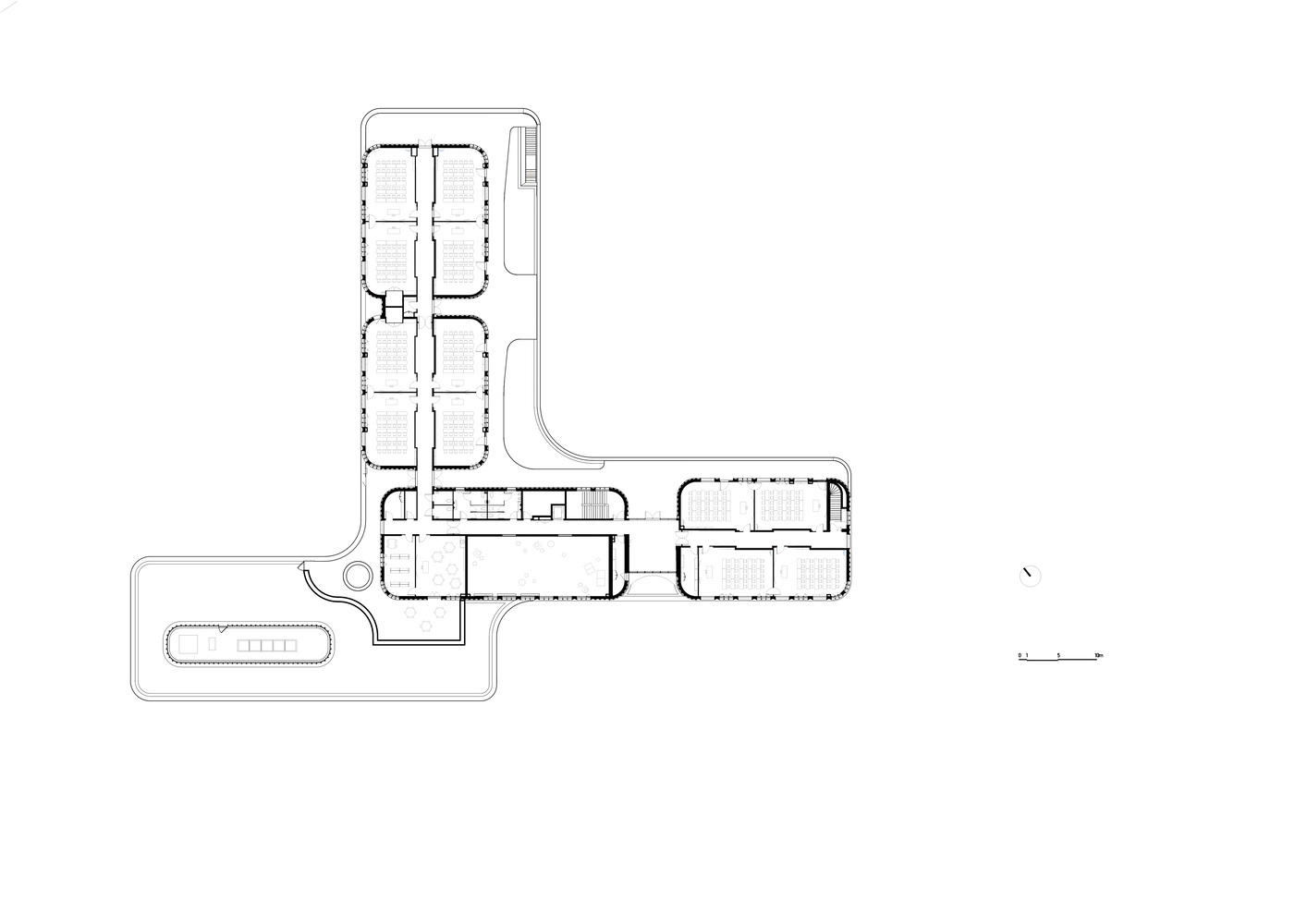
The building's layout can be interpreted in several ways. Two branches extend and come together as one towards the heart of the park.
One comes from the east, the other from the west, like the pupils. This junction divides the southern part of the park into two playgrounds corresponding to the two schools, nursery and primary.
The challenge for the school complex is to engage with the city, the outside world while creating a protective interior for the children.
The project develops a play of curves and counter-curves linking the different elements of the programme and the associated outdoor spaces.
Through its soft shapes, noble materials, and eco-friendly approach to school facilities focused on nature, the project expresses the city's ambition: quality education for all, attention to shared built heritage and ecology, and the dawn of a new era.
The project is structured around two materials: a concrete base clad in mineral brick, providing a solid foundation in contact with the public space, and a wooden attic with wood fibre facades and insulation, whose lightness reinforces the image of the school in the trees.
Program - Construction of a school complex: 12 primary classrooms, 6 nursery classrooms, a kitchen for reheating 165 meals/day, after-school care, a multipurpose room, skills room, and library.
Landscaping: park development, tree-lined forecourt, oasis courtyard, and playground, shaded areas, educational vegetable gardens on the roof, and plant heritage.















