ARCHITECTS
Ppaa
TEAM
Pablo Pérez Palacios, Emilio Calvo, Miguel Vargas, Adán García, Andrés Domínguez, Nancy Estévez
AREA
342 m²
YEAR
2024
LOCATION
Valle de Bravo, Mexico
CATEGORY
Houses
Located in Valle de Bravo, Mexico, Casa Ocote is conceived as a peaceful retreat for two friends and their families—where shared living and privacy coexist in balance.
The design proposes a layout that encourages connection in the common areas while ensuring intimacy in the private spaces.
The mirrored image of the façade on the water amplifies the beauty and perception of both the architecture and its surroundings.
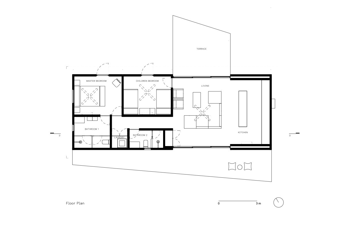
On the ground floor, the social areas—living room, kitchen, and dining room—are generously shared and seamlessly integrated with a large semi-covered terrace.
This outdoor extension is designed to take full advantage of the warm climate and panoramic views.
The layout creates a fluid transition between interior and exterior, promoting a versatile and inviting outdoor living.
On the upper level, the private areas remain separated and thoughtfully designated for each family.
The program unfolds symmetrically from a central staircase, which serves as the structural and spatial axis of the house.
On each side of this core, the bedrooms and private terraces are arranged, each offering privileged views of the garden and surrounding landscape.
These terraces provide quiet, intimate spaces—ideal for contemplation and relaxation.
More than a rest house, Casa Ocote is a retreat that invites to reconnect with nature and strengthen personal bonds, under a serene, precise and carefully balanced architecture.

































