Coonawarra Willam Aquatic Centre - Ivanhoe Grammar School
ARCHITECTS
Peddle Thorp Architects
SPORTS LEAD
Rob Alessi
PROJECT ARCHITECT
Alex Davies
LEAD DESIGNER, CLIENT RELATIONSHIP MANAGER
Socrati Seretis
ENGINEERS/STRUCTURE
Northrop Consulting Engineers
TOWN PLANNING
Ratio Planning
TECHNICAL LEAD
Robert Abajas
TECHNICAL SUPPORT
Wenting Gan
MAIN CONTRACTOR
Building Engineering
SERVICE ENGINEERS
Njm Design
POOL ENGINEER
Hydrautech Designs
MANUFACTURERS
Fairview, Keystone Linings & Acoustic, Laminex, Lysaght, Megasorber
PROJECT MANAGER
Debtech
CLIENT
Ivanhoe Grammar School
PHOTOGRAPHS
Victor Vieaux
AREA
2333 m²
YEAR
2025
LOCATION
Victoria, Australia
CATEGORY
Schools
English description provided by the architects.
The Coonawarra Willam Aquatic Centre redefines how wellness, education, and culture can coexist in a single, integrated environment.
"This new centre is crafted to enhance Ivanhoe Grammar's commitment to fostering balanced, active lifestyles in line with its educational values. The design incorporates contemporary, sustainable elements, ensuring it serves as a lasting, environmentally friendly asset for the school and future generations." – Socrati Seretis, Design Lead and Project Principal.
STAGE 1: EVALUATING THE SITE CONDITIONS AND TESTING THE BRIEF
The project began with an understanding of place. For the Coonawarra Willam Aquatic Centre, the first stage involved an evaluation of site conditions, including topography, environmental factors, and how the facility would integrate with the campus.
An established native gum tree of significant character and ecological value was identified early, and the building footprint maneuvers to preserve and celebrate it as part of the landscape experience.
Collaboration with school leadership and key stakeholders enabled the brief to be tested and refined so the design would promote student wellbeing while supporting broader educational and community aspirations. This foundation ensured the project responded directly to both physical context and program needs.
STAGE 2: A VISION INFORMED BY CONTEXT AND THEMING
With the brief established, the design team focused on developing a vision rooted in meaning and identity.
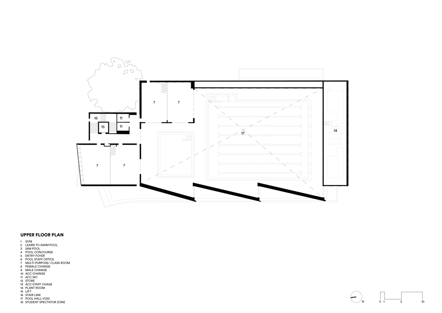
The architectural language references the learning environment of the campus, seen most clearly in the north facade, where a rhythmic composition recalls the form of stacked textbooks as a symbol of knowledge and growth.
The material palette complements the adjacent historic chapel, using muted textures and tones to honor rather than compete with existing campus character. A defining feature of the building envelope is the avenue wall, finished in warm earthy tones drawn from the natural colors of the local landscape.
Above, a saw tooth roof form captures soft natural light and draws it into the main pool hall, creating a calm, open interior with a strong connection to daylight and sky.
STAGE 3: DELIVERING THE CORE FACILITY FUNCTIONS
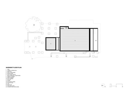
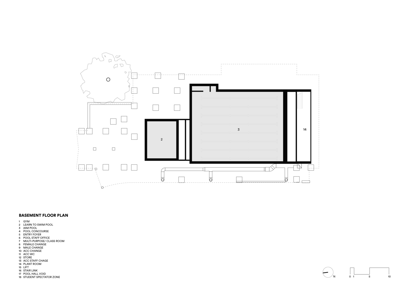
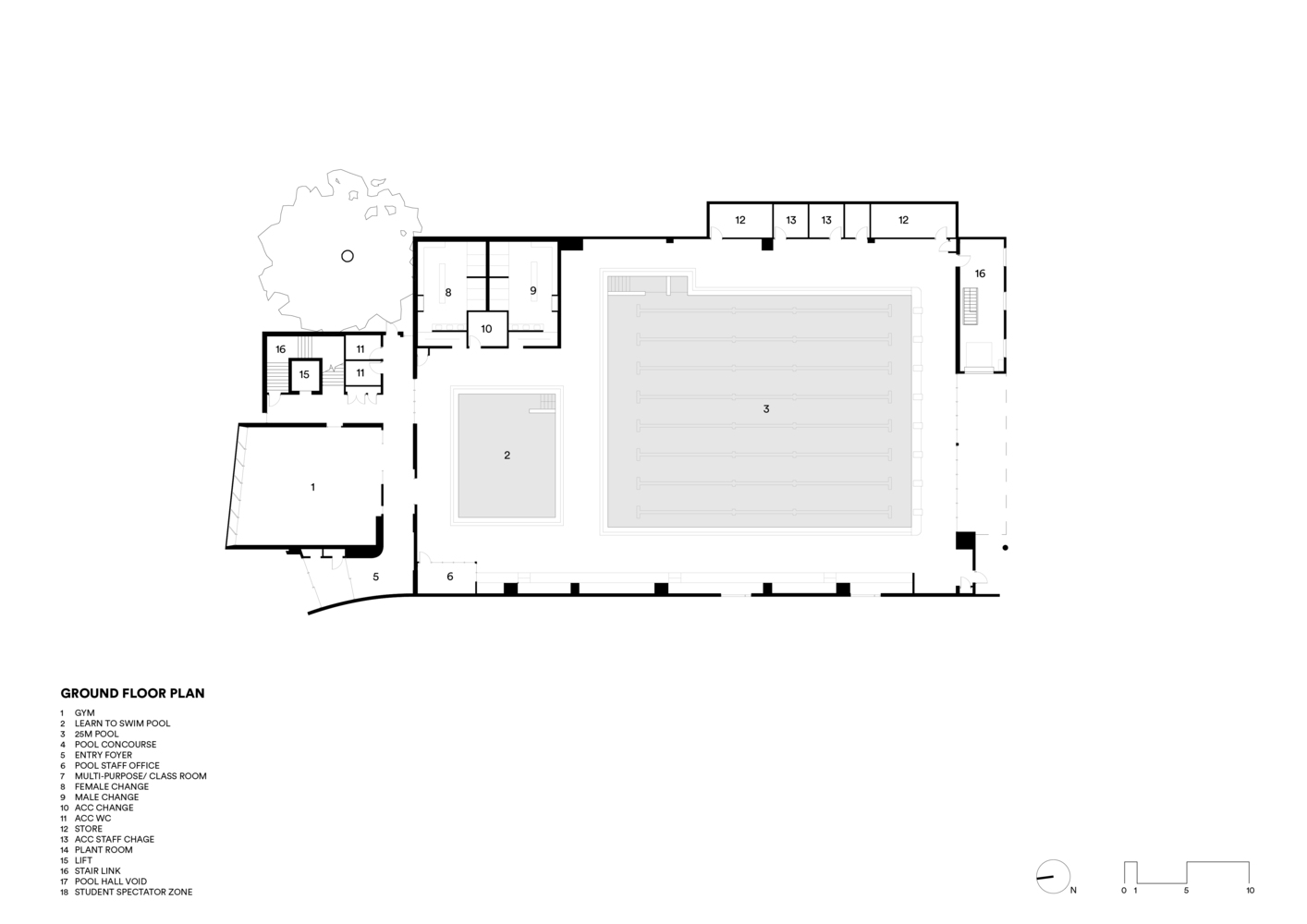
This stage focused on translating the vision into functional spaces. The centre includes a 25-meter lap pool, dedicated learn to swim areas, multipurpose learning rooms, and supporting amenities.
The design balances efficiency with atmosphere, ensuring that each space is practical, comfortable, and uplifting. Visual connections between aquatic spaces and learning areas reinforce a holistic approach to health, education, and personal development.
Every space has been designed to feel inclusive and supportive of both structured training and casual wellbeing use.
STAGE 4: COMPLETING THE VISION
The final stage refined the architecture, material expression, and landscape integration.
The outcome is a cohesive and welcoming center that reflects the values of the school and the character of the surrounding environment. It is a place that encourages connection, participation, and pride, supporting both everyday activity and moments of celebration.
"This world-class precinct supports not only athletic excellence but also curriculum innovation and community engagement. It has already become a hub for inspiration, camaraderie, and growth." – Gerard Foley, Principal, Ivanhoe Grammar School.




























