ARCHITECTS
Studie
LEAD ARCHITECT
Ivan Eldo
DESIGN TEAM
Aidil Akbar
TECHNICAL TEAM
Ilham Sulthony
MANUFACTURERS
Alderon, Alexindo Aluminium, Germany Briliant, Niro granite, Omah Bata, Toto, Wisma Sehati
LANDSCAPE ARCHITECTURE
Tanemind
GENERAL CONTRACTOR
Nda Construction
AREA
170 m²
YEAR
2024
LOCATION
Jakarta, Indonesia
CATEGORY
Houses
English description provided by the architects.
This house is named the 10º house because the axis of the facade is tilted 10 degrees to the east. This project is a renovation of an old house.
It is a striking example of contemporary tropical architecture, merging robust material expression with a refined spatial composition. The house exhibits a monolithic exterior characterized by board-formed concrete façades that evoke a raw yet deliberate aesthetic.
The texture of the concrete panels—retaining the imprint of the wooden formwork—imbues the structure with a tactile quality, grounding it in material honesty and craftsmanship.
The interplay between solid and void is orchestrated through precisely placed apertures and deep recesses, allowing controlled daylight to filter through while maintaining privacy from the street.
The overall massing is sculptural and geometric. Volumes appear to interlock and cantilever, creating dynamic shadow play and a sense of weightlessness despite the heavy material palette.
The front elevation juxtaposes the roughness of concrete with the warmth of vertical wooden cladding, producing a visual balance between industrial austerity and natural tactility.
A minimalist garden punctuates the entrance, featuring a single tree whose organic form softens the rigid architectural lines, offering a tranquil transition between exterior and interior realms.
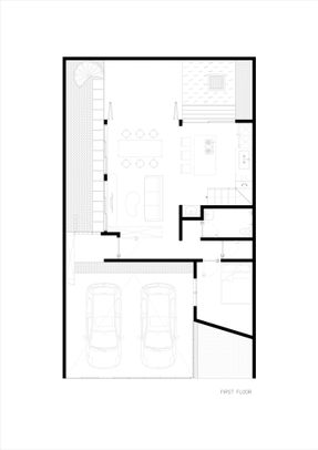
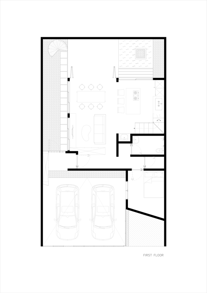
Inside, the architectural language continues with an open-plan layout that celebrates fluidity and light. The living, dining, and kitchen spaces are organized around inner courtyards and sliding glass partitions, ensuring continuous visual and spatial connectivity.
Natural illumination is carefully modulated through skylights and full-height openings, creating a play of brightness and shadow that changes throughout the day.
The integration of greenery within the interior courtyards reinforces biophilic principles, enhancing cross-ventilation and thermal comfort in the tropical climate.
Material continuity strengthens the architectural narrative. Polished concrete floors, warm timber ceilings, and clean white walls generate a subdued yet elegant atmosphere.
The central kitchen island, composed of exposed concrete with embedded lighting, becomes both a functional and sculptural centerpiece.
The ceiling treatment, featuring linear wooden slats with concealed lighting, adds rhythm and warmth to the otherwise minimalist composition.
The private areas of the house maintain the same attention to detail. The bathroom, for instance, juxtaposes cool gray stone surfaces with a bold turquoise cylindrical basin—an artistic gesture that enlivens the restrained palette.
Indirect lighting enhances spatial depth and accentuates textures, transforming utilitarian zones into serene retreats.
Overall, the house embodies a harmonious dialogue between mass and void, opacity and transparency, nature and material.
It demonstrates how contemporary architecture can be deeply contextual—responsive to climate and human comfort—while maintaining a poetic rigor in its tectonic expression.
Each space flows naturally into the next, unified by a calm material palette and a restrained, sophisticated design ethos that celebrates both structure and serenity.

















