Mixed-Use Building
ARCHITECTS
Samir Alaoui Architectes
LEAD TEAM
Samir Alaoui
TECHNICAL TEAM
Basile Immer, Nicolas Sternheim
DESIGN TEAM
Samir Alaoui Architectes
ENGINEERING & CONSULTING > CIVIL
Synaxis
MANUFACTURERS
Ego Kiefer AG, PORTES BRODARD, VMZINC, WALO Bertschinger
PHOTOGRAPHS
Rasmus Norlander
AREA
1634 m²
YEAR
2025
LOCATION
Bourg-en-Lavaux, Switzerland
CATEGORY
Mixed Use Architecture, Industrial Architecture, Penthouse
English description provided by the architects.
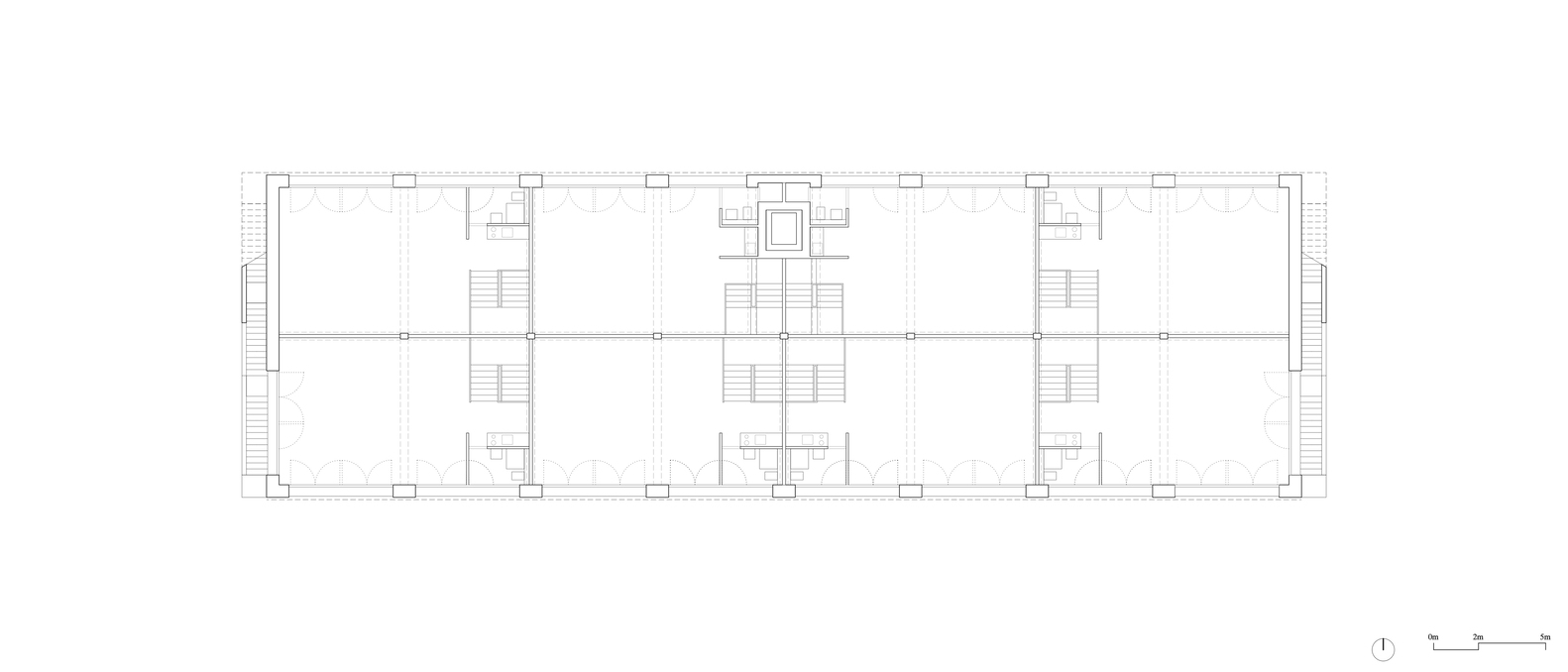
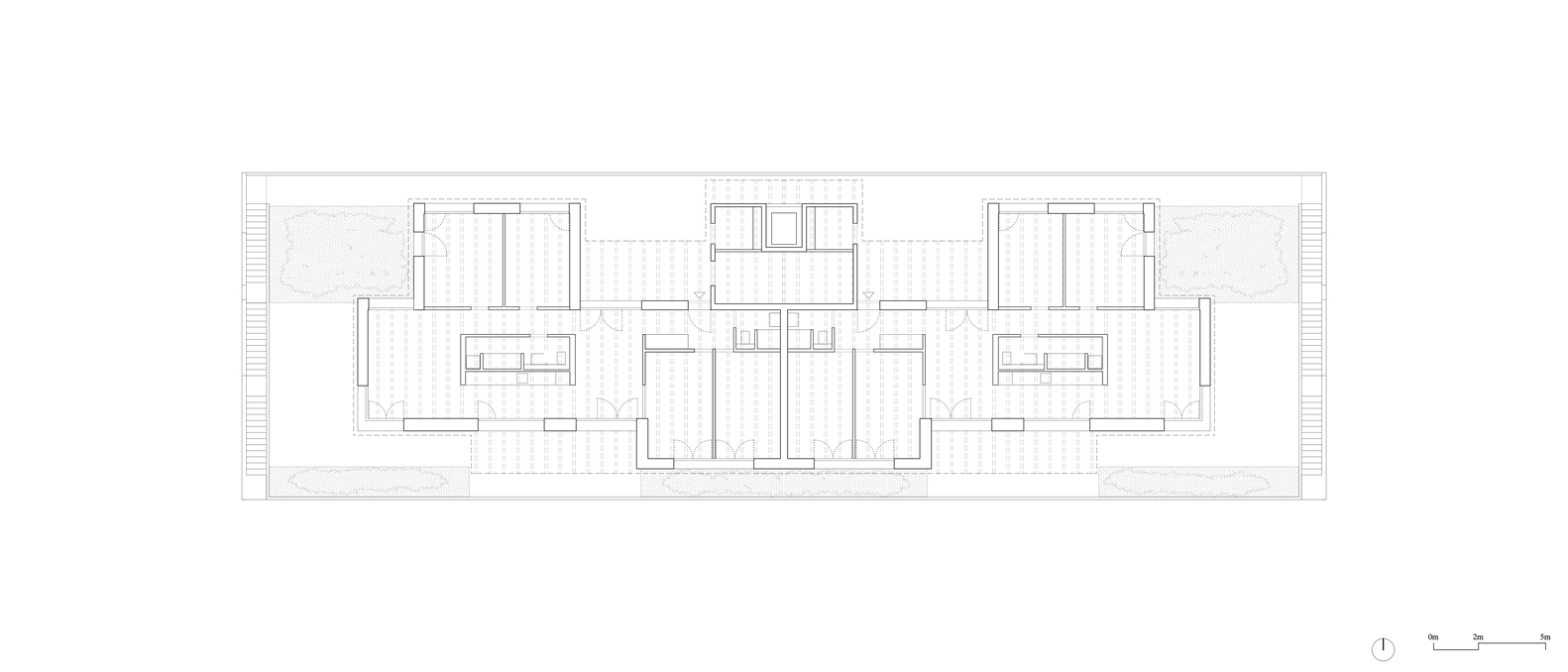
The project layers industrial premises on the first two levels and two penthouse apartments above.
The structure of the first two floors is designed to offer maximum flexibility for the adaptation and combination of spaces according to the occupants' needs.
To preserve the continuity of these two levels, the building does not have a stairwell for access to the apartments.
Instead, a shared elevator, accessible directly from the outside, serves the apartments, which also have private external staircases located at the ends of the building.
The apartments are organized around a central core that houses the shared bathroom and kitchen units.
Circulation can occur either on the north side, through a hallway connecting the entire apartment, or on the south side through the common living areas, with the kitchen serving as a pivot between the dining room and the living room.

























