Neighborhood Center Augustin
ARCHITECTS
Nbundm*
OFFICE LEAD ARCHITECTS
Chris Neuburger, Jan Bohnert, Anick Bohnert
DESIGN TEAM
David Grodon, Alina Tietz
ENGINEERING & CONSULTING > ACOUSTIC
Ibn Bauphysik
LEAD TEAM
Ekaterina Chevtaykina
ENGINEERING & CONSULTING > ELECTRICAL
Ingenieurbüro Martin Selch
PROJECT MANAGEMENT
Pb Reitberger
LANDSCAPE ARCHITECTURE
Nbundm*
PHOTOGRAPHS
Sebastian Schels Fotografie
AREA
450 m²
YEAR
2024
LOCATION
Ingolstadt, Germany
CATEGORY
Cultural Architecture, Community Center, Cultural Center
English description provided by the architects.
A heterogeneous working-class neighborhood from the 1960s receives a new social meeting point: Stadtteiltreff Augustin.
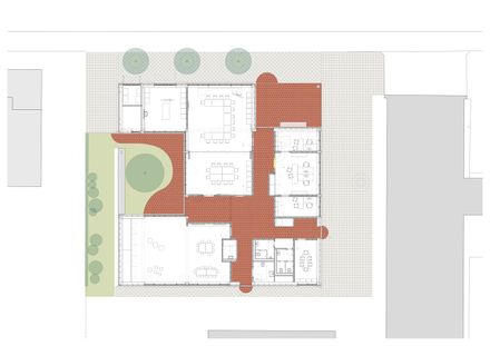
The site lies between a secondary school, a church, and cooperative housing. The aim was to create an open, low-threshold space, free of hierarchies, accessible to all, regardless of age, background, or social status.
In the spirit of radical sufficiency, the program was reduced to essential needs. The result is a single-storey, barrier-free pavilion organized around a central patio. All rooms are arranged at ground level and interwoven with the outdoor spaces.
The structure consists of an optimized reinforced concrete skeleton with columns and beams.
A cross-laminated timber ceiling forms the upper closure, while exterior walls are infilled with concrete blocks. Interior partitions are lightweight timber constructions incorporating storage, technical infrastructure, and built-in cabinetry.
A shared technical center with the adjacent school eliminated the need for a basement, stairwell, or lift. All surfaces remain untreated and repair-friendly, free of cladding, plaster, or paint. The exterior is wrapped in a folded aluminum façade.
Building technology was minimized: district heating connection via the school center, decentralized hot water generation, natural window ventilation, and a reduced electrical installation, lowering both construction and maintenance costs.

















