
Primeriza House
ARCHITECTS
Stanaćev Granados
FURNITURE AND INTERIOR DESIGN
Stanaćev Granados
LANDSCAPE
Vanessa Barrois (Landscaperschile) + Joaquín Lobato
STRUCTURE
Alberto Ramírez
LIGHTING
Stanaćev Granados
CONSTRUCTION
Claudio Lagos, Florent Dromard
AREA
256 m²
YEAR
2020
LOCATION
Chorrillos, Chile
CATEGORY
Houses
Primeriza House is located on a small clearing of an otherwise heavily sloped terrain with stunning views of the Pacific Ocean to the front and a strong backdrop of almost vertical slope densely populated by cypress trees.
Our clients wanted to make the most of outdoor living, and one of their key requirements was to create many opportunities to inhabit the exterior.
Another was to create various different environments, nooks and crannies, and moods inside the house. These two, combined with the plot and weather conditions, shaped the volume of the house and its many transitional spaces.
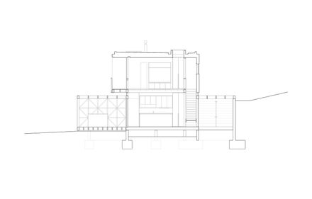
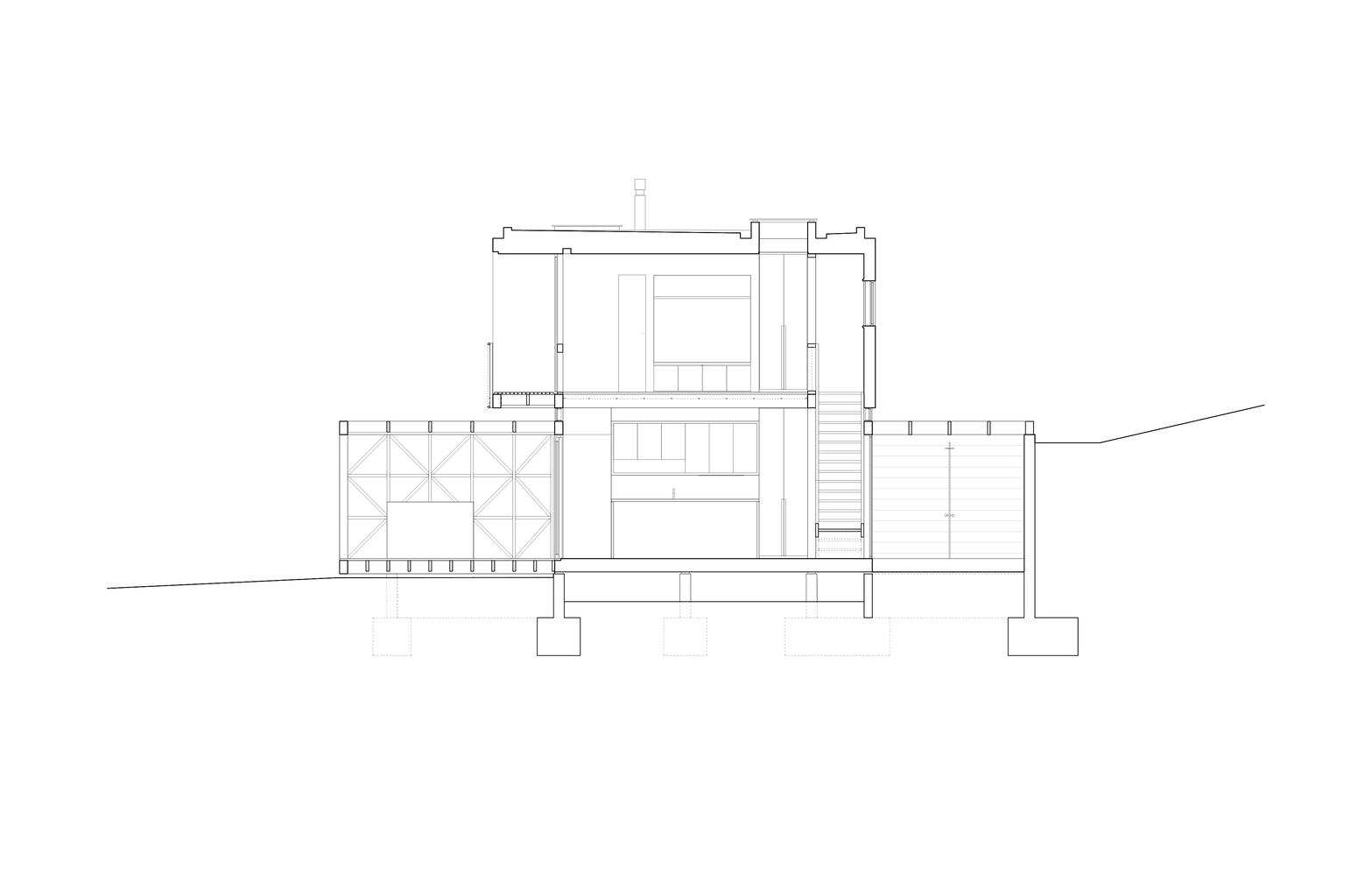
The house conquers the slope and inserts firmly into the terrain by means of a solid concrete base that houses a semi-buried garage and a large storage area, only to later morph into retaining walls that support the upper floors.
This opaque base allows for the terrain to flank the house and continue its natural slope around it.
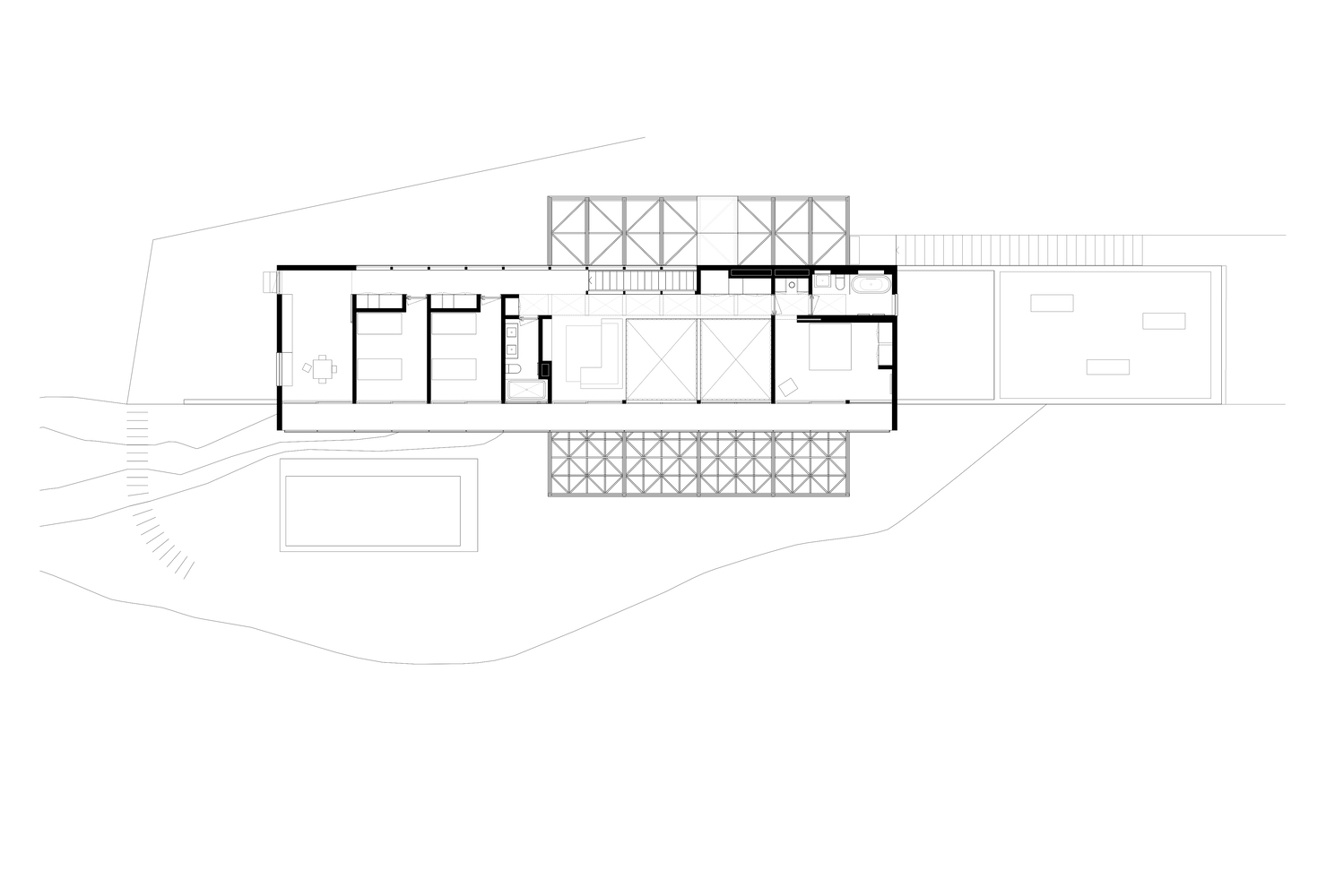
Spread upon this slope and nested between the exposed concrete wall and the landscaped hill, camouflaged into the vegetation, is the house’s pedestrian entrance.
Once surfacing completely to the ground level, one encounters the first of the house’s intermediary spaces: an oversized staircase landing of sorts, leading into the windbreak porch and mudroom.
This transparent prism, in turn, filters the view towards a small patio in what can be thought of as a kaleidoscopic sequencing of interior and exterior spaces.
In contrast to its solid and opaque base, the main living area, structured in wood and clad in floor-to-ceiling windows, opens up to visually encompass the main terrace to the north, the sunken landscaped patio to the west, and the entrance patio acting as a light well to the south.
It turns solid only to contain the storage and the serving spaces condensed around its perimeter.
Dark and moody, the living and dining room with a bespoke fireplace at their focal point extend vertically into the double height to connect to the open TV room and the circulations leading to the bedrooms, where the mood changes due to the pristine white of the finishing.
Thanks to this visual and auditory unity, family life can function uninterruptedly between the two floors, even during the earliest years of its younger members.
Wood is applied as the only interior material, but its treatment differs between the two floors: a dark semi-transparent tint is used for the first floor, and a solid semi-gloss white stain throughout the second floor.
While the first floor absorbs the light that washes its surfaces from all orientations, the second floor reflects the exterior colors – it turns absolute white on misty days, and when the weather is clear, it takes on the bluish tones of the sky and the horizon in the morning hours, and stains orange at sunset.
Lacing the floors apart is the safety net: suspended in midair, this wobbly surface invites the children’s play and family moments, while at the same time conveniently allowing us to bypass the railings altogether.
Working with the topography of the site allowed the house to connect organically to the terrain. A large terrace works as an exterior duplicate of the main living spaces and spills easefully into the landscape, which in turn becomes its natural extension.
Similarly, the playroom located on the second floor overflows towards a small plane that acts as its exterior extension and connects through landscaping interventions with the pool lounge and the main terrace. Interspersed thus, the house’s interior and exterior circulations make a full circle.









































