Weavers - Seer Green House
ARCHITECTS
Des Ewing Architects
DESIGN TEAM
Des Ewing
TECHNICAL TEAM
Mark Kelly
GENERAL CONTRACTOR
Roskyle Construction
MANUFACTURERS
Flexform, RENSON, C.P. Hart, CTO Lighting, Domus Tiles, Guttercrest, Murphy Joinery, PORTER, Perucchetti, Poliform, Poltrona Frau, Rathbanna, Smallbone, Toasted Wood, Trunk, VANDERSANDEN, Visual Comfort
LANDSCAPE DESIGNER
Park Hood
PHOTOGRAPHS
Donal McCann
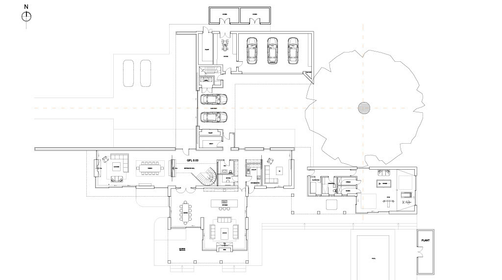
AREA
900 m²
YEAR
2022
LOCATION
Seer Green, United Kingdom
CATEGORY
Residential Architecture, Houses
English description provided by the architects.
This modern country house reinterprets the grandeur of traditional estates through a contemporary lens.
Drawing inspiration from the spatial organisation of classic country houses, the design balances proportion, symmetry, and scale with the practicalities of modern family living.
The result is a home that feels both timeless and forward-looking, where elegance and functionality coexist in harmony.
The exterior composition combines grey Wienerberger brick, natural stone, and a sleek Renson cladding system.
These materials were carefully selected to merge the house with its wooded surroundings: earthy textures echo the natural landscape, while the refined cladding introduces a contemporary edge.
Large expanses of glazing frame views of the forest, while colonnades establish a graceful threshold between indoor and outdoor space.
Landscape design by Park Hood strengthens this connection to nature, weaving lush planting and meandering pathways around the house.
At the garden's edge, a swimming pool and accompanying pool house extend the living environment outdoors, providing a private retreat for leisure and entertaining.
Executed with precision by Roskyle Construction and captured in photography by Donal McCann, the project embodies meticulous craftsmanship and a refined modern aesthetic.
The house stands as a contemporary reinterpretation of the country estate, rooted in tradition yet attuned to present-day living.














