67-unit Social Housing Building In Illa Glòries
ARCHITECTS
Pau Vidal, Vivas Arquitectos
LEAD ARCHITECT
César Vivas Millaruelo, Cristian Vivas Millaruelo, Pau Vidal
ENGINEERING AND CONSULTING > STRUCTURAL
Bernuz Fernandez Arquitectes
ENGINEERING AND CONSULTING > ACOUSTICS
Àurea Acústica
ENGINEERING AND CONSULTING > QUANTITY SURVEYING
Joan March Raurell
ENGINEERING AND CONSULTING > ENVIRONMENTAL SUSTAINABILITY
Societat Orgànica
PROJECT MANAGEMENT
Jaume Aballí
ENGINEERING AND CONSULTING > MEP
Eletresjota Tècnics Associats
AREA
9490 m²
YEAR
2024
LOCATION
Barcelona, Spain
CATEGORY
Social Housing
English description provided by the architects.
The Plaça de les Glòries Catalanes occupies a strategic position in the urban fabric of Barcelona, acting as a convergence point for three of its main arteries: Gran Via, Avinguda Diagonal, and Avinguda Meridiana.
Each of these contributes differentiated urban conditions: Gran Via connects to the eastern coastline and promotes mobility that reduces the presence of vehicular traffic; Diagonal structures the Eixample, articulating the connection between the sea and the higher areas of the city; while Meridiana transforms its urban character precisely upon reaching Glòries.
This node is also accessed by the historic Ribes road, designed as a civic axis that reinforces pedestrian and cyclist mobility, connecting neighborhoods and facilities in continuity with Clot street.
Within this urban context lies Illa Glòries, situated within the scope of the "Superilla" defined by Consell de Cent, Castillejos, Bolívia, and Independència.
The complex, regulated by the Special Plan for Urban Improvement (PEMU), consists of four buildings (pieces A, B, C, and D) and represents the largest promotion of social housing in the city, with a total of 238 homes. Building C, with 67 units, is part of this key intervention to promote a more inclusive, sustainable, and connected urban model.
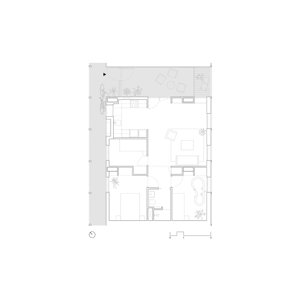
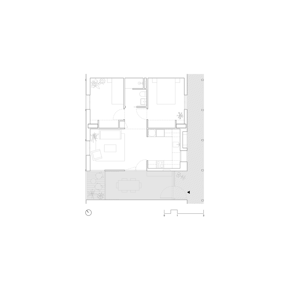
Building C - The proposal for Building C is based on criteria of typological flexibility, environmental sustainability, and social cohesion. The homes feature a double orientation typology, accessible from exterior walkways that connect to an interior courtyard.
This layout not only improves cross ventilation and solar gain but also facilitates the adaptation of the building to different heights and conditions of the immediate environment.
Starting from the fifth floor, the absence of piece B allows for the reorientation of the homes towards the south and the relocation of the walkways to the north façade, optimizing views and sunlight.
The building reinforces the community dimension through spacious common areas and connection walkways, which not only serve as circulation elements but also act as transitional spaces between private housing and public space.
These walkways allow for a more gradual access experience, fostering encounters between neighbors and promoting a sense of community.
To enhance natural lighting and ventilation of the courtyard, the built volume is strategically interrupted by terraces and passing galleries, articulated with vertical cuts and movable carpentry that grant permeability to the whole.
The access galleries, conceived as intermediate spaces, reinterpret the collective floor as a multi-story single-family home.
Situated at the threshold between domestic space and the street, these galleries provide functional, social, and climatic benefits.
They act as thermal and light filters, adapting to the seasonal cycle: open and ventilated in summer, they aid in natural cooling; closed in winter, they capture heat through the greenhouse effect, improving thermal comfort without resorting to mechanical systems.
Additionally, they extend domestic use to the exterior, enriching the spatial quality of the home.
This habitable threshold transforms access into a climatically efficient and socially active experience, reinforcing the autonomy of the home within the framework of a collective structure.
From a compositional perspective, the building is structured in horizontal strips—ground floor, walkways, community spaces, cornice, and vertical openings—in contrast to the verticality of the interior voids, generating a formal dialogue with the rest of the architectural ensemble.
The construction solution opts for a dry façade of high pre-industrialization, minimizing environmental impact. The structure is resolved with reinforced concrete slabs and columns.
The building has a basement level designated for parking, ground floor, and nine levels with seven homes per floor, in addition to two additional levels on the Gran Via façade, reaching a total of eleven floors.
The design incorporates renewable energy systems, such as centralized aerothermal energy and photovoltaic panels on the roof, ensuring high standards of energy efficiency and operation close to nearly zero energy consumption (NZEB).





















