ARCHITECTS
Atelier Ose Architecture
LEAD TEAM
Théo Vivien
DESIGN TEAM
Atelier Ose Architecture
MANUFACTURERS
Technal, DuPont, Schneider Electric, Arcelor Mittal, Onduline, Velux
PHOTOGRAPHS
Vladimir Jamet
AREA
137 m²
YEAR
2024
LOCATION
La Roche-sur-Yon, France
CATEGORY
Residential Architecture, Houses, Renovation
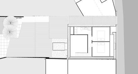
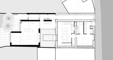
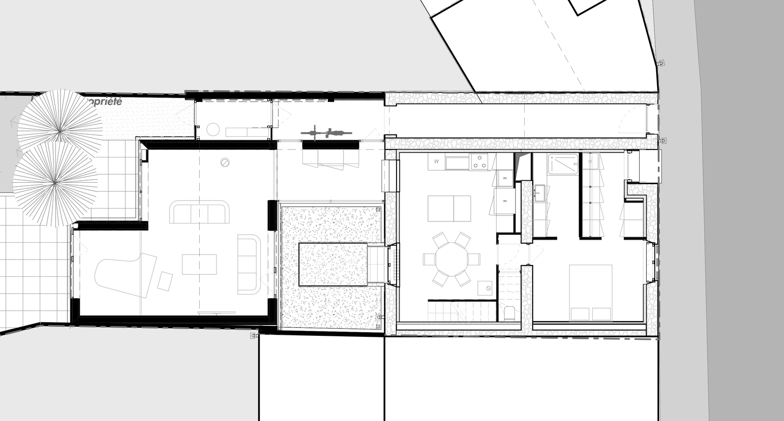
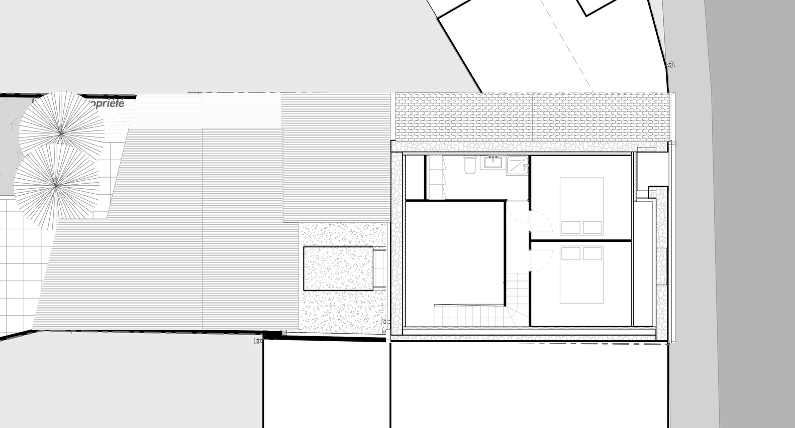
On a narrow, elongated plot, this former railway workers' house, fully renovated, and its garden-side extension are created around a central patio, which opens up and enhances the rear façade.
The patio preserves the occupants' privacy while allowing optimal natural light into every room. The new patio draws light deep into each room and shields daily life from view.
The L-shaped addition, clad in ribbed sheet metal and capped with sloping roofs, connects the interior to a sheltered terrace.
It slides between two preserved mature olive trees, turning them into quiet markers of time and framing steady, green shade beyond the glass.
With its contemporary character and deliberate contrast, the new structure complements and highlights the original house. It's a blink to the past with its raw, industrial style, in echo to the home's rich railway heritage.
The new patio centers the composition, opening the rear of the house while screening neighbors and the street. Daylight pours into adjacent rooms for long stretches, yet sightlines stop at planted edges for privacy that doesn't feel walled in. This void becomes the lung of the house, balancing exposure and refuge in daily use.
Roof overhangs on the southwest side temper summer sun and keep interiors comfortable through hot spells. They trim glare at peak hours, yet they don't shut the house down in cooler months, when lower sun angles still reach inside. The roof carries an anthracite tone that nods to the original slate, tying new work to old with a restrained, durable finish.
Ribbed sheet metal cladding gives the extension a fine-grained texture that catches light and shadow across the day. Inside, large anodized aluminum bay windows slide open to the living and lounge area, where the owner's piano takes center stage. Its industrial character acknowledges the site's railway past.
The rear façade is no longer an ending. It's a hinge between the interior and the garden. Rooms read as a sequence around the patio, and the terrace acts as a second living area when the weather allows.
Movement feels direct and unforced, a short drift from piano to paving to olive shade, with thresholds tuned for easy cross-ventilation and clear routines.
The house holds its line through seasons, quiet in profile and deliberate in how it meets sun, view, and garden.


























