Teacher's House
ARCHITECTS
Øblicuo
LEAD ARCHITECT
Alejandro Frias, Carlos Encarnación
GENERAL CONSTRUCTION
Rendy Severino
PHOTOGRAPHS
José Rozón
AREA
50 m²
YEAR
2025
LOCATION
Dominican Republic
CATEGORY
Houses
Located in Dos Bocas, in the province of El Seibo, Dominican Republic, a community that for generations has been dedicated to livestock and agriculture as its main source of income.
The community of Dos Bocas presents a low level of infrastructure, facing deficiencies such as access to transportation services, poor quality of housing, limited basic home equipment, lack of drinking water service, no sanitation service, very low access to education, isolation from urban centers that exclude it from the city's opportunities, and geographical isolation due to being surrounded by rivers.
In September 2022, Dos Bocas was severely affected by the entry of tropical storm Fiona into Dominican territory, which exposed the community's vulnerabilities, causing damage to over 60% of the housing infrastructure.
In this emergency situation, Guakia Ambiente, a nonprofit association, the Small Grants Program (PPS), and Oblicuo presented a project to the Dominican financial institution Banco BHD for the construction of 70 safe and resilient homes, designed to withstand future natural phenomena.
The teacher's house was the last to be built within the complex, and its design was modified thanks to the flexibility allowed by its owner. This gave us the opportunity to improve weak aspects of the previous prototype.
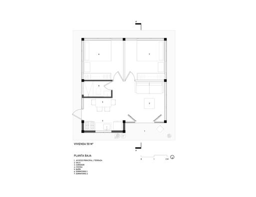
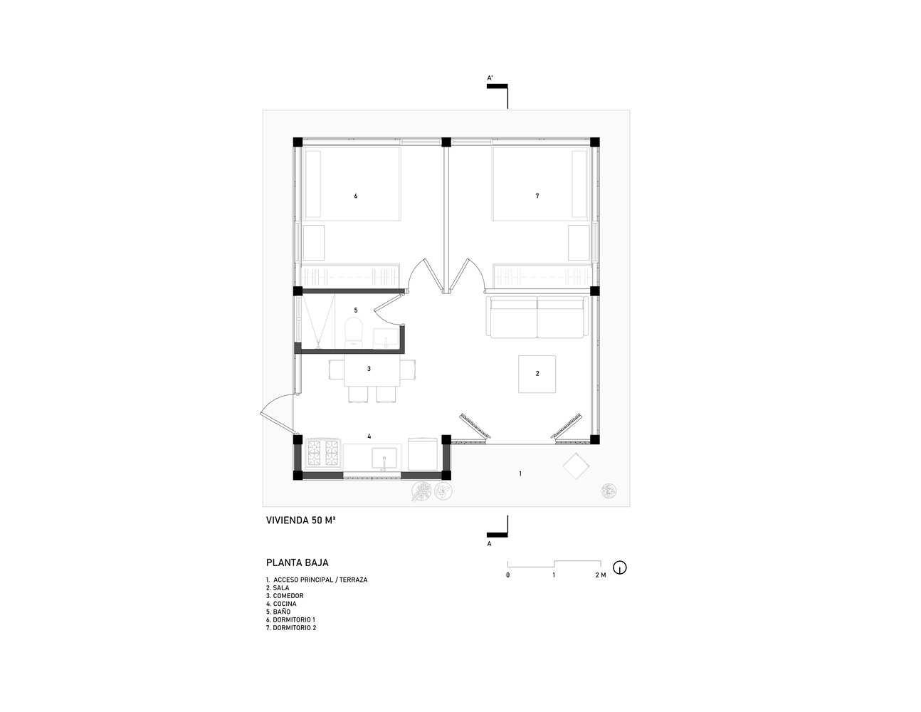
The dwelling has 50m2 in an architectural program distributed in 4 modules: 1 for kitchen and bathroom, 1 for living room, and 2 for 2 bedrooms. The modules governed the structure of the dwelling, and circulation spaces were minimized to maximize space utilization.
Respecting local construction methods, the process was divided into two stages; the primary, more costly techniques executed by qualified personnel ensured structural durability.
The secondary, carried out by the families, were accessible and fostered ownership, including tasks like painting, cladding, or changing doors and windows.
The choice of materials responded to their availability within a 4 km radius: concrete blocks, galvanized aluzinc sheets, treated pine wood, and polished concrete floors.
These were used with a conscious aesthetic criterion, reaffirming that beauty is also a right in rural housing.
The dwelling promotes rural life, where its social area opens to the outside, sharing it with family, neighbors, and domestic animals, thus keeping alive the Dominican culture and tradition of community living.
The development of a country is also measured by the quality and dignity of its housing across all social levels.
Having a roof is not limited to a physical shelter: it is a space that protects dreams, emotions, and well-being.
Rural housing is not just a basic need; it is the home where our producers, farmers, and ranchers raise and educate their families, the same ones that ensure the supply of food, resources, and raw materials that nourish and sustain our cities.























