
Hermit Resort
ARCHITECTS
Domain Architects
LEAD ARCHITECT
Xu Xiaomeng, Hannah Wang
DESIGN TEAM
Xu Xiaomeng, Hannah Wang, Yang Jie
PHOTOGRAPHS
Chao Zhang
AREA
1300 m²
YEAR
2025
LOCATION
China
CATEGORY
Hotels
English description provided by the architects.
The project site is close to a famous ancient relic—the Xing Kiln Ruins.
Dating back over 1,500 years, these kiln remnants have lost much of their architectural detail to the passage of time, yet the layout of the kilns remains vividly clear.
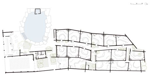
The most typical arrangement features several kiln chambers arranged in a horseshoe shape, semi-enclosing a small courtyard, allowing a single craftsman to oversee multiple chambers simultaneously.
The project site itself is also a relic—a remnant of a village that has been relocated, leaving behind a patchwork of broken walls on a gentle slope beside a stream.
Near the ancient ruins and atop contemporary remnants, we decided to create a new "relic." Why must "new" architecture be sleek and precise? Why not evoke the raw, moving power of archaeological ruins?
For typical architectural relics, once orderly structures and settlements take on a relatively random process of decay under the erosion of time.
However, the essence of layout usually remains clear, embodying a beautiful coexistence of orderliness and randomness. We hope to infuse this primitive, timeless aesthetic into the resort experience of the project.
Using a cluster of small, single-story buildings, we recreated a mountain settlement in wilderness. Like the Xing Kiln ruins, elements such as beams, walls, courtyards, and alleys are no longer distinct and easily identifiable.
Instead, they interweave and permeate one another, blurring their precise definitions and boundaries. This microscopic randomness within the macroscopic orderliness imbues the settlement with captivating surprises, whether sunny or cloudy, day or night.
All 50 guest rooms enjoy private courtyards. The interior and courtyard are not simply divided into boxes. Instead, the interior spaces semi-encircle the outdoor courtyards in a horseshoe shape, mirroring the layout of the Xing Kiln Ruins. This inverts the conventional indoor-outdoor relationship and blurs the boundaries between them. Guests will experience a unique sensation, as if they were inside a kiln chamber.
The first phase of the project is now complete and operational. We hope that today's guests can lose themselves in time through this primeval, rustic living experience, and that visitors over 1,500 years from now will find joy in this true relic at that time.








































