Houtrak Apartments
ARCHITECTS
Marcel Lok Architect, Workshop architecten
LEAD TEAM
Marcel Lok, Ivar Van Der Zwan
DESIGN TEAM
Jesse Stortelder, Sander Gijsen
LANDSCAPE ARCHITECTURE
Flux
OFFICE LEAD ARCHITECTS
Marcel Lok (Ml_a), Ivar Van Der Zwan (Workshop)
MANUFACTURERS
Sorba, Webo
PHOTOGRAPHS
Anna Odulinska
AREA
3339 m²
YEAR
2025
LOCATION
Amsterdam, The Netherlands
CATEGORY
Residential Architecture
Project Houtrak, designed by Marcel Lok_Architect & Workshop Architects, is located at the end of the Oostenburgervaart on the island of Oostenburg in Amsterdam.
In recent years, the former industrial estate, with the monumental Van Gendt Hallen and INIT-building, has been transformed into a dynamic urban district with a mix of residential and commercial buildings, horeca, and a hotel.
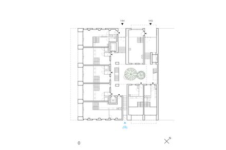
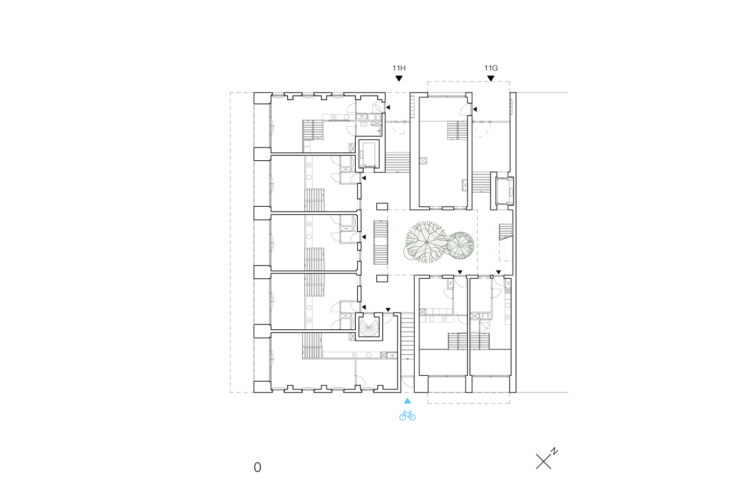
The Houtrak complex consists of two buildings – one 6-layer block with recycled Azobé wooden facades and solid wooden balconies oriented towards the water, and a 4-layer volume with shed roofs, fitted with black-brown metal facade cladding, oriented towards Isaac Titsingkade and the Rumphiusstraat.
Houtrak is built entirely prefabricated. The structure is built with a modular CD20 construction system, in which prefabricated concrete floor slabs rest on massive wooden columns.
This results in an open supporting structure that is filled with light partition walls. Installations have been kept separate from the supporting structure so that adaptability in the future is possible. The balconies of the wooden building section are also made of solid Azobé wood.
These platforms refer to the industrial character of Oostenburg. This creates a flexible structure that achieves a high construction speed and offers flexibility in layout and use for now and in the future.
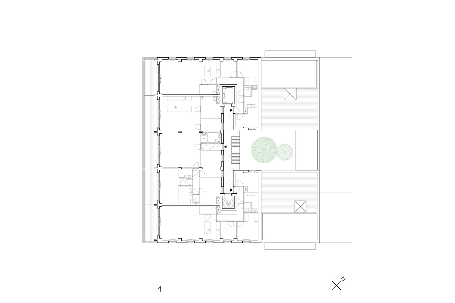
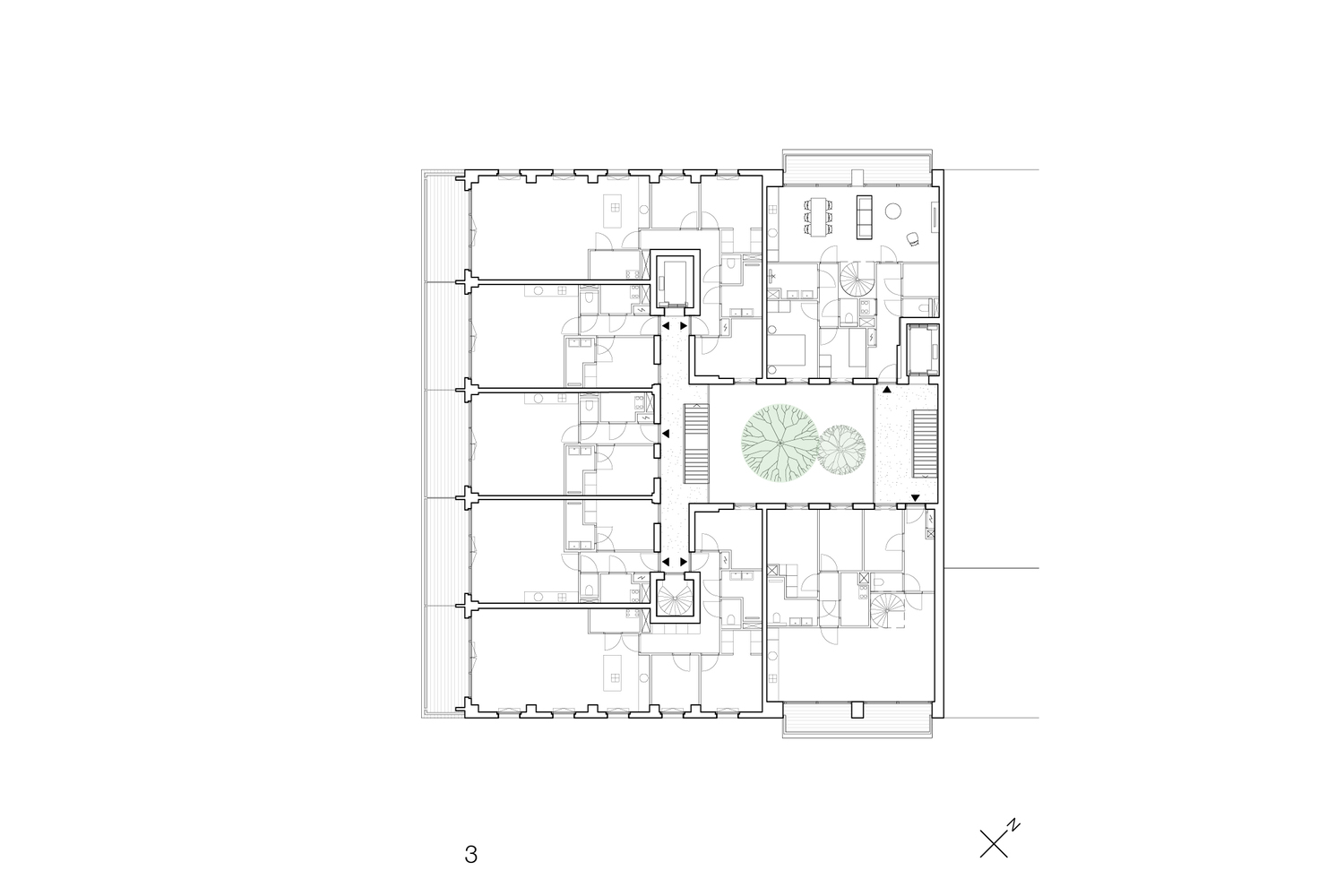
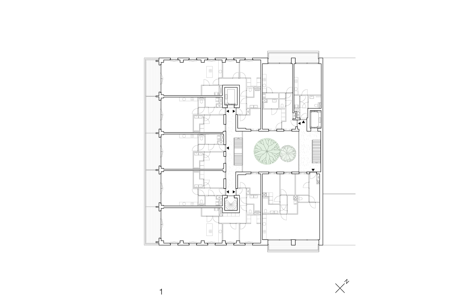
36 apartments of various sizes have been built in Houtrak, from a studio of 38m2 to a top apartment of 160m2. The aim is for each apartment to have a generous outdoor space. The balconies are all two and a half metres deep and the width of the house.
The roofs have also been designed as a roof terrace. As private roof terraces on 11G and as a collective roof terrace on 11H. A communal bicycle shed with a separate entrance has been constructed half-sunken under the complex.
Houtrak is ambitious in the field of sustainability. The apartments each have an individual heat pump with a heat source, high insulation values, and triple glazing set in wood-aluminium and wooden frames, detailed away behind the facade sections.
The wooden facade parts are sawn from reused side planks from retaining walls of a canal in the south of Holland. The metal cassettes are grey-brown powder-coated, the Azobé has a weathered patina, and also requires no maintenance.
Both buildings have an entrance on the Isaac Titsingkade and are connected by a compact light court to which all house front doors adjoin.
The ground floor is divided into two-storey split-level houses with extra high living space. The upper floors are divided into a variety of apartments, ranging from compact studios to large lofts.
The wooden building has very deep cantilevered balconies over the water, the metal building has semi-indoor balconies that are part of the facade and thus guarantee privacy to the neighbours.
A collective roof garden has been designed by Flux landscape architects on top of the wooden building.








































