The Arboreto House
ARCHITECTS
Camila Pineda Arquitectura
LEAD ARCHITECT
Camila Pineda
MANUFACTURERS
WoodArch
PHOTOGRAPHS
Marcos Zegers
AREA
220 m²
YEAR
2021
LOCATION
Puerto Varas, Chile
CATEGORY
Houses
The concept behind Casa El Arboreto arises from the desire to create an introspective space that remains connected to the surrounding nature, immersed in a forest of Arrayanes and Melíes.
The challenge was to find a harmonious balance between the lush landscape and everyday domestic spaces. This balance is achieved through the use of galleries, an architectural resource deeply rooted in Chilean tradition.
The galleries allow the diffused natural light filtering through the trees to enter the interior spaces, transforming the home into a showcase of the natural environment; a space that generates feelings of contemplation and refuge.
El Arboreto is located on the outskirts of Puerto Varas, Chile, in an area that has experienced rapid subdivision and soil densification, causing significant environmental impact.
The project's response to this scenario was to occupy the minimum possible land and leave the majority in its natural state. Thus, a balance is established between inhabiting the forest and respecting its biodiversity.
The house is organized around two large galleries that frame and contain a series of interior volumes or "boxes," which house different functions—such as the kitchen, bathrooms, office, and laundry—each with a specific purpose.
In contrast, the galleries accommodate the spaces for rest and recreation, such as the living room, dining room, barbecue area, family room, and bedrooms, establishing a duality between the functional and the recreational.
The orientation of the house is sensitive to its surroundings: the service rooms are located to the southeast, sheltered by the forest, which acts as a natural barrier against the afternoon sun.
This functional decision optimizes thermal comfort and protects the privacy of these spaces. On the other hand, the northern and western wings are reserved for the bedrooms and common areas, maximizing natural light and offering open views of the surrounding forest.
Thus, the house establishes a continuous dialogue between the interior and the landscape, inviting one to inhabit nature without significantly altering it.
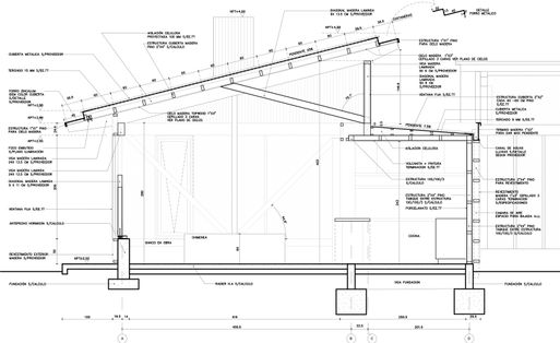
The construction system follows this same logic. The galleries are supported by the boxes with a mechanized laminated wood structure, using a repetitive system of posts, beams, and diagonals, spaced every 1.8 meters.
This design not only ensures the structural integrity of the building but also defines the quality of light in the spaces.
Indirect light enters through the upper parts of the boxes, while direct light bathes the pavilions, creating a changing atmosphere according to the time of day.
Regarding materials, the thermally treated wood cladding creates a coherent connection between the interior and exterior, while the ventilated facade enhances thermal efficiency and protects the wooden envelope of the house.
The entire structure has been treated with Cutek wood protector, ensuring its durability against local climatic conditions.
The continuous concrete flooring also functions as a thermal element, providing thermal inertia for heating.






















