Community Center Langen Bei Bregenz
ARCHITECTS
MWArchitekten
DESIGN TEAM
MWArchitekten
TECHNICAL TEAM
Robert Gentner
MANUFACTURERS
Dana, RÖFIX, Schindler
OFFICE LEAD ARCHITECTS
Lukas Peter Mähr
PHOTOGRAPHS
Dominic Kummer
AREA
800 m²
YEAR
2025
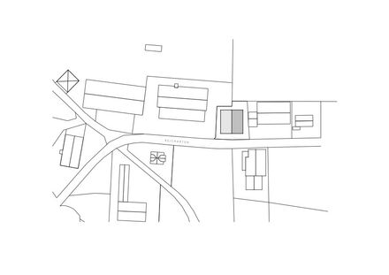
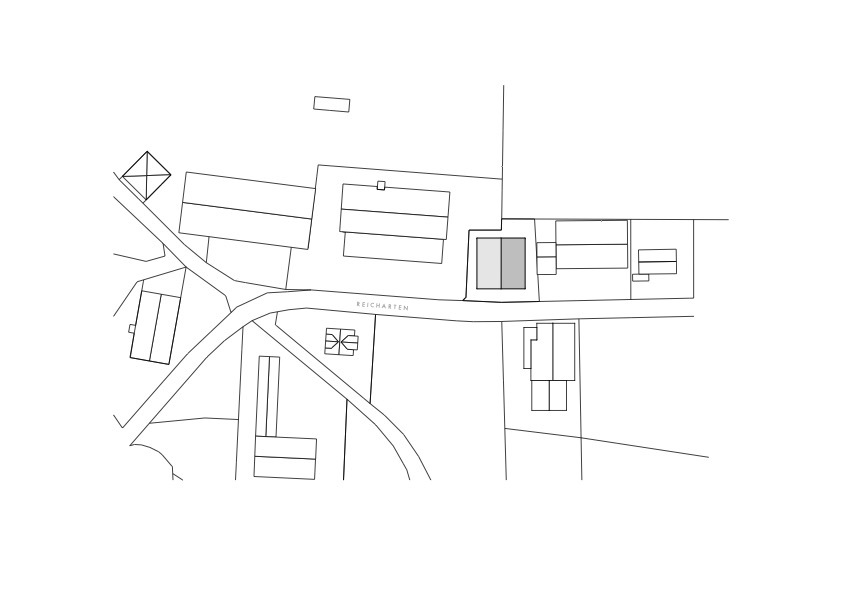
LOCATION
Langen bei Bregenz, Austria
CATEGORY
Public Architecture, Community Center
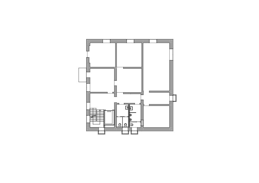
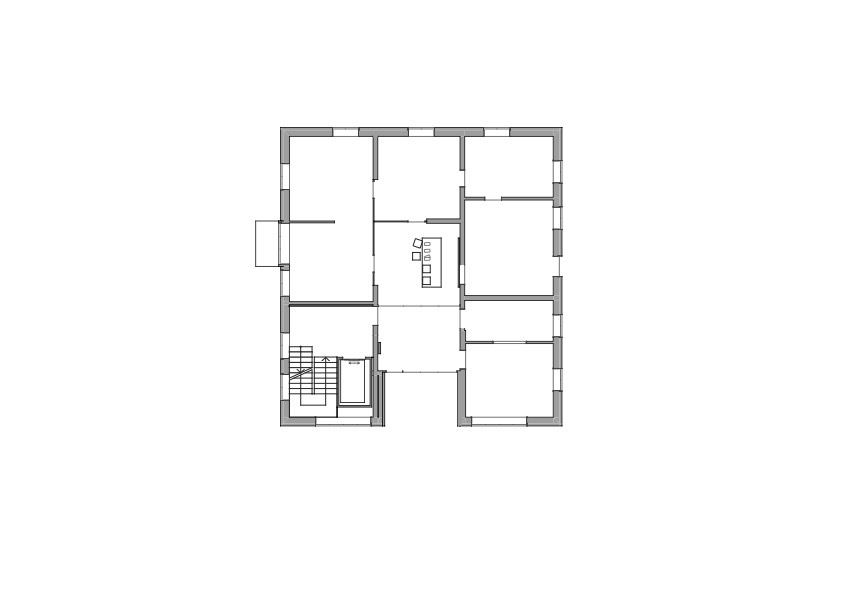
Provided that no land was built on, a restructuring of the center was developed in phases as part of a study.
Starting with the extension of the kindergarten as a conversion in the same building, the restructuring ends with the relocation of the music club to a new attic and the conversion of the community center.
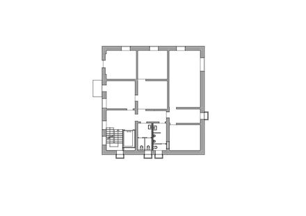
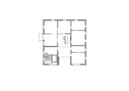
The existing roof will be extended by one storey for the extension. The span provided by the existing building is achieved using trusses. These also form the interior.
The addition of extra storeys contrasts with the refurbished façade in its abstraction.





























