
ISALAB Engineering School
ARCHITECTS
Patrick Arotcharen Architecte
LEAD TEAM
Thibaut Buisset
DESIGN TEAM
Patrick Arotcharen Architecte
STRUCTURAL
EIFFAGE Construction
MEP
INGETUDES
CIVIL
BIGOURDAN
ENVIRONMENTAL SUSTAINABILITY
SWITCH
OTHER
DOMOLANDES
ACOUSTIC
ACB ACOUSTIQUE
PHOTOGRAPHS
Mathieu Choiselat, Jean-François Tremege
MANUFACTURERS
Labastere, Alki, Fatboy, Fermob
AREA
4200 m²
YEAR
2022
LOCATION
Anglet, France
CATEGORY
Educational Architecture, Schools
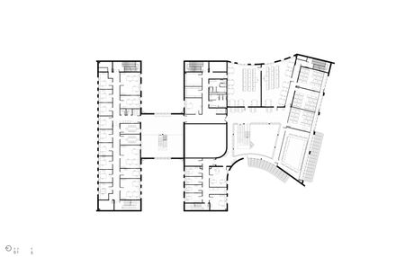
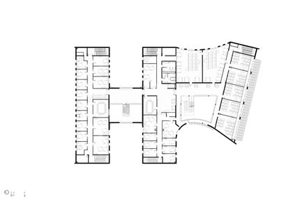
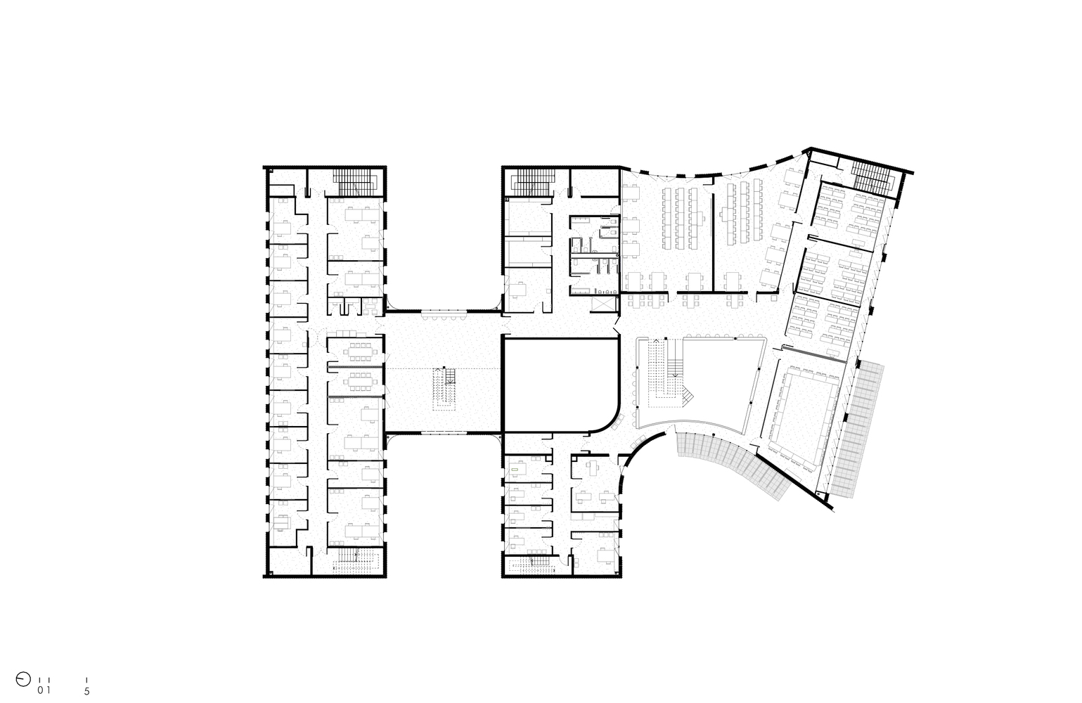
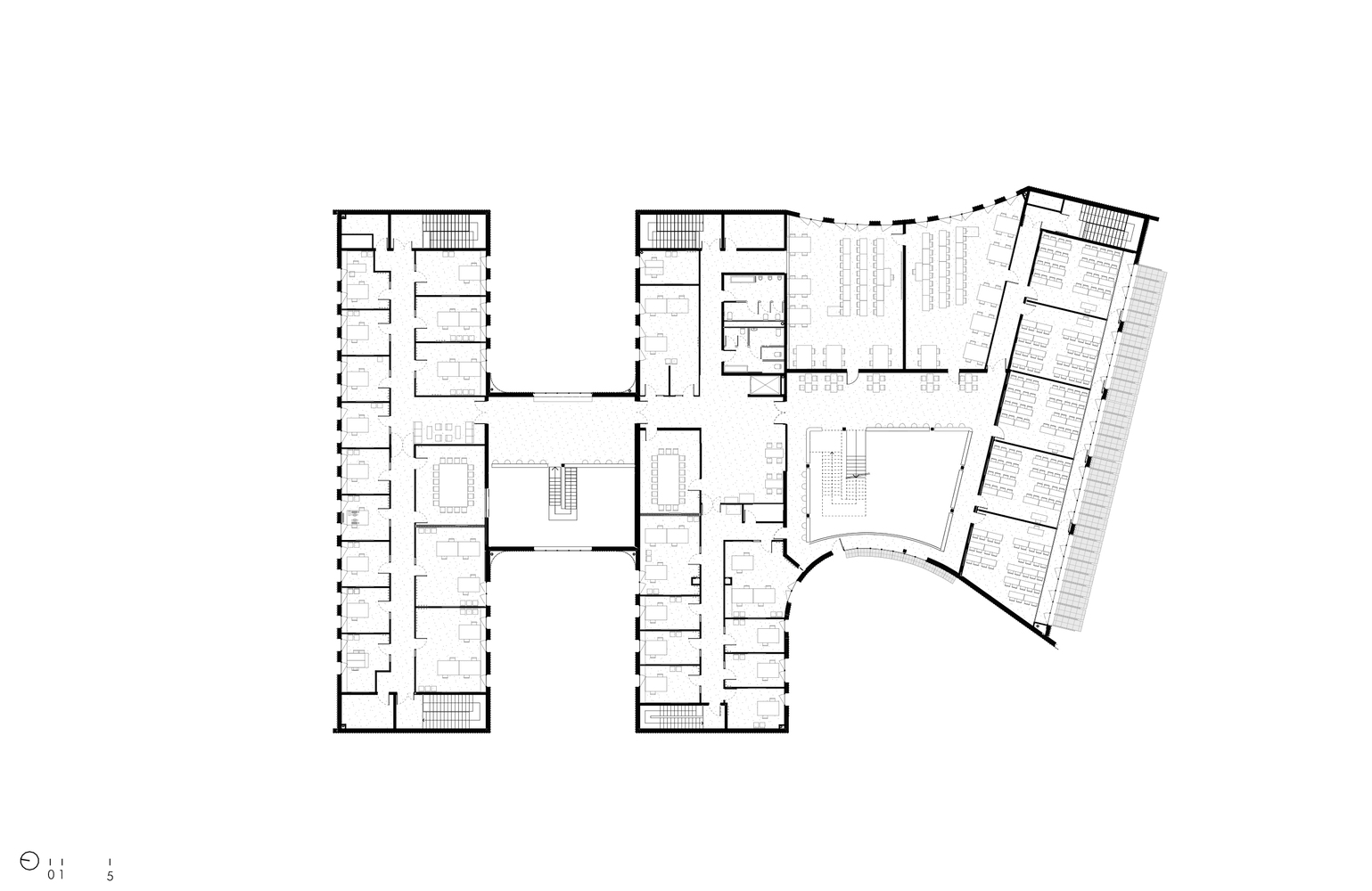
ISALAB is an engineering school focused on the construction and building sectors, in addition to the Montaury campus in Anglet, South-West France.
The school's three volumes are arranged from west to east along the eastern edge of the site, opening onto a square and garden designed as a clearing in the Montaury forest.
Sculpted by paths and planting introduced into the patio areas, the building weaves subtle links with nature and its immediate surroundings.
Echoing the patios, the internal space is structured around generous atriums built for circulation, exchange, and conviviality.
The passive construction combines the thermal inertia of concrete with external insulation.
On all facades, the building combines natural light with solar shading, taking this theme as the guiding principle in the design of its surfaces exposed to the sun.
Intended for training focused on construction in concrete, the building displays the material in its unfinished state throughout the internal spaces.
The structure is the constant element within the building, onto which are grafted all those that need to be moved, dismantled, and reassembled according to operational requirements and changes in use, such as partitions, sound absorbers, insulation, solar shading, and services.
This distinction, along with the raw expression of the structure and grafted elements, is the primary hallmark of the building.
This approach showcases the assembly process and demonstrates, for both visitors and users, the work of the different building trades, right down to the guts of the services.
It enables all those involved in the act of construction to display their work, and provides an introduction to building trades for the students.





















