INTERIOR DESIGNERS
Broissin
LEAD ARCHITECT
Mauricio Cristóbal
PHOTOGRAPHS
Alexandre D La Roche
AREA
923 m²
YEAR
2025
LOCATION
Ciudad de México, Mexico
CATEGORY
Houses
Located on a steeply sloped site in the Lomas de Vista Hermosa neighborhood of Mexico City, Casa Tlapexco is a residential project that emerges from a deep dialogue with the natural topography.
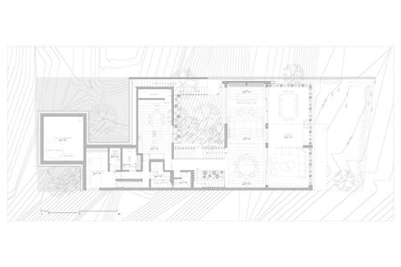
Built on a 678.85 m² plot, the architectural strategy embraces the site's downward gradient through a stepped volumetry that anchors the structure into the terrain, offering a fluid spatial descent across five levels—two above and three below street level.
From the street, the house reveals itself gradually. The architectural journey begins at the uppermost level, where the entrance and parking are located, and descends through a series of interconnected volumes, each framing unique visual and spatial relationships with the surrounding landscape.
The progression through the home reflects a continuous unfolding of space,light, and program.
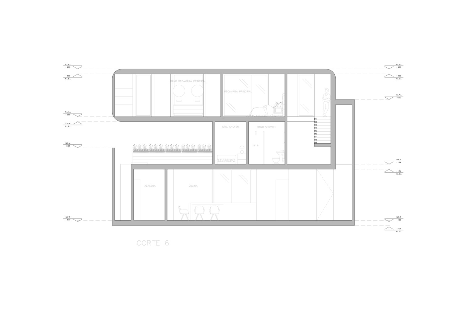
On the ground floor (324.63 m², 2.60 m ceiling height), visitors are welcomed through a formal entrance leading to a foyer, family room, and two secondary bedrooms—each with walk-in closets and en-suite bathrooms.
A key feature is the bakery room, designed with independent street access, allowing for public interaction without compromising residential privacy.
A terrace and internal staircase visually and functionally connect to the lower levels.
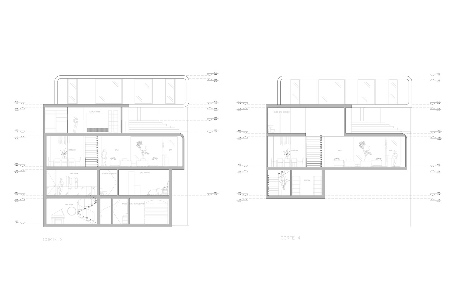
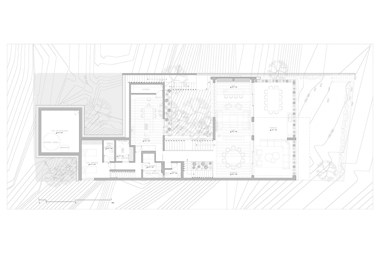
The first basement (258.45 m², 3.04 m ceiling height) serves as the home’s social core, housing the kitchen, dining and living areas, bar, pantry, laundry facilities, service quarters, and a generous terrace.
Full-height glazing integrates interior spaces with the garden, enhancing natural light and expanding the perception of space.
In basement two (163.34 m², 2.60 m ceiling height), a secluded guest suite with a balcony overlooks the lower garden.
This level, located 7.91 meters below the street, provides a sense of retreat and privacy reinforced by the site’s natural grade.
The lowest level (82.22 m²) features the sax room—a double-height leisure space equipped with a bar, lounge, and two half-baths.
This area opens directly onto a 146.21 m² landscaped garden, forming a tranquil sanctuary that blurs the line between architecture and nature.
In total, Casa Tlapexco integrates 447.64 m² of green areas distributed across its lower levels.
These landscaped spaces, in conjunction with terraces and balconies, contribute to the home’s biophilic character and visual richness.
Materially, the project is characterized by a refined and restrained palette:
chukum plaster, natural wood, and black aluminum framing come together to define a contemporary and serene atmosphere.
The interiors prioritize comfort, natural illumination, and spatial continuity, resulting in a warm, elegant residence deeply attuned to both its urban setting and its natural surroundings.



































