ARCHITECTS
BAROZZI VEIGA
LEAD ARCHITECTS
Barozzi Veiga, Fabrizio Barozzi, Alberto Veiga
STRUCTURAL ENGINEER
Sileghem & Partners Architecten en Ingenieurs
TAB ARCHITECTS
Tom Debaere, Bert Bultereys
BUILDING PHYSICS
Daidalos Peutz bouwfysisch ingenieursbureau bvba
SERVICES ENGINEERS
Studiebureau Boydens Engineering
ACOUSTIC CONSULTANTS
Daidalos Peutz bouwfysisch ingenieursbureau bvba
COMPETITION TEAM
Yorgos Apostolopoulos, Jonghyun Choi, Pieter Janssens, Alessandro, Lussignoli, Tea Marta, Toni Poch, Eva De Bels, Lando De Keyzer, Jonathan Toye, Ilja De Pelsmaeker
PROJECT TEAM
Pieter Janssens; Chen-Hsin Chang, Tomás Mesquita, Ivanna Sanjuán, Guillermo Sidrach, Antonis Tasoulis, Maria Ubach, Jonathan Toye, Bert Lescouhier, Bert Devos, Pieter Frantzen, Ilja De Pelsmaeker, Lotte Engelborghs, Maxime Honoré, Luisa Soares
HERITAGE ARCHITECT
Koplamp Architecten
FAÇADE CONSULTANT
Xmade
CLIENT
Stad Kortrijk
PHOTOGRAPHS
Simone Marcolin
AREA
4037 m²
YEAR
2025
LOCATION
Kortrijk, Belgium
CATEGORY
Cultural Center, Arts & Architecture
English description provided by the architects.
The project for Abby Kortrijk extends and transforms the historically significant complex of Groeninge Abbey into an arts space for site-specific temporary exhibitions and public events.
Abby Kortrijk is a new kind of museum: a place for everyone, open and versatile, an urban living space in the wonderful setting of Begijnhof Park in the centre of Kortrijk.
The design focused on a broad interpretation of the theme of identity, where concepts like persistence, restoration and transformation have been carefully balanced to rediscover a new identity for the ensemble, deeply rooted in the existing.
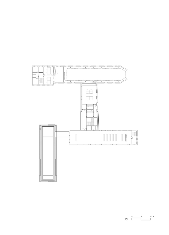
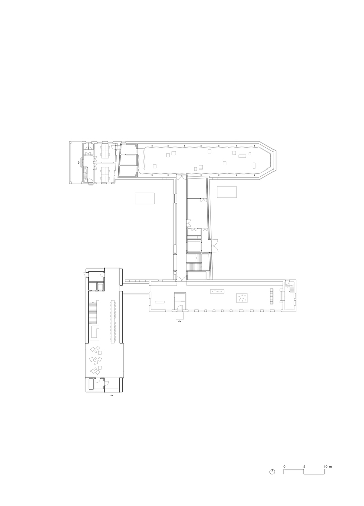
The proposal reveals the beautiful spatiality of the original structure of the abbey chapel and dormitories, restores the former courtyard and adds a state-of-the-art subterranean exhibition space.
Each of these 'rooms' has a different atmosphere, creating space for art and shared activities in their own specific ways.
While the exhibition area is located below the complex, the distinctive presence of the new park pavilion establishes a dialogue with the historic structures, both through its form, which evokes the verticality of their sloping roofs, and through the logic of its orthogonal arrangement.
The new building comes as a clearly recognizable element in dialogue with the existing architecture; one more pavilion that continues the history of the urban composition.
Its facades, covered in dark-coloured brick, give it the character of an independent element within the historical complex.
The new architecture is restrained and reasoned, defined by subtle and well-considered interventions that create a balance between the new and the existing, enhancing the history of the site and providing new spaces for the future.
DESCRIPTION OF THE INTERVENTION
From an urban design perspective, the project removes elements that were not part of the original abbey layout and introduce a new pavilion, positioned orthogonally to the existing composition and peeking out towards the Begijnhof Park.
This intervention redefines the original cloister and creates a passage from the Groeningestraat to the public garden.
The pavilion, connected to the complex through the former dormitory building, houses a bar and restaurant. Its inclined facades create a welcoming, sheltered atmosphere while maximizing space inside.
Here a long table can be arranged, referencing the communal refectory of an abbey.
Minimal interventions were made to the former dormitory building, restoring the original windows, ceiling, and red terracotta floor.
A long display case was added to showcase works from the city of Kortrijk, inviting artists to engage with the collection.
The abbey serves as an art house, where visitors experience art throughout its rooms. From the dormitory to the pavilion, one can enjoy the exhibits without needing a ticket. Above the dormitory is the parlour, adjacent to the former chapel.
The former chapel is one of the oldest elements in the composition.
By removing the existing attached corridors and mezzanines, the project reinstates the abbey's original grandeur; without intermediate floors, the sixteenth-century building regains its original atmosphere and provides a new vertical space for exhibitions.
To avoid overburdening the park and to give the existing building breathing space around, the project includes an underground expansion for exhibition areas.
These neutral, state-of-the-art museum-quality rooms, providing a flexible canvas for exhibitions.
The chapel, dormitory, and pavilion buildings bring historical richness to the project, whereas the 'white boxes' below offer a neutral space that complements this historic context.
The sequence of spaces, diverse yet cohesive, is functional with an internal logic.
The original facades were restored respecting their original drawing. As for the new element, the pavilion's facade features custom-made bricks—made of recycled construction components—that conform a monumental and expressive structure, reinforcing its presence in the urban fabric.





























