ARCHITECTS
MACh Arquitetos
ARCHITECTS IN CHARGE
Fernando Maculan, Rafael Yanni
COLLABORATION
Giovanna Camisassa, Natália Castro, Ricardo Lobato
LANDSCAPE DESIGN
Felipe Fontes
CONSTRUCTION
AG Planejamento e Obras
FAÇADE AND WINDOW FRAMES
Carpintaria Reis
STRUCTURAL WOOD
Engenhas - Engenharia Estrutural
PHOTOGRAPHS
Leonardo Finotti
YEAR
2023
LOCATION
Praia do Forte, Brazil
CATEGORY
Houses
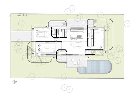
Miners enjoy the beach and beach houses. Casa Inaê was built on Praia do Forte, Salvador, for a mining family of three siblings, six nephews, a matriarch, and many friends.
The first floor, more social, features an open layout to the backyard, pool, and forest, with fenced patios housing private gardens.
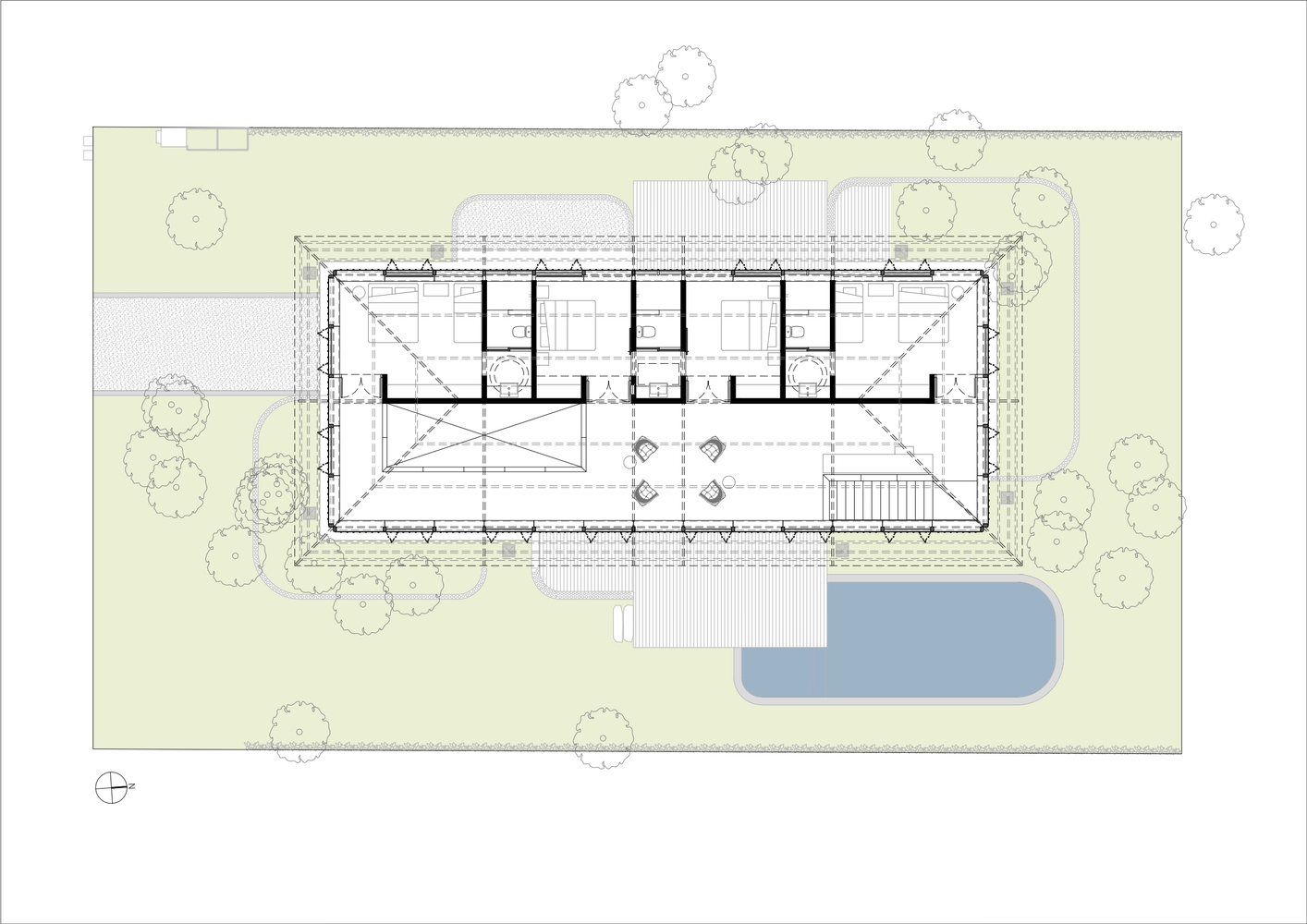
This tropical modernist-inspired layout supports a concrete tray that holds the structure and roof of the second floor.
The wooden facade is a construction and ornamental system made up of joint covers, inspired by Pataxó, caiçara, but also southern, with dispersed origins.




































