ARCHITECTS
Steven Holl Architects
RADIANT HEAT
Natural Energy Solutions
PROJECT ARCHITECT
Yining He
PARTNER IN CHARGE
Dimitra Tsachrelia
DESIGN ARCHITECT, PRINCIPAL
Steven Holl
GEOTHERMAL HEATING AND COOLING
Natural Energy Solutions
GEOTHERMAL
Natural Energy Solutions
STRUCTURAL ADVISOR
Tylin | Silman Structural Solutions, Justin Den Herder
CONTRACTOR
Peak Construction, Brian Pisanelli, Herman Gratz
PROJECT TEAM
Sarah Hopper, Emmet Sutton, Michael Haddy, Nour Chahboun, Maxwell Funk
SUSTAINABILITY
500- Foot Deep Geothermal Well For Efficient Heating/cooling Exceeds Energy Code Requirements By 13.7% High-performance Insulated Glass Windows With Low E-3 Coating, Double- Pane Igu, And Superior Thermal Efficiency
RENEWABLE ENERGY
Natural Energy Solutions
PHOTOGRAPHS
Steven Holl Architects
AREA
165 m²
YEAR
2024
LOCATION
Hudson, United States
CATEGORY
Houses, Sustainability
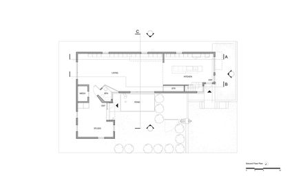
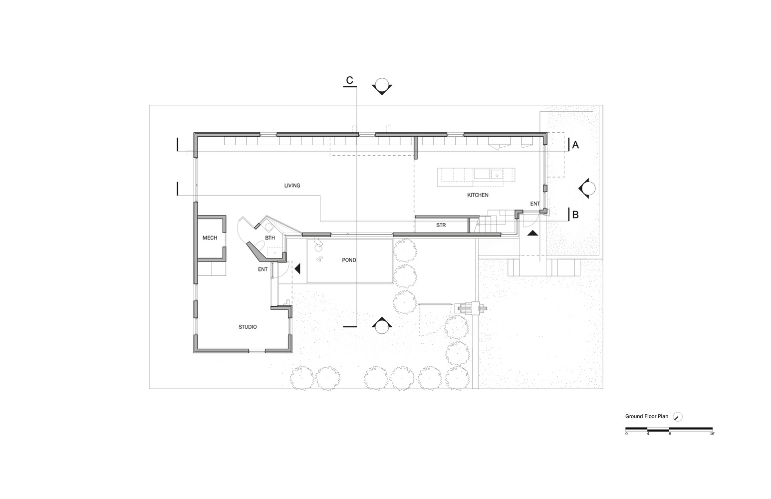
A simple 'L' in custom corrugated aluminum forms a south-facing green courtyard. The 1,700- square-foot house, proposed on a vacant lot, completes the fine urban fabric of Hudson, New York. Designed for renowned modern furniture gallerists Mark McDonald and Dwayne Resnick, it serves as both a live-work space and a midcentury collector's paradise.
McDonald, often referred to as the "godfather" of midcentury modern design, was instrumental in reviving interest in furniture by Marcel Breuer, Alvar Aalto, and Charles and Ray Eames. This house accommodates select pieces from the owner's twentieth- century design collection, including a rare 1910 Frank Lloyd Wright fixture and furniture by Rudolph Schindler.
The building's skin is a "finger- width" corrugated aluminum with a powder-coated finish. Cost-effective and maintenance-free, it interacts dynamically with sunlight, creating an everchanging play of shadows. The inner surfaces of the 'L' are soft cerulean-green, while the outer façades are white, and the underside of the projecting canopies is painted a muted blue— an homage to the Southern tradition of "Haint Blue," believed to ward off spirits.
The 'L' form creates a west-facing garden, integrating living and working spaces at its two ends. A catwalk leads to a pop-up sky monitor, introducing additional light, while offering access to a flat roof with views of the Catskills—a nod to the Luminist painters of the Hudson River School.
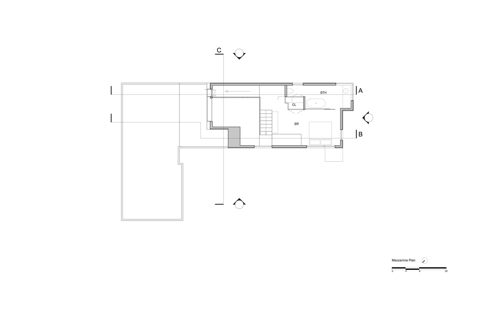
The all-wood interior receives natural light from all orientations, with carefully framed perspectives, including a south-facing sleeping area that offers a composition of joined picture windows overlooking the historic Terry Gillette Mansion. Birch plywood lines the open-plan interior, acting as a neutral backdrop for McDonald and Resnick's curated furniture collection.
Subtle, playful elements are integrated into the design. A powder room, located at the inner angle of the 'L,' is rotated 45 degrees—acting as a hinge between the public and private zones of the house. The door's right-angled placement and a corner-wrapping window reinforce the geometric theme, while a frosted glass panel, suspended from the ceiling connects this space to an exterior window, enhancing openness and layered light.
Additionally, a custom-designed brass "Hudson L" light fixture, featuring a folded body and diffused LED lighting, reflects the architectural form of the home. A sculptural fountain, composed of two folded brass "L" shapes, circulates rainwater in the courtyard pond, reinforcing the presence of natural elements.
The house features a state-of-the-art geothermal heating and cooling system, drastically reducing energy consumption. A rain-collecting pool further strengthens its connection to natural water cycles.
The house remains intimate yet dynamic—a place where furniture, architecture, and landscape harmonize in a continuous dialogue between past and present, art and nature.









































