Naboa Tulum Hotel
ARCHITECTS
Jaque Studio
TEAM LEAD
César Pérez
ARCHITECT IN CHARGE
Jésus Acosta
LANDSCAPE ARCHITECTURE
Hugo Sanchez Paisaje
GENERAL CONSTRUCTION
Jaque Studio
INTERIOR DESIGN
Studio Wenden
PHOTOGRAPHS
César Béjar
AREA
1454 m²
YEAR
2025
LOCATION
Tulum, Mexico
CATEGORY
Hotels
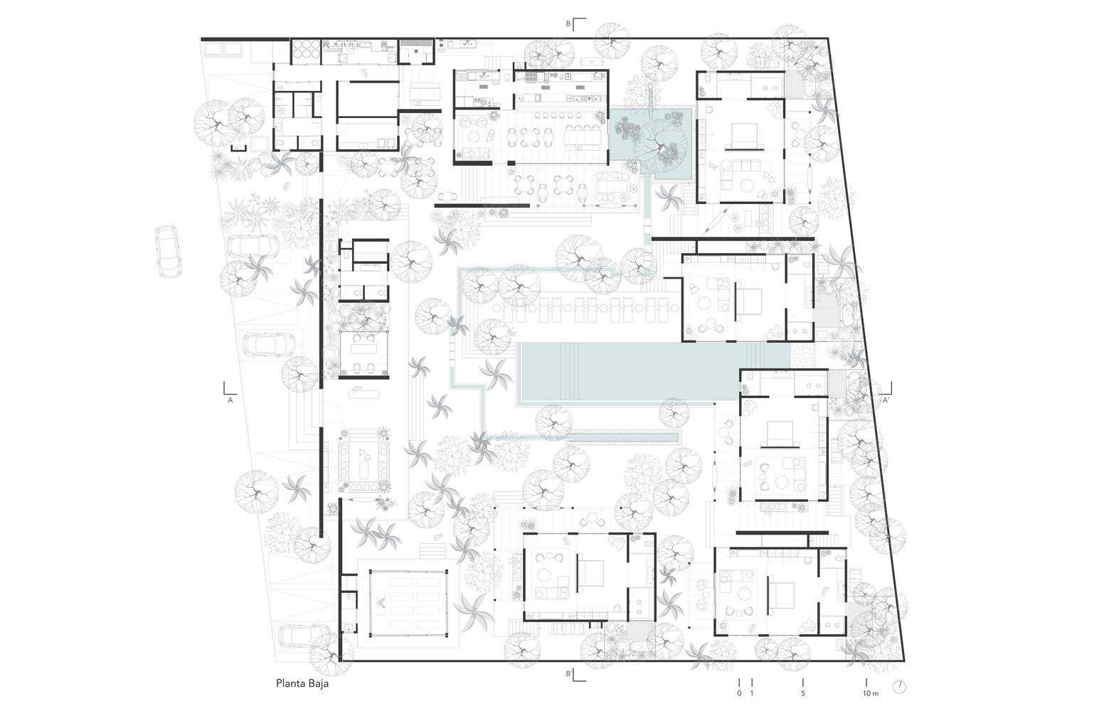
Located in Tulum, on a square plot of 2,500 m², Naboa is founded on the premise of creating a project where architecture and landscape converge in an atmosphere of relaxation and comfort.
This intention materializes through pure and orderly geometries that contrast with the preexisting vegetation, which is disordered and random in nature.
The volumes are arranged around the swimming pool and the tropical garden, which act as the guiding axis of the project.
This arrangement gives the complex an introspective character, creating a microclimate that favors privacy and generates ideal conditions for the development of a unique identity.
The hotel features 10 rooms distributed in two distinct typologies. The ground floor units present a horizontal spatial composition that promotes a direct connection with the surroundings, thanks to their terraces and outdoor bathrooms.
The upper floor rooms offer a vertical layout and incorporate a social space with double height and two bedrooms with full bathrooms, resolved through a mezzanine. This results in spacious, well-ventilated areas suitable for the warm climate of Tulum.
The architecture appears solid and closed when seeking privacy and introspection, and opens with transparency when aiming to create visual links with the landscape and the pool area, especially in social spaces.
The reception is conceived as a linear pavilion with a concrete and chukum base, topped by a lightweight wooden roof that seems to float among the vegetation.
This is made possible by slender columns that blend in with the surrounding trees. The restaurant is configured as a double-height space with an open kitchen, oriented towards a wide terrace elevated one meter above the natural ground level.
Finally, the limestone walls function as elements of order, marking the boundaries and transitions between spaces.
The finishes employed adhere to a palette of natural materials and tones, such as wood, limestone, travertine marble, and chukum.
The composition of the spaces is governed by principles of passive design and echoes the vernacular architecture of the region.
At Naboa, the pursuit of simple solutions, atmospheres that invite a slower pace, and details that stimulate interaction with the senses are prioritized.
































