ARCHITECTS
Dba. Arquitectura
LEAD ARCHITECT
Alexandra Belo, Vitor Mingacho
INTERIOR DESIGN
Matilde Dias
MANUFACTURERS
Canhamor, Multiplacas, Sanitana
AREA
150 m²
YEAR
2025
LOCATION
Orca, Portugal
CATEGORY
Houses
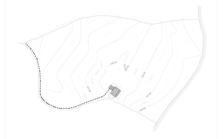
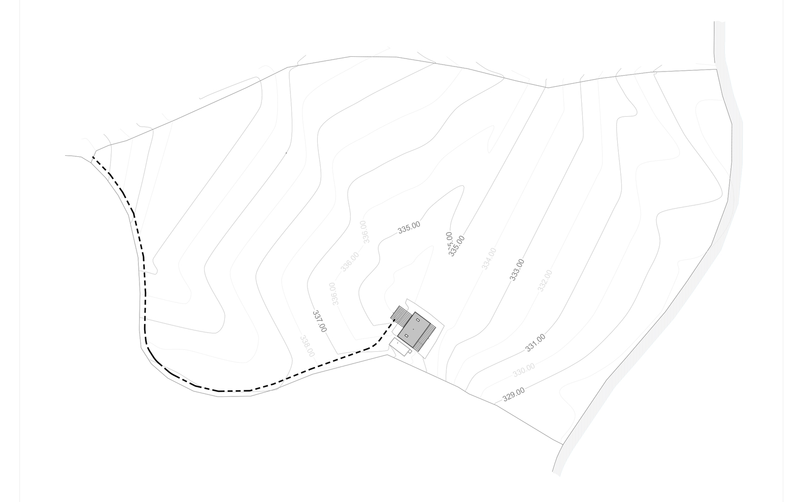
Set within a small rural property characterized by a remarkable landscape, this project focused on the rehabilitation and expansion of an existing exposed granite dwelling.
Originally conceived as a residence, the building was carefully reimagined to preserve its architectural identity while introducing a contemporary spatial and material language.
The site unfolds along a gentle slope that descends from the house's platform toward a natural watercourse, surrounded by lush vegetation.
The house is oriented along two main façades—Northwest and Southeast—with the latter offering unobstructed views over the stream and its green margins.
The intervention embraced a respectful dialogue with the existing structure.
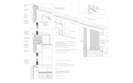
The original granite masonry walls were preserved, and a new upper volume was added.
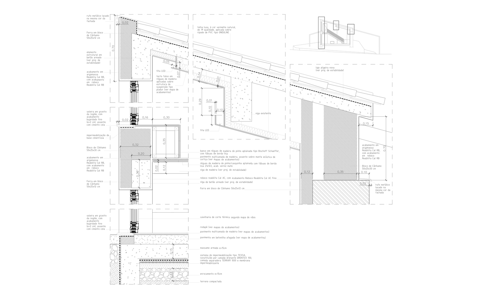
The traditional gabled roof was replaced by a single-pitch roof, optimizing the interior ceiling height and allowing for a clearer formal reading of the intervention.
A restrained material palette defines the extension, where white is used extensively on walls, pergolas, and window frames.
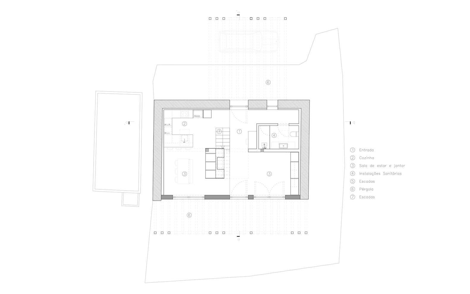
Pergolas on both main façades serve functional and spatial purposes—providing a carport to the Northwest and shading an outdoor living area to the Southeast.
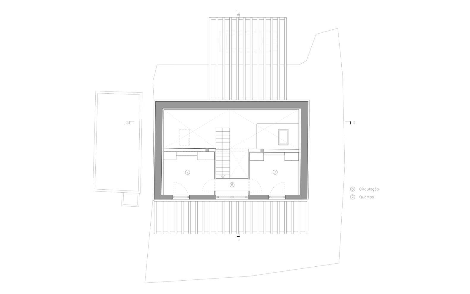
Internally, wood plays a central role in establishing a warm and tactile atmosphere.
Different species and finishes were chosen according to use: pine clads the interior walls, three-layer softwood panels were used for custom furniture and the staircase, and oak was selected for the upper floor’s flooring.
The spatial organization emphasizes clarity and fluidity. From the Northwest entrance, a circulation axis connects directly to the Southeast terrace and outdoor dining area, while a double-height stair volume anchors the center of the house.
The open-plan ground floor integrates kitchen, dining, living, and work areas, with a wood-burning stove strategically placed to serve the main social space.
Sustainability was a guiding principle throughout the design and construction process.
The extension was built using hempcrete blocks, coated with hydraulic lime plaster—a biobased, low-impact solution offering excellent thermal and acoustic performance, fire resistance, and long-term durability.
This project proposes a new chapter for the house, where vernacular heritage and contemporary architecture coexist in a balanced and coherent dialogue.

































