The House Of Parallel Walls
ARCHITECTS
Pvdrs
LEAD ARCHITECT
Keyur Vadodaria and Megha Patel-Vadodaria
DESIGN TEAM
Hiti Majumdar, Nirali Shah
LEAD TEAM
Keyur Vadodaria, Megha Patelvadodaria
ENGINEERING & CONSULTING > MEP
S P Engineering
ENGINEERING & CONSULTING > STRUCTURAL
Pcube
MANUFACTURERS
Dtale Modern, Jaipur Rugs, Kohler, OBEETEE CARPETS, RUGBERRY CARPETS, Studioworks, Tectona Grandis, Toto
LANDSCAPE ARCHITECTURE
Omkar Sethe
PHOTOGRAPHS
Umang Shah
YEAR
2025
LOCATION
Ahmedabad, India
CATEGORY
Residential Architecture
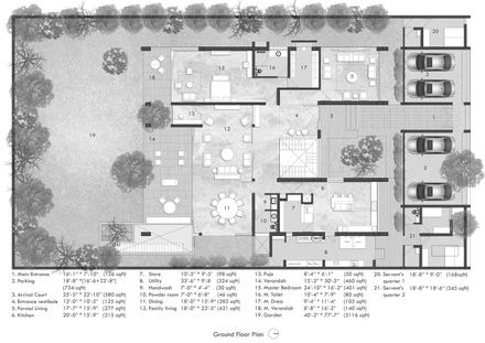
The House of Parallel Walls is a home that celebrates the essence of a joint family in a living space that becomes the heart of the house.
Conceived as a double-height space, the living room is a microcosm around which the various private and public spaces are organized.
The boundaries between the circulation spine, the living room, and the verandah are blurred, generating a fluid interior.
The form of the house is characterized by thick, solid parallel walls running along the north-south, thereby shielding the internal spaces from the harsh east and west sun.
Effectively, the house opens liberally toward the north and the south through verandas and sliding folding screens that help modulate the flow of natural air, direct sunlight, and visual privacy.
The garden is located at the rear end of the plot rather than in the front, which is typically the case, thereby giving a private space for outdoor living and simultaneously taking advantage of the south-westerly winds.
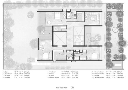
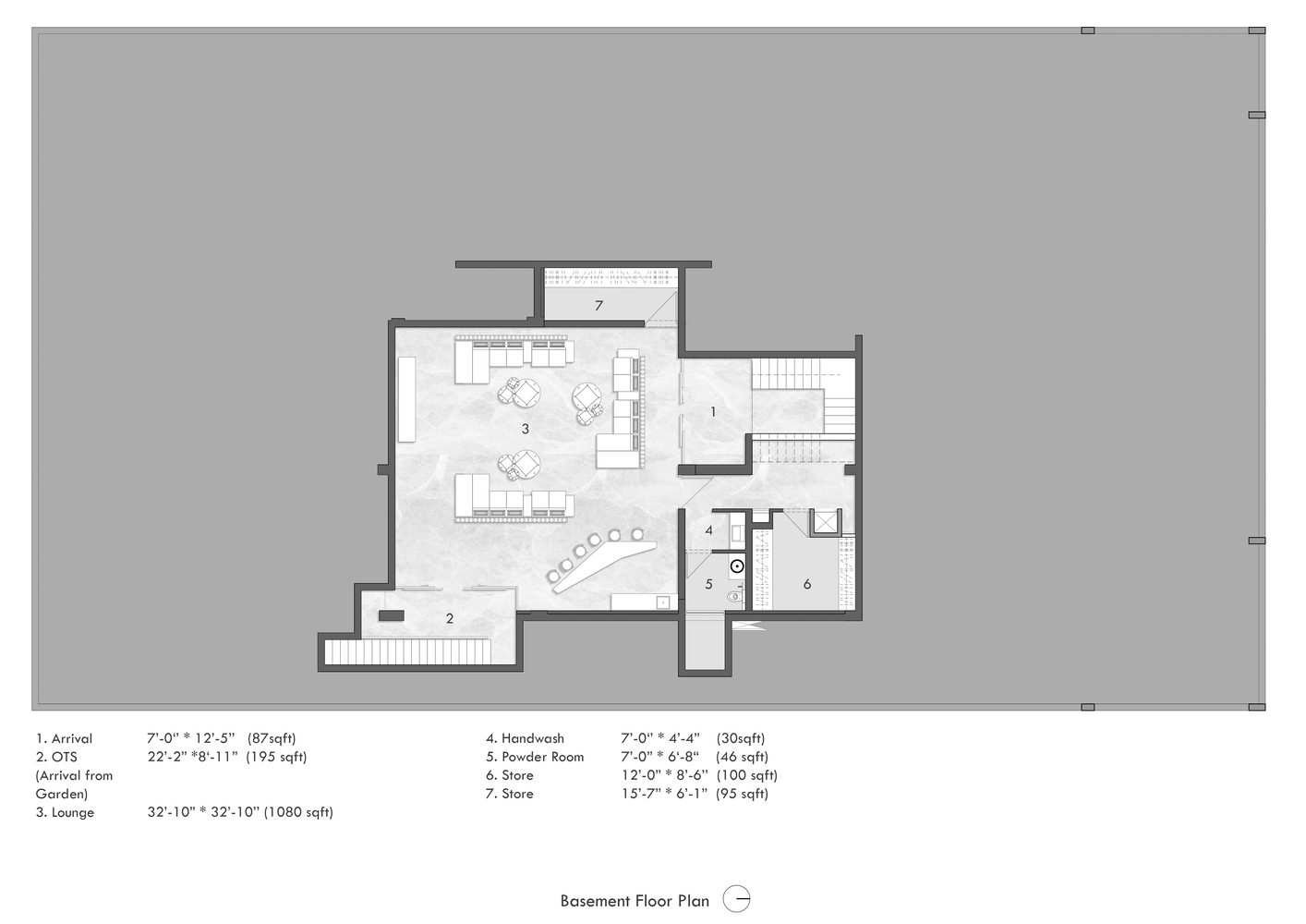
The verandah is conceived as an outdoor living room connecting to the master bedroom as well as the basement lounge.
The passage from the main road, animated through the ever-changing shadow patterns, and the arrival court, conceived as an oasis in itself, are both reminiscent of the khadkis (entrance gate before an arrival court) and chowks (arrival courtyard) of the vernacular houses of the old city of Ahmedabad.
The entrance vestibule is conceived as a double-height space containing a feature stair that is bathed in natural light.
The overlooking bridge forms a visual connection between the entrance vestibule and the double-height living room.
Together, the entrance vestibule, the bridge, and the double-height living room form the core of the house, with bedrooms occupying the four corners around the core.
The material palette comprises a combination of grey plastered and exposed concrete walls, complemented with wooden ceilings and paneling, and grey Italian marble.
Door and windows are made of teak wood, further enhancing the warmth within the interior spaces.






























