Juzen Chemical Corporation Head Offic
ARCHITECTS
Key Operation Inc. / Architects
LEAD ARCHITECT
Akira Koyama
ENGINEERING & CONSULTING > LIGHTING
Lightlinks
MANUFACTURERS
Cinqvit, Daikin, Sawada Chemical, TOSHIBA, Tostem
ENGINEERING & CONSULTING > STRUCTURAL
Delta Structural Design Studio
ENGINEERING & CONSULTING > SERVICES
Comodo Facility Planning
DESIGN TEAM
Park Corporation
PHOTOGRAPHS
Shigeo Ogawa
AREA
1885 m²
YEAR
2023
LOCATION
Toyama, Japan
CATEGORY
Office Buildings
Juzen Chemical Corporation, founded in 1950 in Toyama City, is a contract manufacturer of active pharmaceutical ingredients.
Situated between the Jintsu River and the Fugan Canal within an industrial park, the company decided to consolidate its dispersed offices, meeting rooms, and cafeteria into a new headquarters.
The new building not only addresses operational efficiency but also reflects Toyama's natural environment and cultural heritage, while offering a workplace that enhances employee well-being and connects with the surrounding community.
The design was informed by a series of employee workshops involving diverse staff across departments and generations.
These discussions highlighted the company's deeply rooted culture of valuing spontaneous communication as well as the need for spaces to concentrate individually.
The resulting concept provides an environment that supports a seamless switch between solo work, collaboration, and refreshment.
Inspiration was also drawn from the Tateyama mountain range and from the historic Kitamae trading boats that once transported medicinal ingredients from Toyama to the wider region.
The site presented both challenges and opportunities. A private residence and a small park occupy two corners of the block.
To avoid overshadowing the neighboring home and to maintain morning sunlight, the southern façade was designed as a flat plane.
This decision produced an L-shaped volume that embraces the adjacent park, transforming it into part of the workplace experience.
At the same time, the site lies within the Jintsu River floodplain, requiring that principal office functions be elevated above ground level for flood resilience.
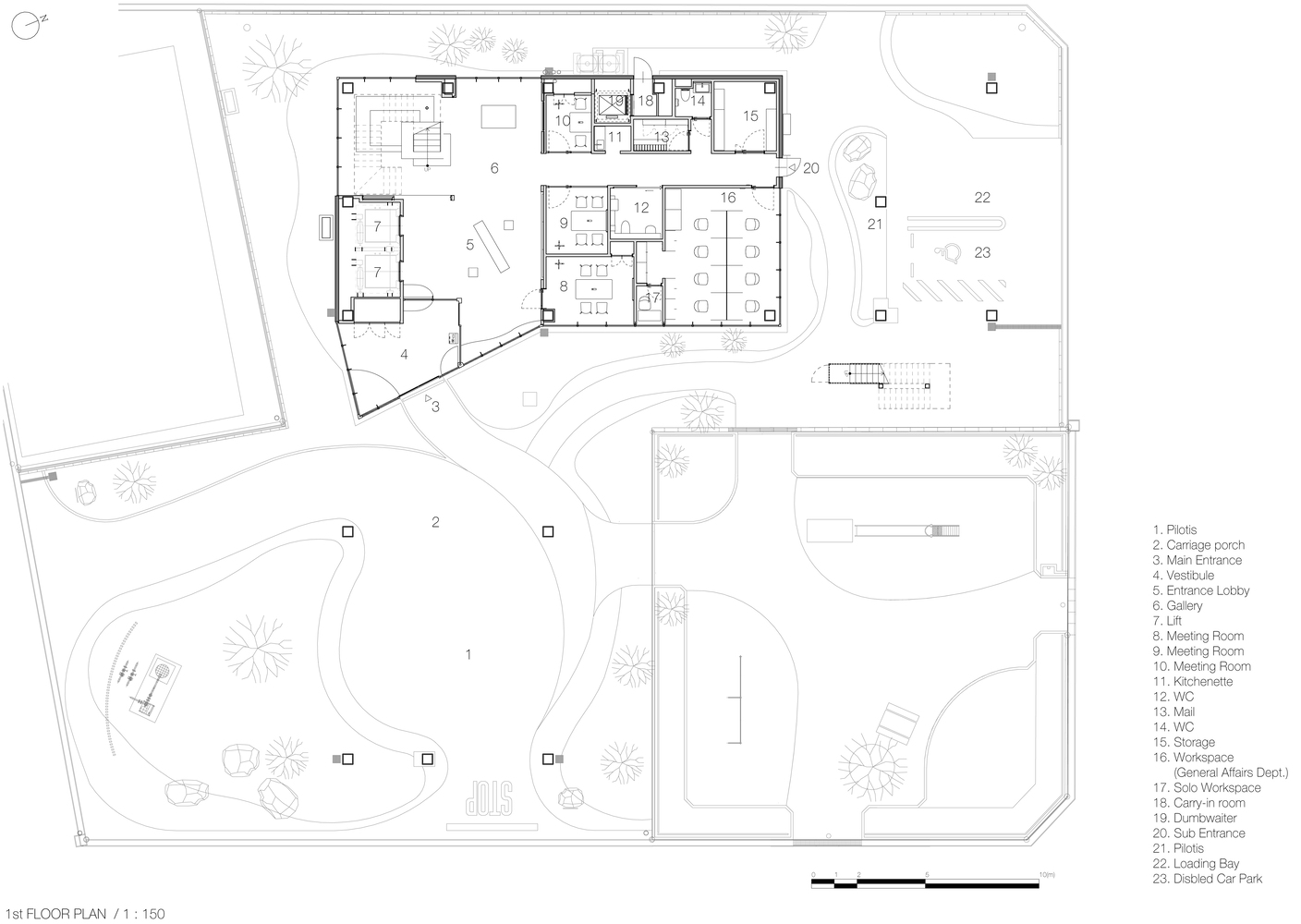
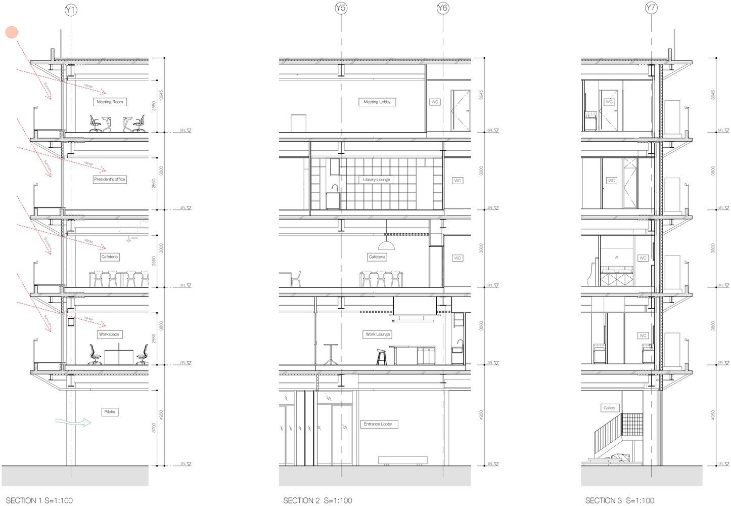
The ground floor is left open as a piloti, accommodating reception, a gallery introducing the company's activities, and breezeway access for cars.
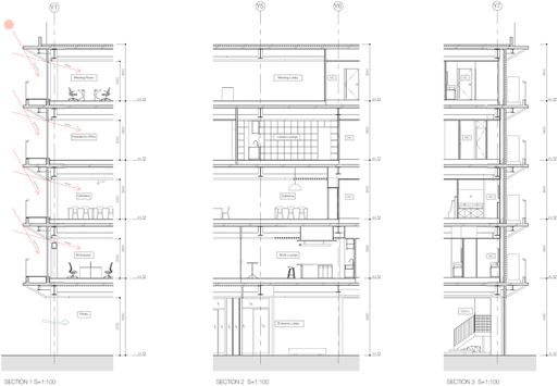
Office suites for major departments and a work lounge are located on the second floor, while the third floor hosts a cafeteria shared by office and factory staff.
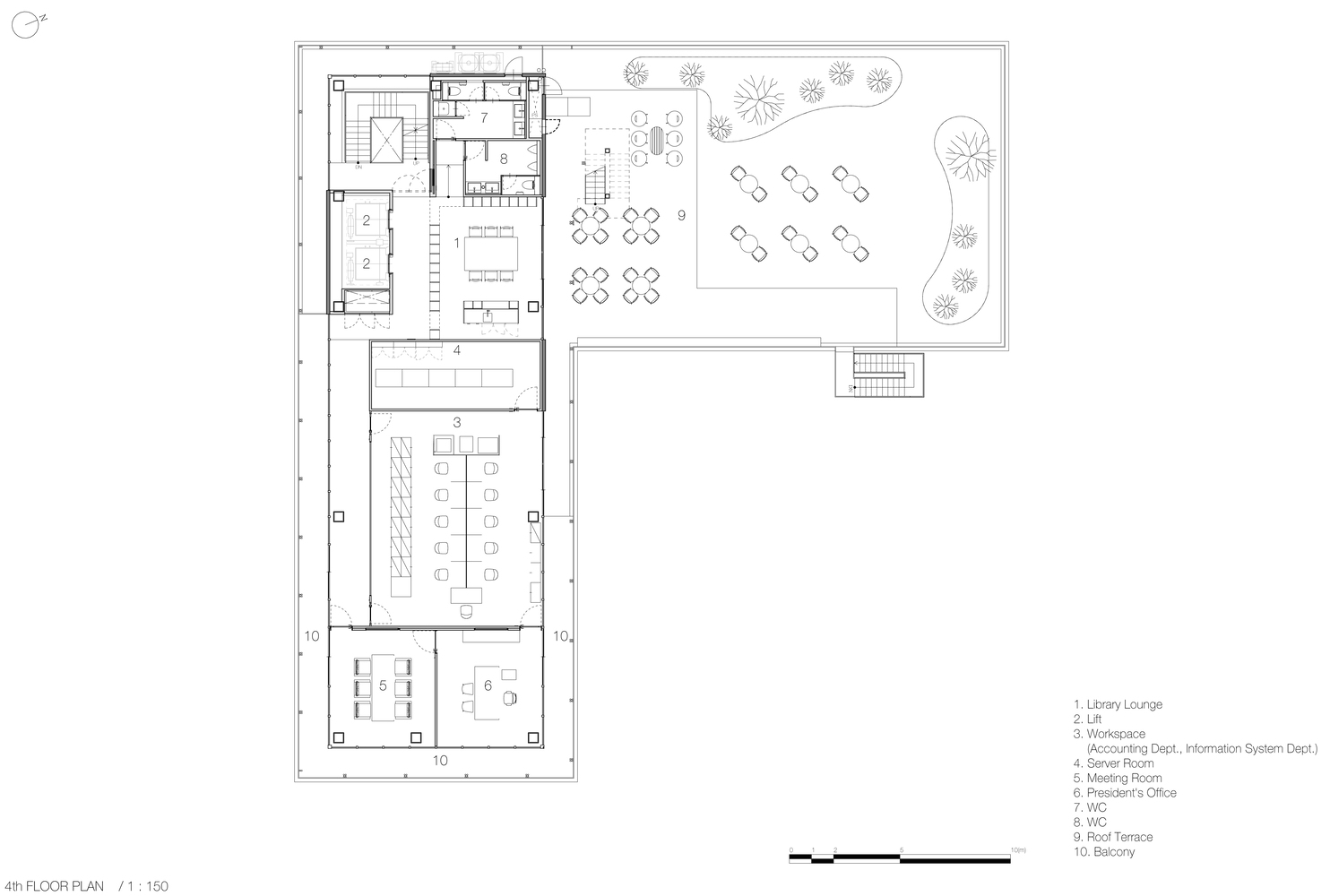
Executive offices, a library, a lounge, and a rooftop terrace occupy the fourth floor, and conference rooms with panoramic views are arranged on the fifth. Vertical circulation is concentrated at the fulcrum of the L-shaped plan for efficiency.
The structure is steel-framed, with a full-glass façade and wrap-around balconies that serve as both refreshment areas and environmental buffers.
Pinewood louver ceilings extend seamlessly from the interior to the exterior eaves, concealing mechanical equipment while creating a warm atmosphere like being under tree cover.
Their shadows recall the underside of traditional shrine roofs, and at night, deck lighting highlights the wood pattern. Louvers on the piloti ceiling evoke the hulls of kitamae trading boats.
Landscaping beneath the raised floors includes medicinal herbs and local trees, irrigated by underground alpine water that also serves for snow melting.
These green areas connect directly to the neighboring park, inviting employees, residents, and visitors alike to enjoy the space. Balconies and terraces allow passive climate control by shading summer sun, admitting low winter light, and enabling natural ventilation with prevailing breezes.
Beyond efficiency, the design provides a workplace that embodies Toyama's landscape and culture, offering an environment for collaboration, resilience, and community engagement.

































