The None Angle House
ARCHITECTS
Benoit Rotteleur Architecte
LEAD ARCHITECT
Benoit Rotteleur
FURNITURE
Bonaparte
MANUFACTURERS
Technal, Atlantis Bois
PHOTOGRAPHS
Antoine Séguin
AREA
110 m²
YEAR
2021
LOCATION
Les Sables-d'Olonne, France
CATEGORY
Houses
Located in the Frend atlantic coast, in a village between the coast and the marina that this young retired couple decided to settle. Customers wanted a house with the Japanese-inspired, open to the garden.
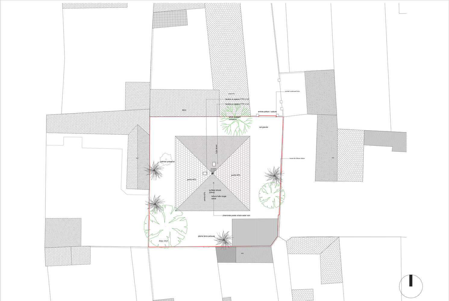
The house project approaches this perimeter fence as a border between interior and exterior, private and public.
Placed in the center of the plot, the plan of the house is a reduction of the square plan of the land.
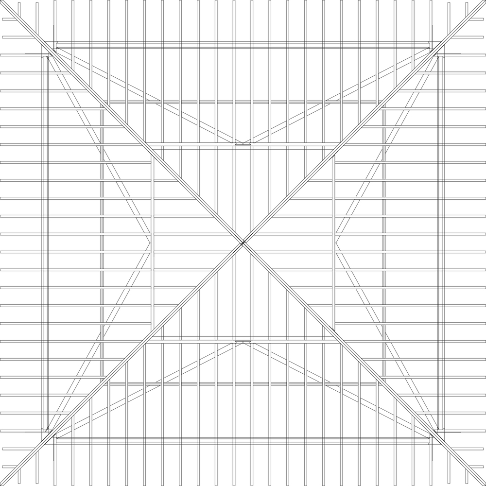
To offer a privileged relationship with the garden and take advantage of the multiple orientations, the house opens out on its four angles. Inside a free star space connects the four orientations.
Between these two diagonals are located four volumes grouping together all the uses of the house.
The perfectly symmetrical volumes distort the free space by creating perspectives, narrowings, openings. This dance of volumes brings great flexibility and diversity of use.
A house designed for thermal comfort throughout the year; the roof overhang has been calculated to let in the sun during the winter months and block the rays during the summer to avoid overheating.
With this star plan, the wood stove placed in the central room distributes the heat in all the rooms.
In the upper part of the pyramid a roof window with a motorized opening facing north allows hot air to escape, the open space at the four corners of the house facilitates efficient ventilation.


























