
Vertical Tube House - Kam And Ly House
VERTICAL TUBE HOUSE - KAM AND LY HOUSE
Hgaa, Jien Jun, Taewon Park, Naïve Practice
ARCHITECTS
Hgaa, Jien Jun, Taewon Park, Naïve Practice
LEAD TEAM
Il Hwan Kim - Naïve Practice
DESIGN TEAM
Hgaa, Jien Jun, Naïve Practice, Taewon Park
GENERAL CONTRACTOR
Dao.cc
MANUFACTURERS
Artsteel, GiaLong
PHOTOGRAPHS
Daisy Ziyan Zhang, Hoang Le
AREA
320 m²
YEAR
2025
LOCATION
Hanoi, Vietnam
CATEGORY
Residential Architecture, Houses
This vertically proportioned single-family house project started from two narratives: a very personal story of the client couple and the very generic principles of dwelling types in Hanoi's climate.
The generic story of the regional climate and dwelling: The project is inspired by a 19th-century Russian diagram that maps dwelling types to their corresponding climatic zones.
This drawing assigns a compact tent to the tundra, a small log cabin to the northern zones, a timber frame house to the middle zone, and a porous straw house with wide open space to the tropical zones.
This diagram clearly shows how the volume of the dwelling area increases when it gets hotter and more humid. Traditional houses in Hanoi follow the principles of the tropical zone.
The house is connected to wide outdoor spaces for airflow and is surrounded by trees to filter the light.
However, the modern development of the city has focused on accommodating the exponentially growing population density rather than preserving the traditional dwelling typology for passive thermal comfort.
This house tries to incorporate air circulation and sun filtration, features commonly found in regional architecture, within the highly dense modern context of Hanoi.
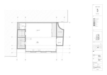
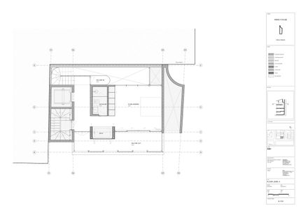
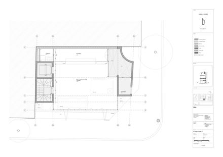
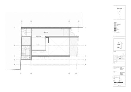
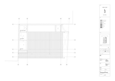
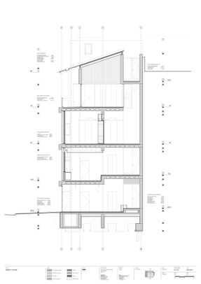
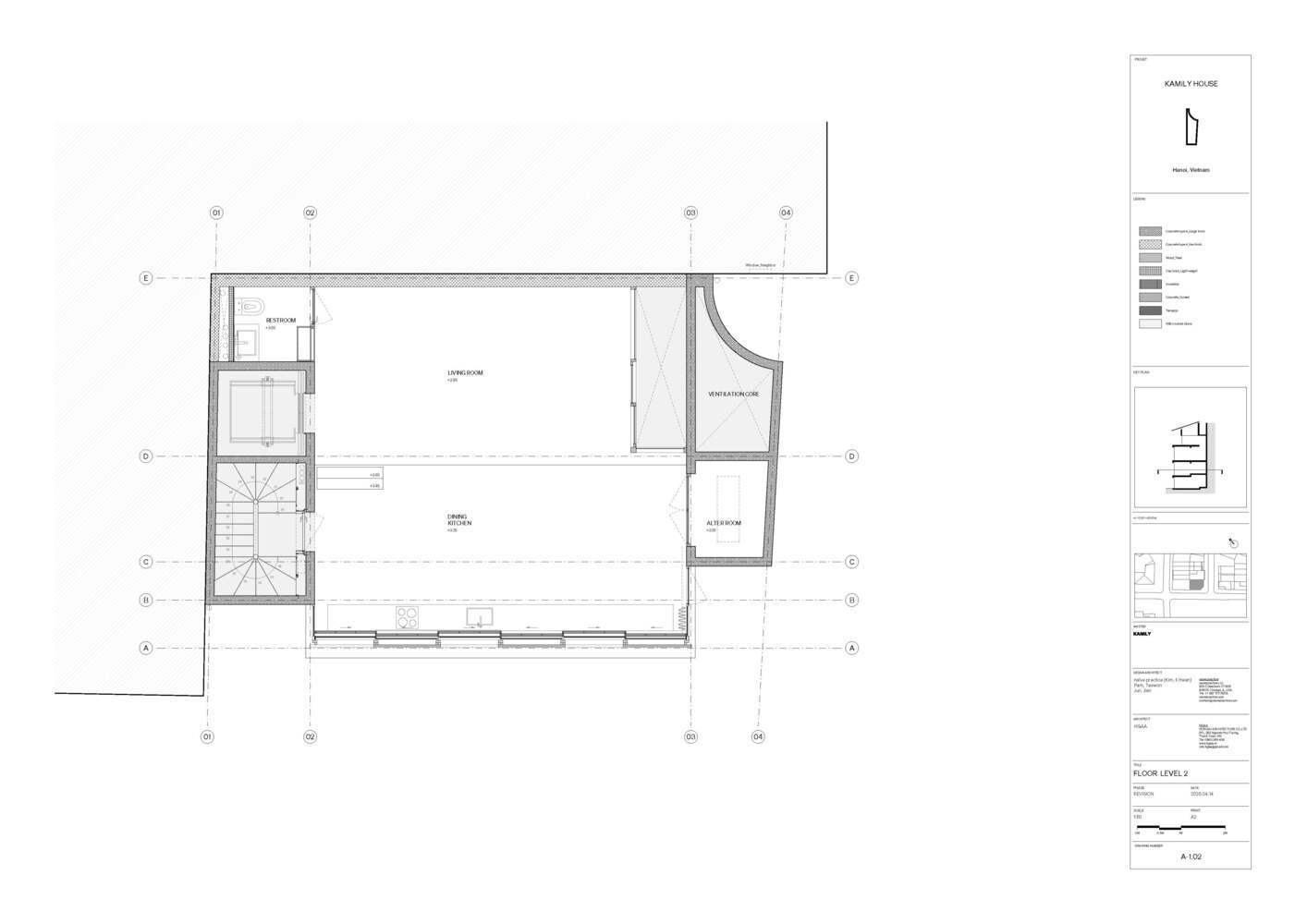
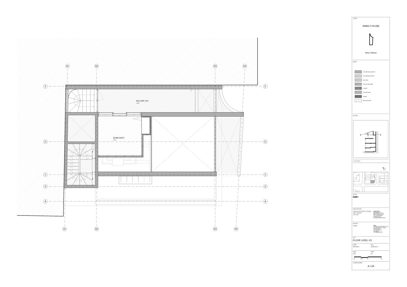
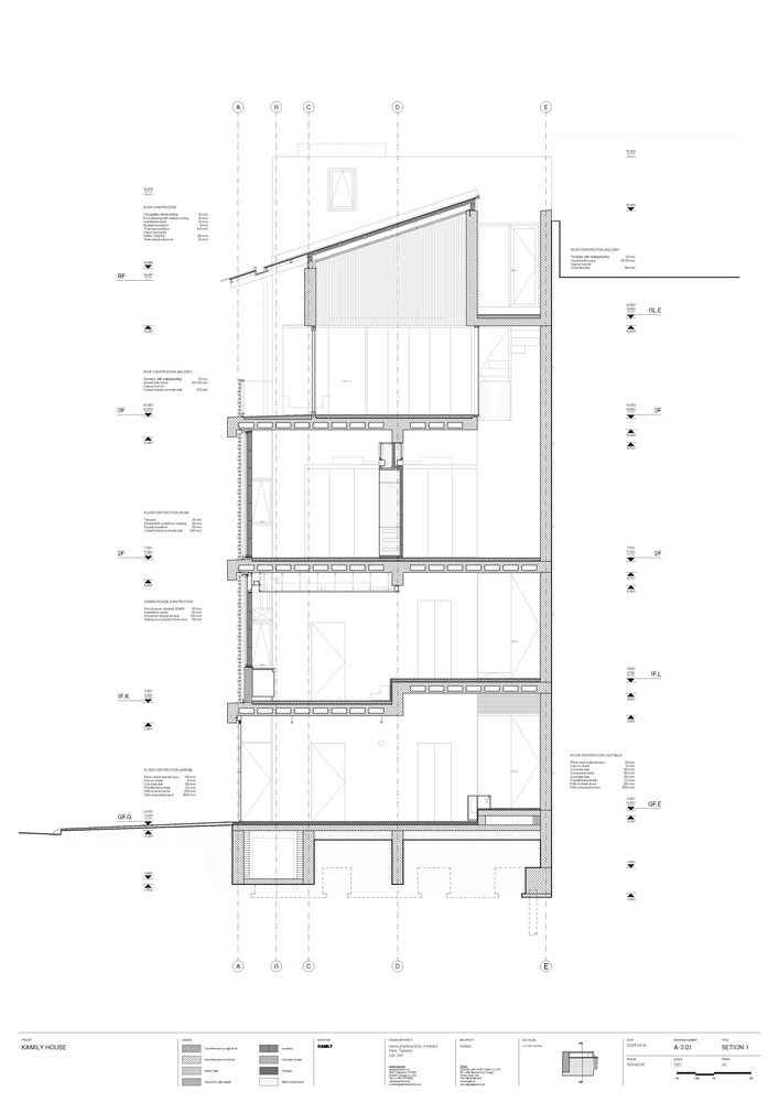
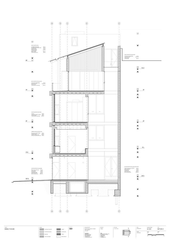
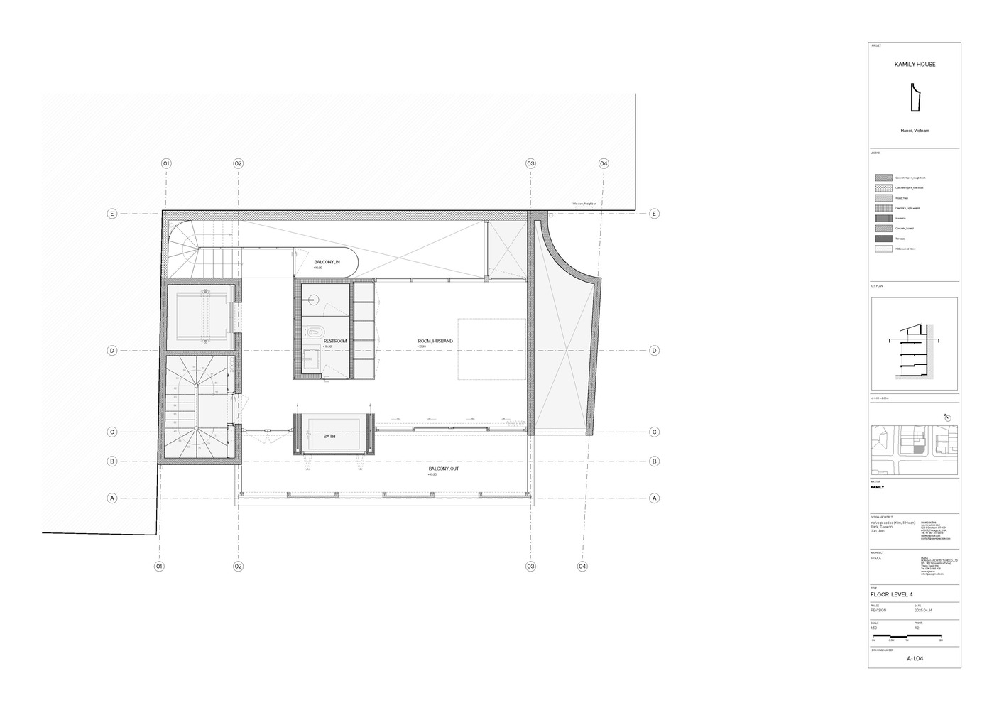
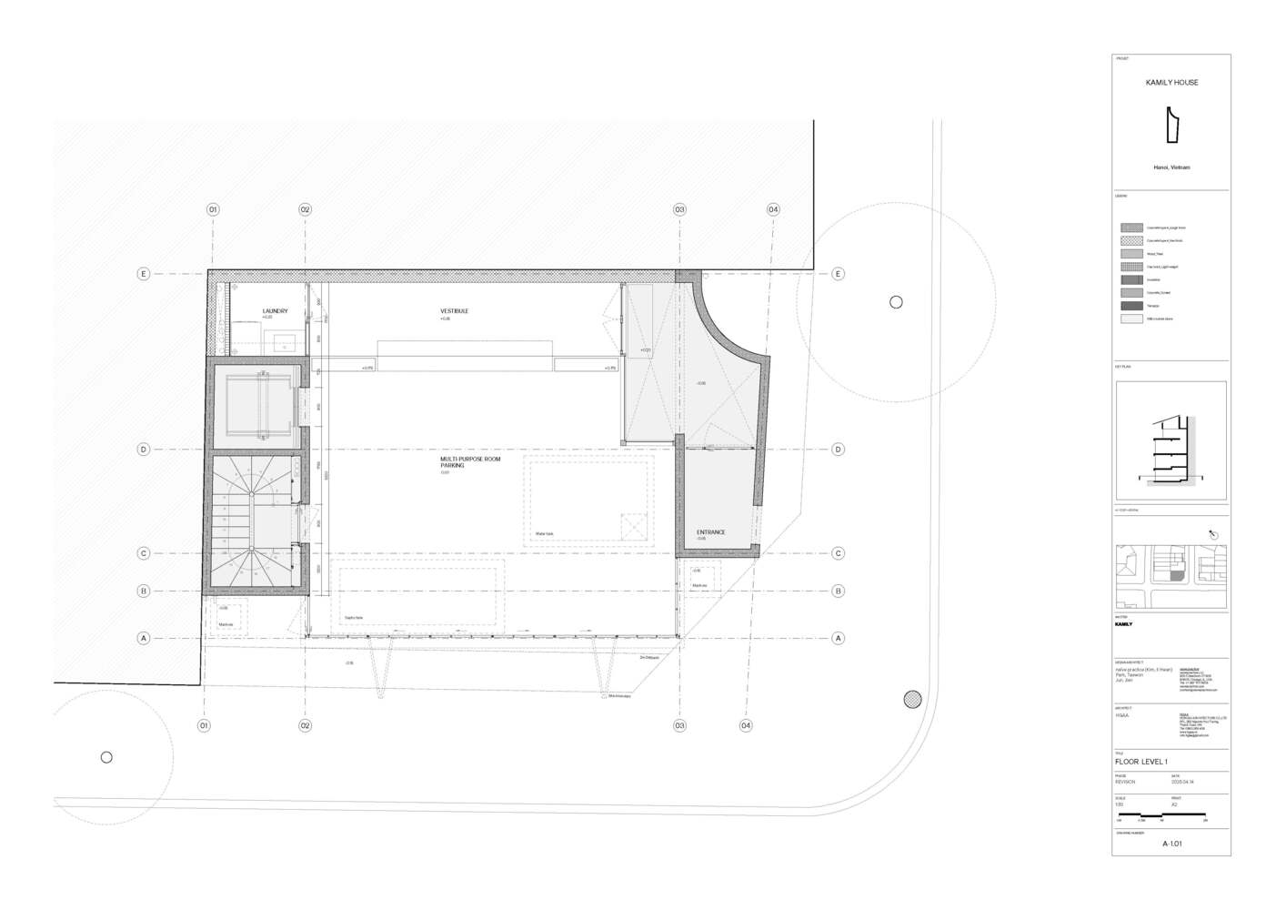
The house is composed of two vertical cores anchoring opposite ends of the site, connected by a spanning slab.
One core facilitates human circulation while the other channels airflow through an open concrete tube that filters light and draws air through a semi-exterior courtyard.
These layered vertical voids create natural ventilation throughout the living spaces. Western sunlight is tempered by louver facades and hollow-core sliding shutters.
This facade can open wide during cooler morning and evening hours to invite cross-ventilation.
While the design doesn't aspire to be a thermally optimal passive house, it tries to bring a regional solution for thermal comfort to a challenging condition: a high-density urban block.
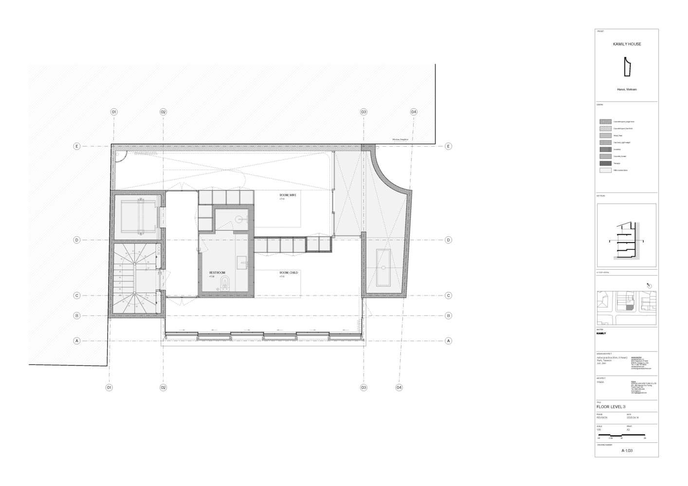
The very personal story of the client: A long-married couple sought an idea to address their very different life cycles.
The husband starts his day early, and the wife goes to bed almost just as he awakens.
Rather than forcing convergence, we proposed maintaining distance between their private spaces while creating multiple indirect ways of sensing each other's presence and enabling gentle communication.
The most direct connection manifests as an interior balcony, a small platform suspended within a tall void that facilitates brief interactions between the couple.
Spatially, their rooms connect vertically through two shared voids where light and sound travel with different intensities.
These same voids carry cool air throughout the house, creating not only thermal circulation but also an intangible sense of co-living that honors their individual rhythms while maintaining their connection.




































