Buenos Aires House
ARCHITECTS
Estúdio Mariane Rios
ARCHITECT IN CHARGE
Mariane Rios
PROJECT EXECUTION
Bistane Engenharia
LIGHTING TECHNICIAN
Lucenera
LANDSCAPE ARCHITECTURE
Mônica Costa
BRUSHED STAINLESS STEEL
Gasparinox
MARBLEWORK
Sigramar
METALWORK
Espadari
CONCRETE SLATS FACADES
Pisatto
MARCENARIA COZINHA LAVANDERIA BANHEIROS E CLOSET CARPENTRY KITCHEN LAUNDRY ROOM BATHROOMS AND CLOSET
Florense
WALL STONES
Pedras Paraíso
CARPENTRY
Marcenaria Esmage
FURNITURE
Jader Almeida
BATHROOM AND LAUNDRY ROOM FLOORING
Portobello
AIR CONDITIONING AND VENTILATION
Maxi Ar
WOODEN CEILING AND FLOORING
Estilo Parquet
SOLAR ENERGY SYSTEM IMPLEMENTATION
Nitiz
AUTOMATION
Automundi
WALL TEXTURES
Decorcril
AREA
535 m²
YEAR
2025
LOCATION
Bonfim Paulista, Brazil
CATEGORY
Houses
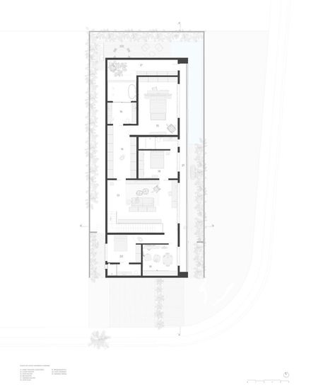
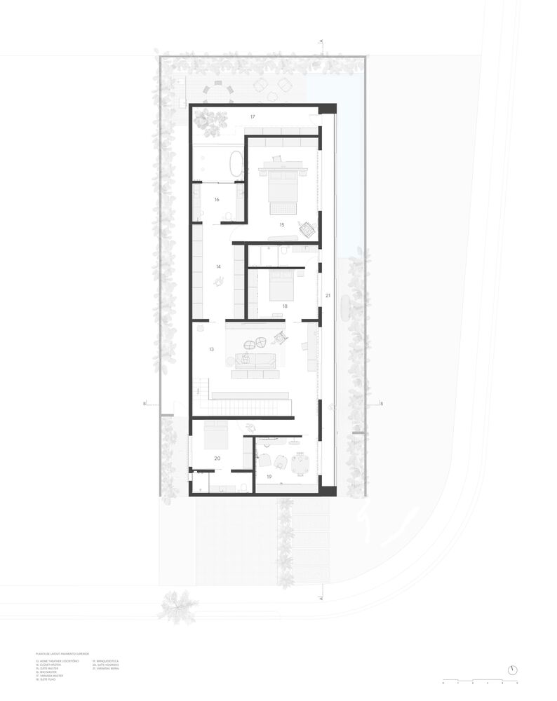
The design of the Buenos Aires House is based on the overlapping of two volumes on a lot with two fronts.
The upper volume, denser and marked by concrete slats, rests on the monochromatic ground floor, which combines paint and metal sheets in shades of gray.
Both volumes utilize sliding panels of the muxarabi type as a complement to the translucent dividers, which, in addition to ensuring privacy, promote movement and variations of light and shadow throughout the day.
On the upper floor, a continuous balcony runs along the entire side, housing the movable panels and connecting the suites, playroom, and intimate living room to an outdoor living area with a view of the garden.
On the ground floor, the panels serve a similar function, now articulating the social spaces.
The entrance hall features a gallery that embodies the family's love for the arts.
To accommodate the program of each user, a modular sideboard of over 5 meters was designed.
The modules vary in use and function, opening and storage systems, as well as in heights and depths, making the piece light and dynamic despite its size.
One of them, made of stainless steel, functions as a tray for personal items and creates a visual breathing point in the furniture.
Art is also configured through signature lighting fixtures such as Oop's and Lucellino Doppio by Ingo Maurer, present in the hall and the restroom, and the Simbiosi pendants by Davide Groppi, located above the dining table.
The kitchen opens completely to the dining room, and integrated into it, a continuous wall in oak veneer conceals the pantry and china cabinet.
The central island of the kitchen, facing the garden, ensures functionality and visual connection with the exterior in front of all work areas.






































