
Nivriti 2.o House
ARCHITECTS
I2a Architects Studio
LEAD ARCHITECT
Ar. Manuraj C R, Ar. Sanjukta Chakraborty
BUILDING MATERIAL
Xteria Designs
HOME AUTOMATION
Crp Automation
SANITARY WARES
Jaquar
MANUFACTURERS
Asian Paints, Greenlam, Hafele, Jaquar
LANDSCAPE EXECUTION
Poornima Home Decors
INTERIOR STYLING
Yellow Petals
INTERIOR CONTRACTORS
Wood Spot, Vitrified Tiles, Athangudii Tiles, Vendor-d Squarez
LIGHTING
Luxonite Lighting
CIVIL WORK
Mahesh P. S. Vallachira
PHOTOGRAPHS
Justin Sebastian
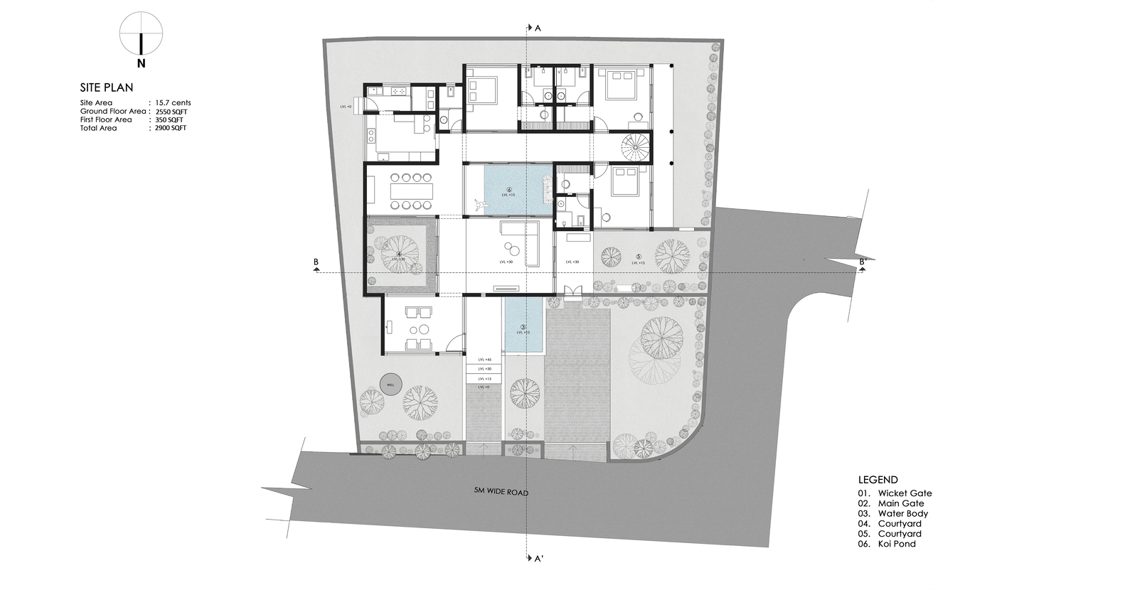
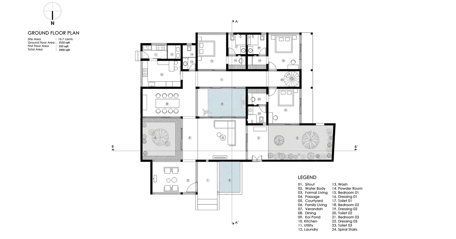
AREA
2900 ft²
YEAR
2025
LOCATION
Thrissur, India
CATEGORY
Houses
Tucked away in the quiet landscape of Arimbur, Thrissur, Nivriti unfolds as a residence that is equal parts retreat and homecoming.
Designed for an NRI family who inhabits it briefly each year, the house was conceived as a sanctuary inviting in its warmth, yet secure and grounded in its setting.
The planning draws strength from its openness. Spaces are composed as a series of flowing sequences rather than isolated rooms.
Living, semi-private, and private areas are linked by transitional corridors, each revealing a courtyard or garden pocket along the way.
These green voids function as lungs of the home, channeling air, light, and calmness into the interiors.
Every threshold is an invitation to pause, reinforcing the intimate relationship between house and landscape.
Floors patterned with Athangudi tiles bring vibrancy underfoot, their intricate motifs echoing the cultural lineage of South India.
A winding spiral staircase introduces a sculptural moment within the home, an upward journey culminating in a timber-lined attic, where the material warmth transforms the atmosphere into one of quiet retreat.
Inhabitation is further elevated by the dialogue between material and landscape. Timber-framed windows and sliding doors blur boundaries, dissolving the line between garden and living space.
Stone-clad walls, in contrast, assert permanence and grounding, while slatted wooden screens filter sunlight, lending privacy without denying openness.
The interiors breathe with restraint: patterned floors anchor the living areas, while soft furnishings and crafted details layer in warmth and tactility.
The architecture of Nivriti is not about spectacle but about balance. It negotiates openness with seclusion, modern comforts with traditional craft, and the ephemeral qualities of light and air with the enduring solidity of stone and timber.
In doing so, it becomes more than a holiday home. It becomes a place of return, rest, and rootedness, a personal sanctuary in Thrissur that welcomes its family each year with the quiet assurance of belonging.
























