Renovation and Expansion of Shenzhen Longgang District Xinghe School
RENOVATION AND EXPANSION OF SHENZHEN LONGGANG DISTRICT XINGHE SCHOOL
A.C.R.E. Atelier
ARCHITECTS
A.C.R.E. Atelier
LEAD ARCHITECT
Yin Shun
TECHNICAL ADVISOR
Serge Ferrari
CHINA ACADEMY OF BUILDING RESEARCH TEAM MEMBERS
Yingchao Zhao, Yong Sun, Jinhui Li, Wanting Du, Jingyao Li, Jingming Zhang, Wanzheng Zou, Jenny Liang
CONSTRUCTION
Shenzhen Longgang District Construction And Public Works Department
ACRE ATELIER TEAM MEMBERS
Shi Qi, Lu Xinhe, Wei Jiyao, Liu Shen, Zhang Shiyuan, Zhao Chengyang, Xu Jiajia, Pu Yunchen
CONSTRUCTION DRAWING DESIGN
China Academy Of Building Research
CLIENT
Shenzhen Longgang District Construction And Public Works Department
PHOTOGRAPHS
Right Angle Image, XIAO Xiao, Jinhui Li
AREA
29960 m²
YEAR
2024
LOCATION
Shenzhen, China
CATEGORY
Schools, Renovation
Xinghe campus, a high-quality campus project prioritized by the Longgang District Construction Bureau of Shenzhen, resolves spatial challenges of high-density sites through systematic design strategies.
The project pioneers innovative spatial paradigms to transform fundamental teaching models, while achieving green and low-carbon campus goals through architectural innovation.
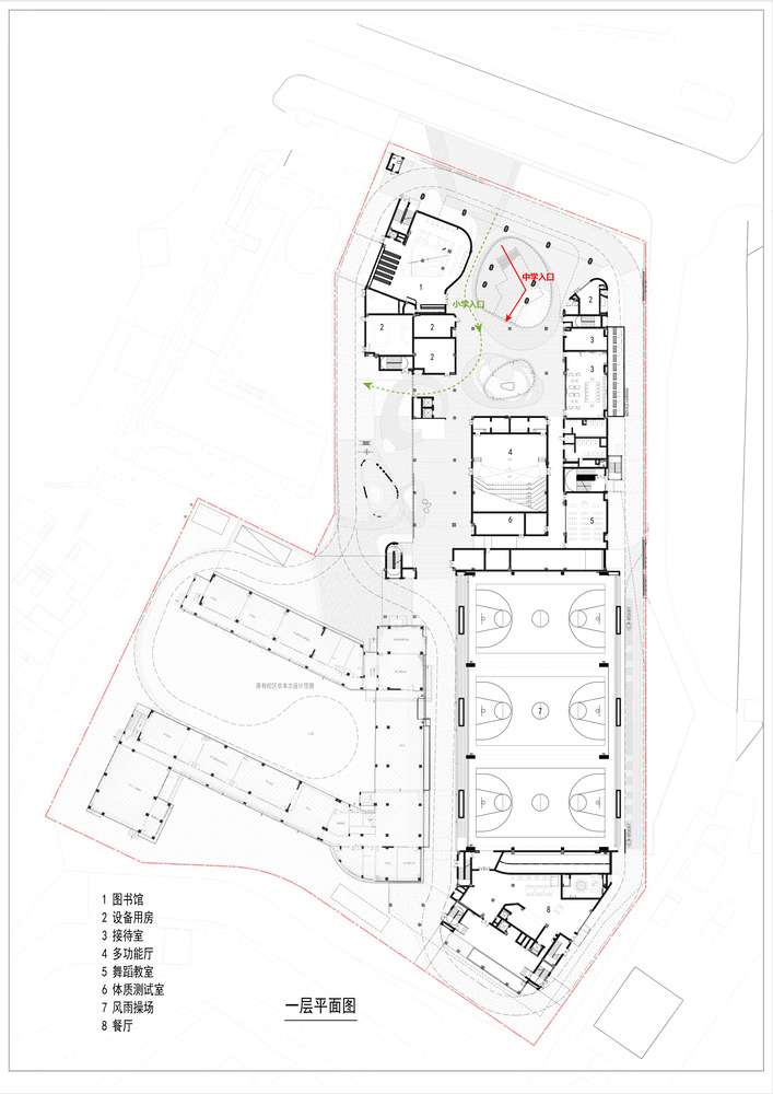
WALLED HOUSE LAYOUT
The "walled house" design of Xinghe Campus serves as both a contemporary reinterpretation of Longgang's cultural heritage and a spatial solution for high-density constraints.
Under strict requirements (3.4 FAR with a 200m circular running track), the six-story enclosed structure efficiently consolidates teaching functions. Responding to surrounding urban patterns, the layout adopts a gradient density strategy – dense north, sparse south.
By precisely controlling boundary distances to regulatory limits, we achieved optimal height-width ratios and human-scale courtyards. The resulting transitional spaces actively catalyze informal learning activities.
TOPOGRAPHIC NESTING
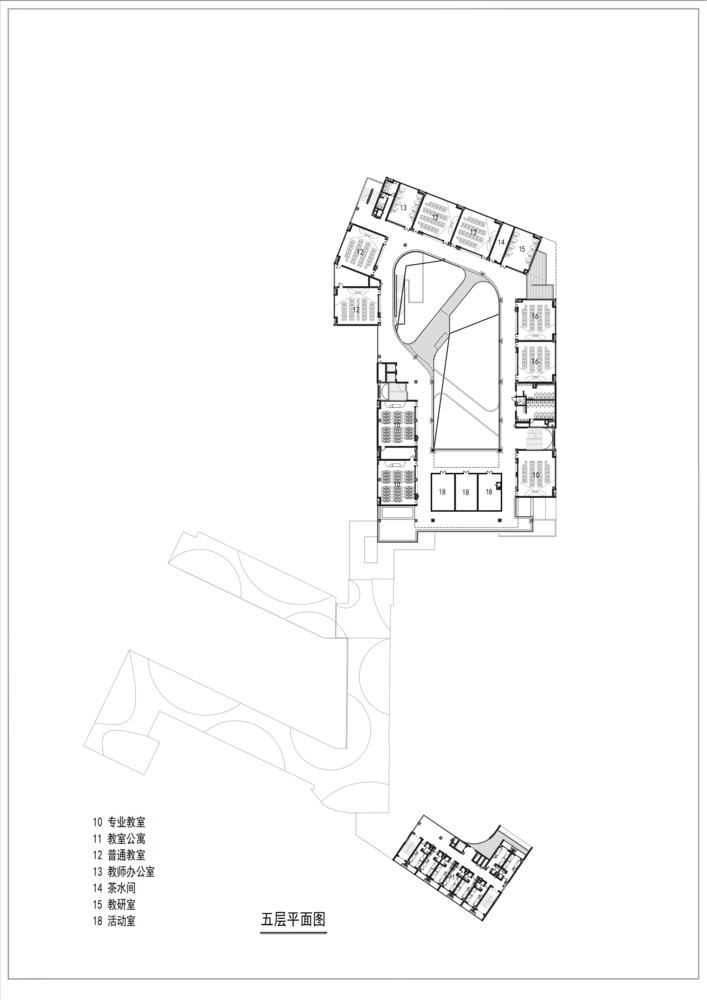
Using vertical terrain manipulation, large functional units like the gymnasium and auditorium are embedded as foundational plinths. Teaching clusters then "float" above this base, with cascading terraces forming vibrant transitional spaces – a playful "valley" for children's activities.
3D PERMEABILITY
Colorful aerial walkways weave through the campus, creating multi-layered spatial connections. Suspended tree plantings bring nature within 10-minute breaks, while extended bridges serve as vertical exercise platforms.
Strategically carved voids allow light and wind to permeate the dense structure, improving microclimate comfort and offering city-view perspectives that connect students to urban growth. This "Walled House "as a giant classroom where spatial cohesion stimulates peer-to-peer learning.
At the entrance zone addressing parent circulation, student flow separation, and density challenges, we developed an innovative dual ground floor system with a time-shared plaza.
Spatial folding techniques dissolve urban-campus boundaries, serving as a parent drop-off buffer during school hours while transforming into community-shared spaces during non-instructional time.
By eliminating traditional walls, the sports field visually connects to city streets. Residents can observe active students, allowing campus energy to nourish the neighborhood. The design "opens up" the walls of the campus, transforming spatial confrontation into shared vitality through boundary dissolution.
Given the subtropical climate typifying Shenzhen, the design must address the dual challenges of solar radiation and extreme rainfall, while resolving the contradiction between shading efficiency and visual permeability.
The simulation results, obtained through the implementation of a translucent grid film shading system developed in-house, have demonstrated that while ensuring sDA (spatial daylight autonomy) and UDI (Useful Daylight Illuminance),the system can effectively reduce sGA (Spatial Glare Avoidance) and thermal radiation intensity. Consequently, this enhances the classroom light environment and conserves energy.






























